摘要
本文结合实例,对两幢基础埋深不同的建筑物,浅基础先施工时,浅基结构、土方回填挡土、深基侧壁防水、深基剪力墙支模的施工方法、技术措施进行探讨论述,为同类工程施工提供参考。
一 工程实例
由我司承建的某住宅小区工程,建筑面积48132.64㎡,设计建设4层临街商住楼1幢、6层会所综合楼1幢(地下室一层),小区内建设6层住宅楼10幢(5#~14#)。临街商住楼与会所综合楼相邻,二幢楼中间只设计一道200mm的变形缝。按原甲方对群体工程的进度要求和施工经验,我司对工程的施工进度进行了设计安排如下:基础锤击预应力管桩按从小区内到外的顺序一次连续施工完面,处于小区内的10幢住宅楼基础主体结构先组织流水施工,主体封顶后进行会所综合楼地下室结构施工,在会所地下室结构施工完成后再进行临街商住楼的施工。
该进度计划经建设、监理单位批准,工程按原计划正常施工;基础管桩全部按计划于2010年7月底施工完成,5#~14#楼主体结构于2010年12月中旬全部封顶。在准备进行会所综合楼地下室结构进行施工时,建设单位出于工程开发效益考虑,要求我司调整施工进度计划,对临街商住楼先行施工、验收,交付开发商销售,临街商住楼结构完成后再进行会所综合楼的施工。由于临街商住楼与会所综合楼距离较近(相隔只有200mm的变形缝),且会所综合楼设计地下室一层,临街商住楼为承台地梁基础,两楼基础埋深不同,浅基础的施工处理、回填挡土、地下室外墙防水层施工、剪力墙结构支模存在一定难题。
二 施工重难点分析
1、临街商住楼设计采用钢筋混凝土承台、地梁基础,靠会所综合楼一侧承台高度0.6m,承台底标高-0.7m,地梁底标高-0.5m;会所综合楼地下室底板厚度0.3m,底板底面标高-3.9m。在会所综合楼地下室土方未开挖施工时,临街商住楼混凝土基础和室内地坪土方回填均可按正常施工工艺施工,不会出现任何问题。但由于二幢楼距离太近,无法设置挡土、围护措施,若会所综合楼基础土方一开挖,临街商住楼靠会所综合楼一侧的土体将往综合楼一侧产生坍塌,势必造成先施工完成的临街商住楼浅基管桩外露、地梁悬空、承台吊脚。浅基先施工,必须解决基础露底和挡土的问题。
2、会所综合楼地下室防水层采用(4厚APP改性沥青防水卷材)外侧卷材防水做法。按正常施工流程,应在地下室混凝土结构剪力墙施工完成后再进行防水施工,但由于要求调整进度计划,浅基先施工完成,剪力墙外侧的土方已先回填,无法进行地下室外墙防水层的施工。浅基先施工,必须解决地下室外墙卷材防水施工的问题。
3、临街商住楼基础结构先施工完成,由于两楼间隔只有200mm,会所商住楼地下室剪力墙模板没有施工工作面,必须解决地下室剪力墙模板支撑的问题。
三 施工解决方案和技术措施
为使工程能按建设单位的进度要求施工,确保工程施工质量和安全。经研究分析,我司制订了临街商住楼浅基下沉、商住楼基础设置挡土墙、会所综合楼地下室防水层逆作施工、地下室剪力墙混凝土结构单向支模等施工措施,编制了详细的施工方案,并报请建设单位、设计单位和监理单位批准,正式投入施工,具体如下:
1、临街商住楼浅基础下沉。
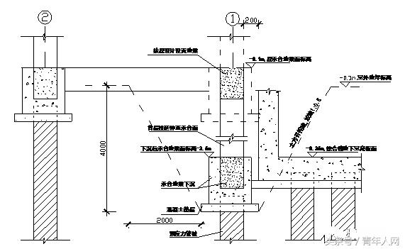
为避免土方开挖导致管桩、浅基露底,基础施工时,直接将靠近会所综合楼一轴的承台、地梁下沉至顶面标高与会所综合楼地下室底板面平齐(-3.6m)的位置;预应力管桩相应锯短(按原设计要求嵌入承台0.1m),将首层柱按原设计截面尺寸、配筋延长至下沉后的承台面,原设计的地梁仍按来设计截面施工,与柱和其他地梁连接。根据地质勘察资料显示,基础所处土层为灰黄色粉质粘土,层面埋深0.5~8.6m,由粘粉粒与石英质中细粒砂构成,稳定性较好,且地下水位处于土方开挖线以下;土方开挖时,基坑边坡按1:0.5放坡。(施工详图见图一)。
2、临街商住楼基础设置挡土墙。
为了让临街商住楼基础土方能及时回填,为上部结构施工争取时间,同时避免在会所综合楼地下室结构施工土方开挖时发生土体坍塌,采取在下沉的的地梁承台上砌筑一道挡土墙的方案进行施工。临街商住楼下沉基础和延长的首层柱施工完成,验收合格后,在下沉地梁、承台上面用M7.5水泥砂浆MU10砼砌块砌筑400mm厚的挡土墙,挡土墙两端各向外延伸1.2m。为加强挡土墙的整体刚度,满足临街商住楼室内回填土分层夯实需要,在挡土墙每跨中间和两端各设置一根C20构造柱(截面尺寸:墙宽×400mm,配筋4Ø16,箍筋Ø8@200),并在挡墙高度中间设置一道C20混凝土圈梁(截面尺寸:墙宽×300mm,配筋6Ø16,箍筋Ø8@200)。(施工详图见图二)。

图1临街商住基础下沉施工图
3、会所综合楼剪力墙卷材防水层逆作法施工。
由于会所综合楼地下室施工时,相邻的临街商住楼基础已施工完毕,若地下室剪力墙浇筑完成,两幢楼之间只有200mm的距离,已没有进行卷材防水粘贴施工的操作空间;所以在本工程中,采取在剪力墙外侧砌筑卷材粘贴、保护侧墙,先将防水卷材粘贴于侧墙上,然后再浇筑地下室剪力墙的逆作施工方法。施工步骤如下:①会所综合楼管桩、垫层施工处理:按设计要求开挖地下室土方,将管桩长度锯至设计标高,然后进行底板混凝土垫层的施工。

图2挡土墙施工图
②砌筑防水层粘贴、保护侧墙:在垫层施工验收完成后,从垫层顶(离临街商住楼基础挡土墙间距40mm处)用M7.5水泥砂浆MU10灰砂砖砌筑1/2砖墙至地下室顶板面,外侧随砌随抹5mm厚1:2水泥砂浆,墙体按构造要求设置构造柱和圈梁、压顶梁,保证其整体刚度,严格控制砖墙的平直度和垂直度。③两砖剩余间隙按原设计要求,用三七灰土填密振实。④砖墙内侧抹面:用1:2水泥砂浆20mm厚找平、抹光,由于内侧面是卷材粘贴面,抹灰时应严格控制表面平整度。⑤铺贴卷材:按APP卷材的施工工艺,采用热粘法铺贴一层4mm厚APP高聚物改性沥表防水卷材,底部卷入地下室底板下(垫层面)300mm。⑥抹保护层:为防止地下室底板、剪力墙施工时损坏防水卷材,在卷材粘贴、验收合格后,在表面抹上一层20mm厚的1:2水泥砂浆保护层。⑦地下室底板施工。⑧地下剪力墙施工。
4、地下室剪力墙采用单向支模技术
该工程地下室层高3.6m,剪力墙厚0.2m,底板厚度0.3mm,顶板厚度0.2mm。底板与剪力墙的施工缝设在地下室顶板面标高0.3mm处,剪力墙与顶板分开烧筑,施工缝设在交接处。施工方案如下:①地下室底板施工,在底板距剪力墙1m、2m、3m处每间距1m各预埋一根Ф25钢筋(长度300mm,埋入底板200mm,与底板钢筋绑扎固定),作为剪力墙斜撑杆的支撑点。剪力墙施工缝按原设计预埋钢板止水带。
②剪力墙钢筋绑扎。③内撑杆安装:内撑杆的作用是固定剪力墙钢筋位置并保证保护层厚度符合设计要求,同时形成侧模的内撑力。采用Ф18螺纹短钢筋做内撑杆,内撑杆长度同剪力墙厚度200mm,中间焊止水片,从地下室底板面200mm高度处开始按间距500mm×500mm设置,与剪力墙钢筋绑扎安装固定。④面板、竖楞木安装:面板采用20mm厚胶合板,竖楞采用60mm×80mm方木,间距400mm。⑤横楞、斜撑安装:横楞、斜撑杆均采用5#槽钢。横楞从地下室底板面起按0.2m、1m、2m、3m高度各安装一道(在竖楞上订设短木块固定),每道对应设置一道斜撑杆(水平间距1m),一头撑住底板预埋的短钢筋、一头顶住横楞底部。⑥模板较正、检查、验收。⑦混凝土浇筑。(施工详图见图三)

图三
结束语
通过成功运用了浅基下沉、设置挡土墙、防水层逆作施工、剪力墙单向支模等施工技术措施,确保了工程建设任务的顺利完成。该工程已于2011年12月份全面通过竣工验收并交付使用。通过施工过程和竣工以来的的定期检查和跟踪观测,该工程未出现任何质量问题。得到了建设单位和工程建设相关方的一致好评。