项目名称:甘肃兰州台牙迪萌口腔门诊部
设计师:陈武鸿
项目地址:甘肃兰州
设计面积:970平方米

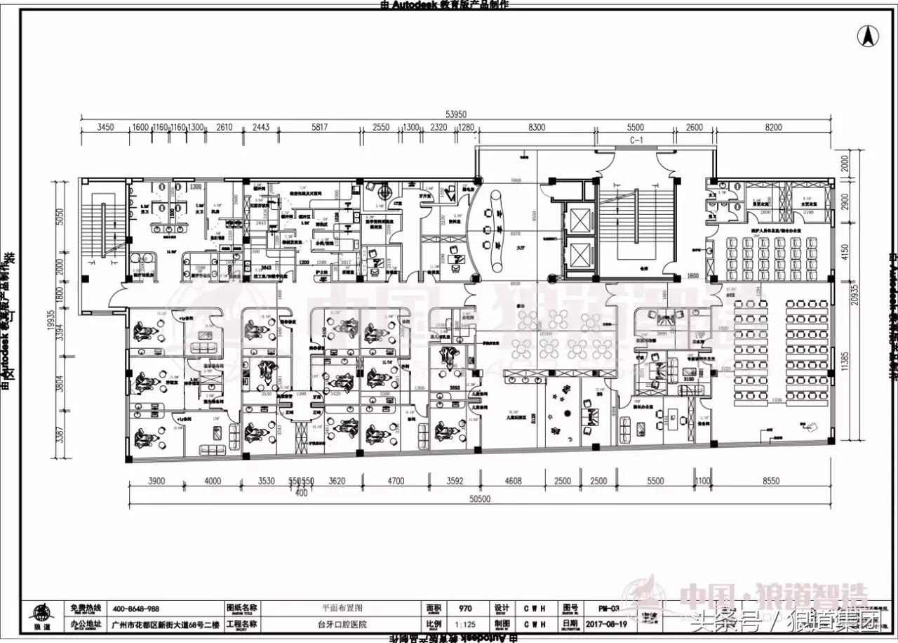
(△台牙迪萌口腔门诊部平面布局图)
面对口腔机构行业眼花缭乱的设计,狼道集团·夜行者设计始终保持着“不追随,不盲从”的设计准则,努力做到即使是一张椅子,也是依托完美的功用性而存在的具有观赏价值的艺术品。
台牙迪萌口腔大胆采用了蓝红色彩搭配科技时尚元素,两种色彩贯穿室内空间,线条连贯,一气呵成。设计师陈武鸿老师对口腔机构空间布置手法娴熟,成就颇深,在此项目中更是体现得淋漓尽致。
门诊内外部在功能布局上做到无缝对接,每一处布局都出落得越发有层次感,每一种色彩,每一个布局,每一根线条,每一件摆饰无不凝聚了他的点滴用心,作为台牙迪萌口腔的形象出现在众人的眼前,这也是设计师的用心之处。

(△台牙迪萌口腔门诊部大厅效果图)
台牙迪萌口腔具有很强的视觉冲击力。宽敞的大厅候诊区摆设井然有序,各摆件各司其职,地面的线条围绕候诊区一直延伸到空间的最深处,与天花上的灯带相互呼应,温暖的灯光洋洋洒洒,铺满了整个候诊区以及墙壁上简单的矩形展示柜。用蓝红色彩粉饰过的展示柜,加上小巧的展示品,颇有一番时尚韵味。

(△台牙迪萌口腔门诊部候诊区效果图)
灯光是塑造空间氛围不可或缺的重要部分,适当巧妙地使用光影的折射对简洁的过道进行渲染,温和的灯光辅以流畅的红蓝线条勾勒墙面的设计感,可以营造出一种科技时尚感,让置身于台牙过道的客户眼前一亮并体现一种立体的格调。

(△台牙迪萌口腔门诊部过道效果图)
需要关注的是,任何设计都需要适当准确的表达,即使在可以包容各种色彩的浅灰色基调下,这个区域空间的色彩搭配也是进行主次的划分,用不同程度的灰色搭配木质的办公桌和展示柜,犹如蛛丝妙笔的延伸,在整个空间中形成强烈的层次感,每一位进入者都忍不住一圈又一圈地打量,仿佛自己看的不是门诊,而是一个无限包容的空间。
行政办公区和治疗区都有单独的管控,并对客户的和医护人员的行进路线进行了合理地规划,便捷的办公就医区域,将有效控制诊所的运营成本,并充分体现了人文关怀。

(△台牙迪萌口腔门诊部院长办公室效果图)

(△台牙迪萌口腔门诊部会议室效果图)
诊室空间尤为紧要,作为客户停留时间最长的区域,灰色地板综合和过度了候诊区、过道等各种色彩,墙上点缀的蓝色线条更像是设计师有意无意间划过的一笔,令人耳目一新。
诊室的人体学结构空间布局,物件摆放,尺寸安排等各项细节处理, 充分考虑了医护人员和客户的使用便捷性。天花灯带的设计能最大限度体现灯关的效果,吸引就诊客户的关注,为客户创造超前的就诊体验,所有这些都集结了设计师无限的创意和遐想。

(△台牙迪萌口腔门诊部VIP诊室效果图)

(△台牙迪萌口腔门诊部诊室效果图)
门诊留给客户的印象,很大程度由卫生间决定。整洁的卫生间设计将能为门诊整体形象加分。因此对卫生间的布局放置尤其讲究,便于发现但需距离人群密集区位置适中,入口避免与诊间入口相邻或相对等。灰色纹理地板方便清洁打理,墙面的浅灰*图色**案巧妙地形成色彩过度,提升的整个空间的柔和感。

(△台牙迪萌口腔门诊部卫生间效果图)
儿童牙科中心越来越成为现今门诊设计的重点,经验丰富的设计师陈武鸿老师对此有独到的见解。从红蓝矩形圆角边框往外延伸到整个空间,五彩缤纷的马赛克图案装饰了墙体的中间部分,肉眼所及处摆满了孩子们喜爱的物件,童趣十足,地面色彩的过度更是让人惊喜万分,层次分明,既消除空间的枯燥感,又衔接成人区,使门诊设计合为一体。

(△台牙迪萌口腔门诊部儿童娱乐区效果图)
牙椅和灯饰的选择是儿童诊室设计的重要环节,为了吸引孩子们的关注,设计师选择了可爱动物造型的牙椅。天花上象形图案的灯饰留给孩子们有无限的想象空间,加上墙面上可爱的装饰,仿佛来到了动物之家,能提高孩子们的就诊体验。

(△台牙迪萌口腔门诊部儿童娱乐区效果图)