在农村自建房,一定会有很多坑点,导致闹心,多花钱,甚至多花钱还达不到自己想要的效果。后续篇幅,阿飞会根据这次老爸再次建房经验给大家总结一下坑点,家里农村有自建房需求多可以了解后提前规避一下。
先放波美图,阿飞辛苦收藏的,

三层样板实景,2017年建成,总共70w

好美的渲染图

法式田园风

简欧三层

未建成简欧2层半

北欧两层

简欧两层
自家建房,个人理解不外乎以下几个原因:老式房子楼上没有设计洗手间,一楼太潮不大适合人类居住,人口增多家里老房子卧室太少,二楼太热而且房顶漏水越修越漏和手头太宽裕就想重新盖个亮堂一点的大宅子。总的来说除非钱多的没处花,满足自己建房需求的同时,还能相对省钱,何乐而不为。
以阿飞家为例,老房子潮出天际-暗河都出来了;二楼没有洗手间,大冬天晚上撒个尿要跑二里地;家有二老,我有两个娃,老姐家也是两个娃;

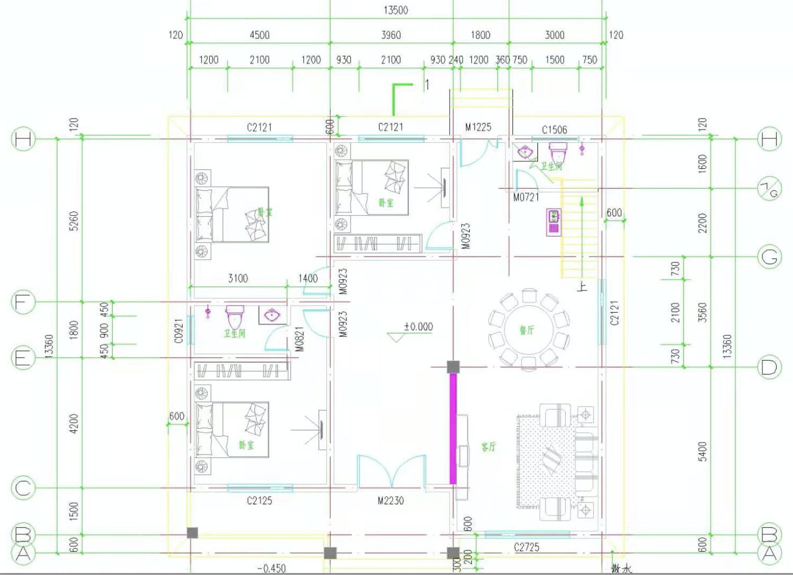
平面设计图镇楼
所以建房核心需求就出来了:
- 1.盖两层足矣,省钱;
- 2.楼下2个卧室+1个棋牌室+2个卫生间+1个超大客餐厅+1个堂屋(放神龛),不用厨房(厨房在旁边杂屋);
- 3.楼上4间卧室+2个卫生间;
- 4.能通楼顶,楼顶可以存放旧物;
省钱神器一:三层总体来看二层大气很多,但是成本会增加两到三成,原因有二:包工头包工价格是按平米来算,多一层价格多33%;其次是材料成本也会相应增加。 控制预算,两层能不能满足你需求很重要;
农村地基防潮防水,一般分两派:最省钱且有效的方案其实是拔高基脚梁高度,一般提高50cm~70cm,然后再直接用土石回填,最后在做水泥地面时加一层后塑料地膜隔潮;另外一种是不用土石回填,使用预制板架空,如下图:

架空50~70cm

预制板隔潮

扎钢筋加一层混凝土提高强度
省钱神器二:如果省掉这个预制板,直接使用回填土+薄膜,这种方式可以节省一万以上;
省钱神器三:家里老地基规整且不受限制,建议直接购买成熟图纸,能省三五千;
省钱神器四:楼顶使用水泥檩子,还是木檩子,自家有林地到强烈建议木檩子:施工安全,散热好,后期好维护和造价低几千等优点;

木质屋顶

水泥屋顶(现浇屋顶)
省钱神器五:外墙装饰,外墙砖or外墙漆,后者现在越来越流行,特别是水包砂类外墙漆,仿大理石效果逼真度达到90%以上,正品材质+正规流程施工,保用20~30年,但是其施工流程复杂造成造价比传统外墙瓷砖总造价高40块左右/平,一般外墙装饰一面到两面,如果使用传统瓷砖大概节省四千到八千;

水包砂确实能做到墙体,窗体和各种造型效果高度一致,但目前造价贵
下一篇预告:农村自建小别墅避坑指南2——主材篇