说到买房,相信大家都各怀梦想,
但是持续攀升的房价,
和生活的各方面压力,
让很多人都急急忙忙做出了决定,
在没有完全确定的情况下,
买下了一套房。
买完之后才恍然大悟,
这真的是自己想要的房子吗?
这么小的空间,以后有了孩子怎么办?
后半生都要在这里度过吗?
……..
这其实是很多刚买房的人,对于未来而产生的恐惧,
喜悦之后便是赤裸裸的现实。
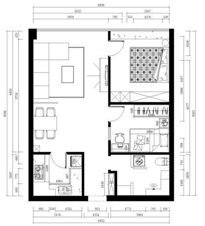
今天小编给大家分享的案例来自力天装饰,
设计师将65平米的空间分隔成
两室两厅一厨一卫的标准户型。

浅色的运用,让空间有膨胀扩大感,
合理的布局与流畅的动线规划,
都让65㎡的空间变得格外舒适惬意。

咱们先来看看侧卧
这是一间女儿房,
小而温馨,
空间中运用了大量的白和粉,
ins风挂画与小灯泡的结合,
是当下最流行的元素,
看完少女心瞬间炸裂。
温馨的同时,更为实际的是
提高了房间的灯光明亮度。

主卧的色调相对较沉稳,
是屋主夫妇居住的空间。
飘窗的设计,将植株引进了卧室,
不仅如此,还充当了床头柜的角色,
放置一些小物件都非常方便。
另一侧设置了顶天立地的大衣柜,
易清洁打理,线条流畅、干净。

卫生间虽小,还是进行了干湿分离,
对于没有阳台的住户,
一定记得选择带有烘干功能的洗衣机。
金色框架的玻璃隔断,
精致且质感十足,
让空间产生了新的张力与感染力。

客厅和餐厅,
通铺白色大地砖,
仅用黑框玻璃隔断进行了分区,
两个空间既统一又独立。
餐厅的区域运用了大量的深色,
配合红色的装饰画
将餐厅空间渲染得更加热情时尚。
客厅的空间氛围则相对舒缓,
无论是沙发、地毯还是装饰画,
都给人一种舒适放松之感。

电视背景墙造型简单大方,
文化石加黑色不锈钢条圈边,上加木质隔板,
增加储物利用率,实用性强。
白色的两扇门和背景墙融为一体,
整体看起来更加和谐统一。

空间虽小,
但是无论从哪个角度看,
都给人一种开阔光亮之感。
想想要了解更多装修知识、装修案例
可以上力天装饰官网
或者添加力天装饰微信公众号
装修优惠活动抢先知,
还可获取免费报价哦!