当我们拿到户型图的时候,特别是自己觉得户型分区不怎么好的时候,这时候就是需要我们的室内设计师进行家居空间的功能分区进行合理的设计了。怎么样才能把家设计的每个空间都能很好的利用上,这就是装修的魅力之所在!而设计师在装修中起着主导的作用!
我们在装修中首先要确定自己的装修风格,然后根据风格进行家居的空间改造,然后进行施工图纸的设计与制作,最后就是我们的根据施工图进行室内效果图的制作,最后就是装修预算!
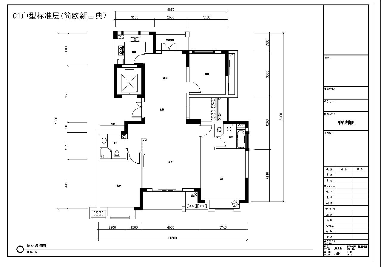
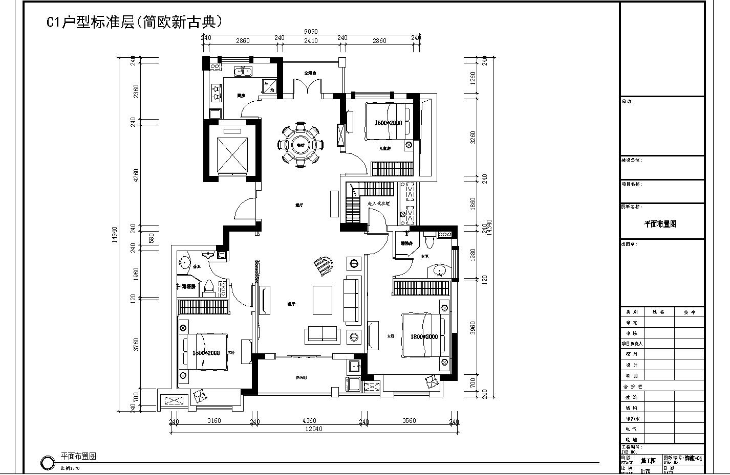
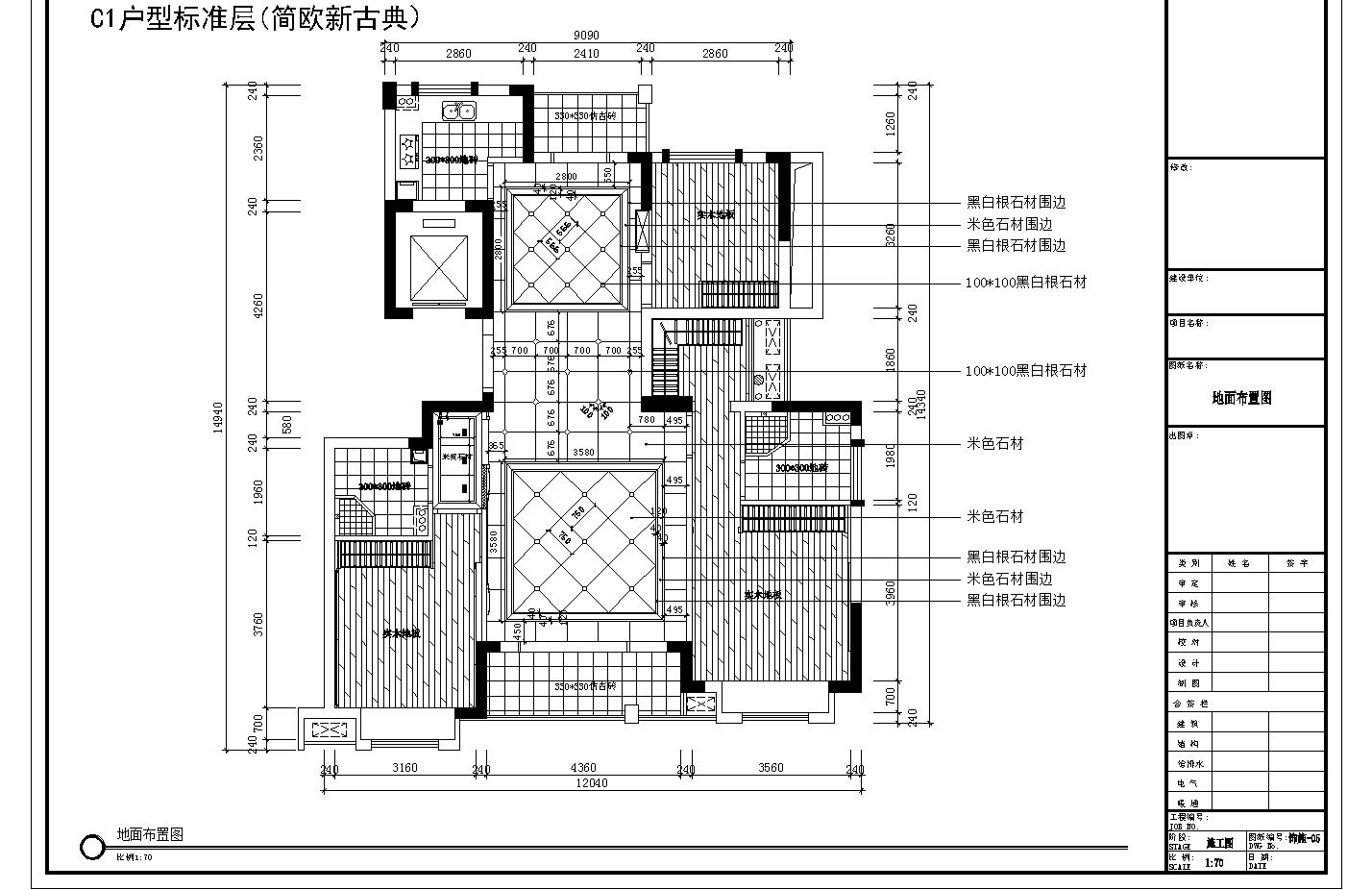
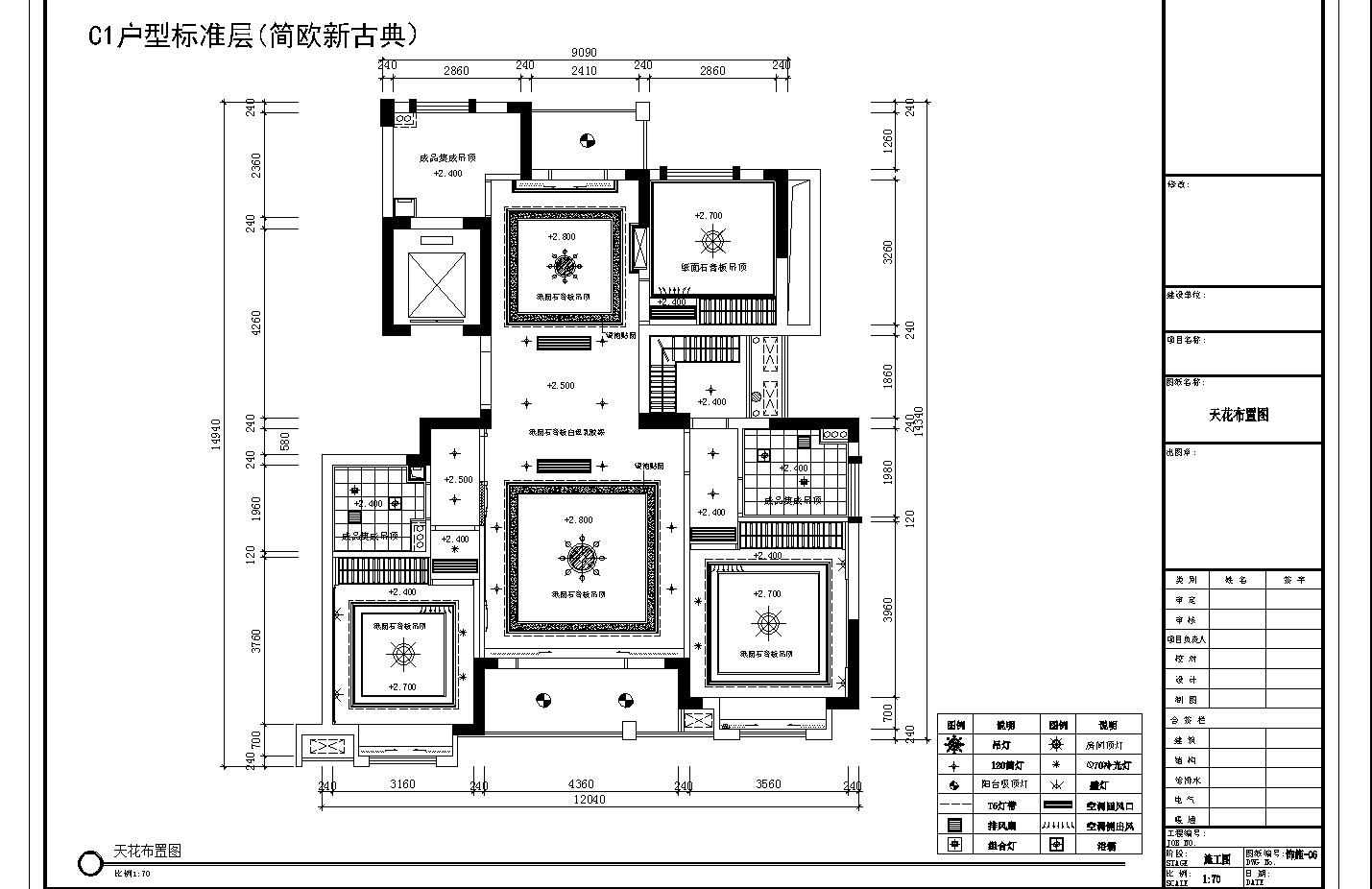
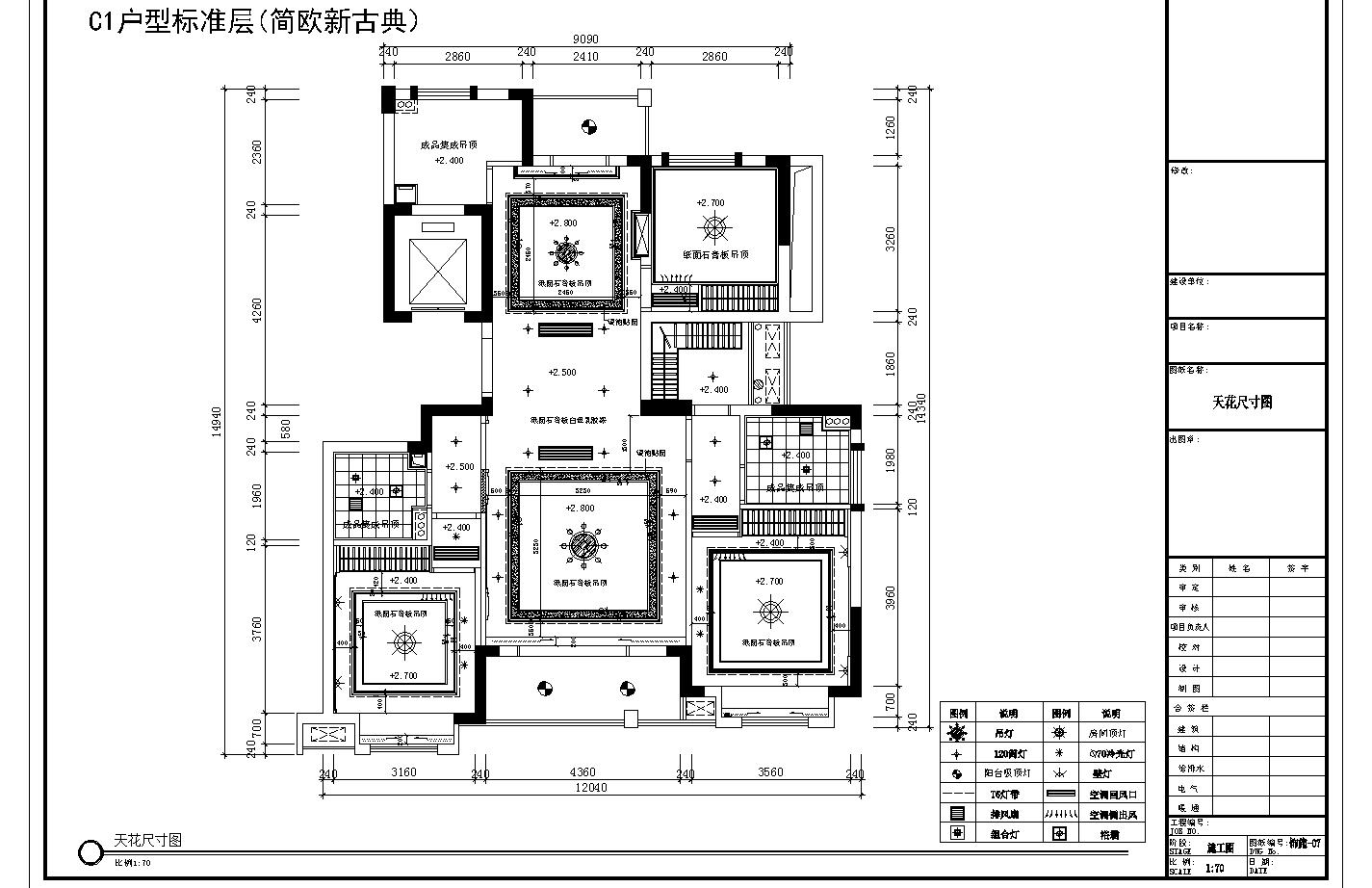
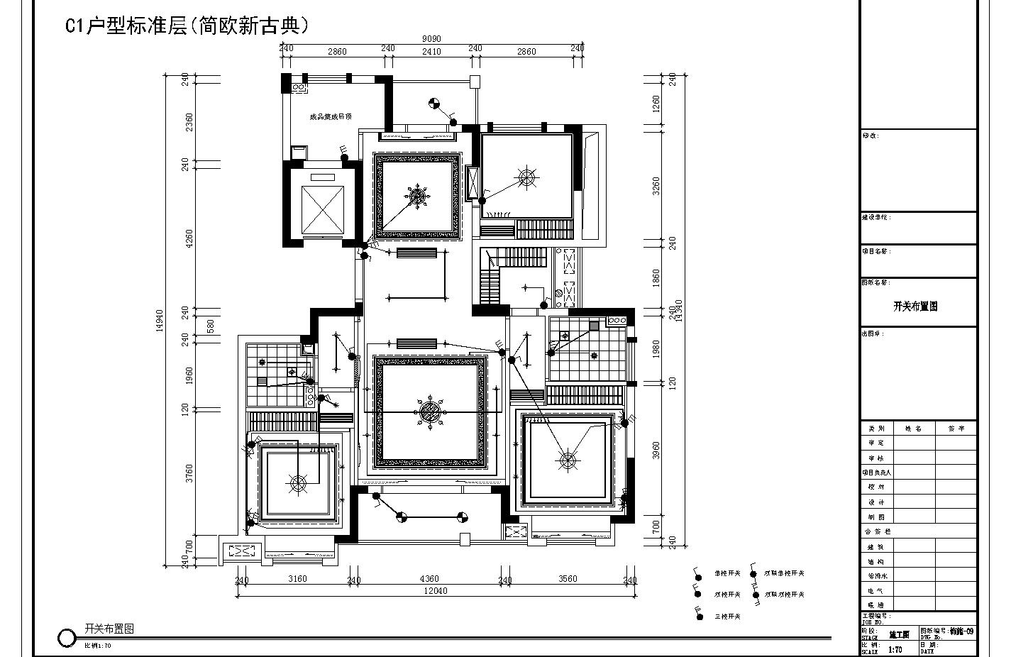
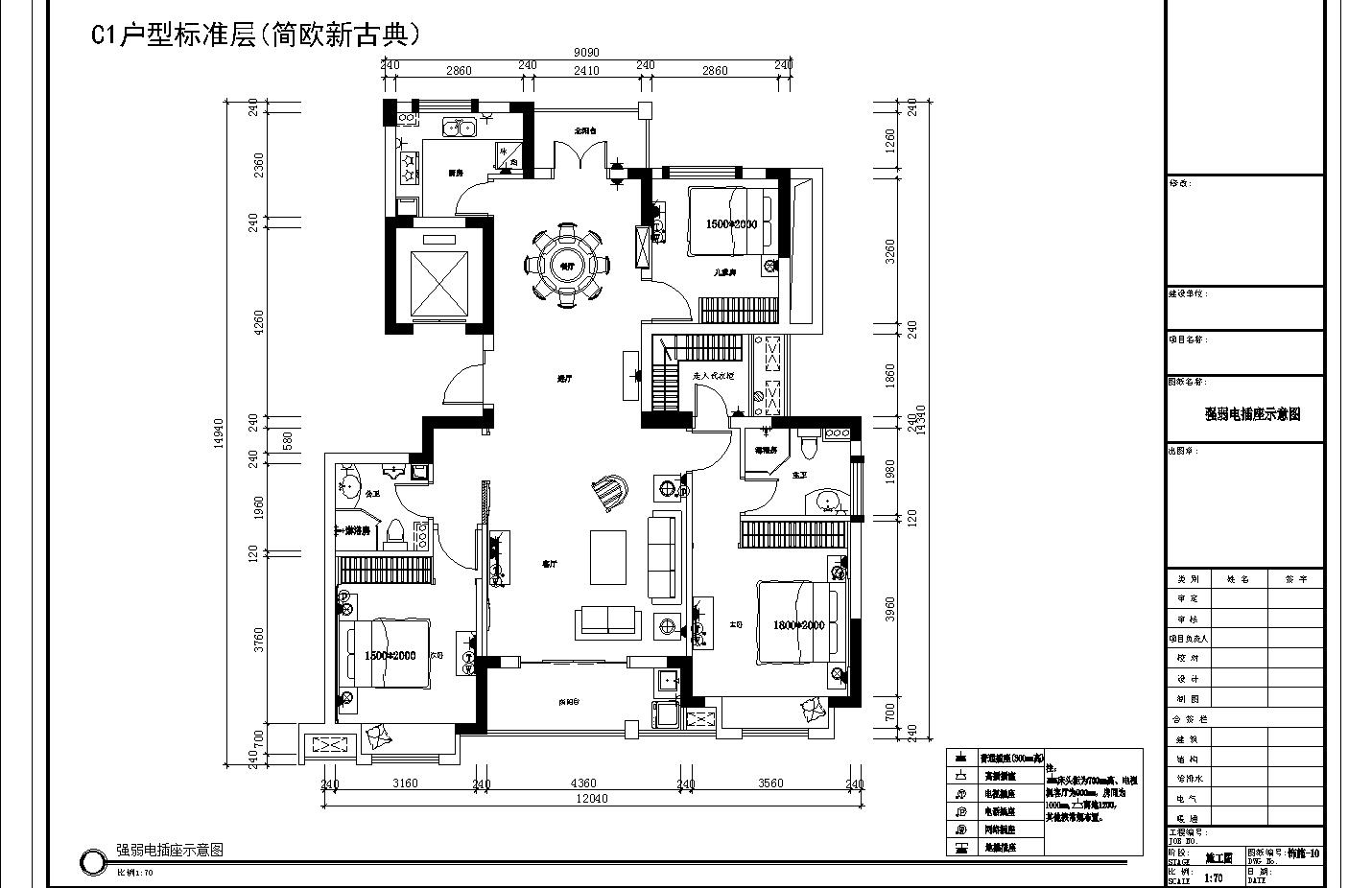
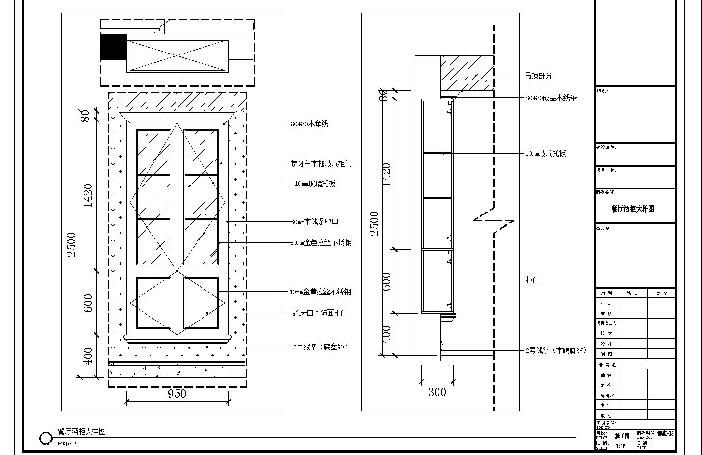
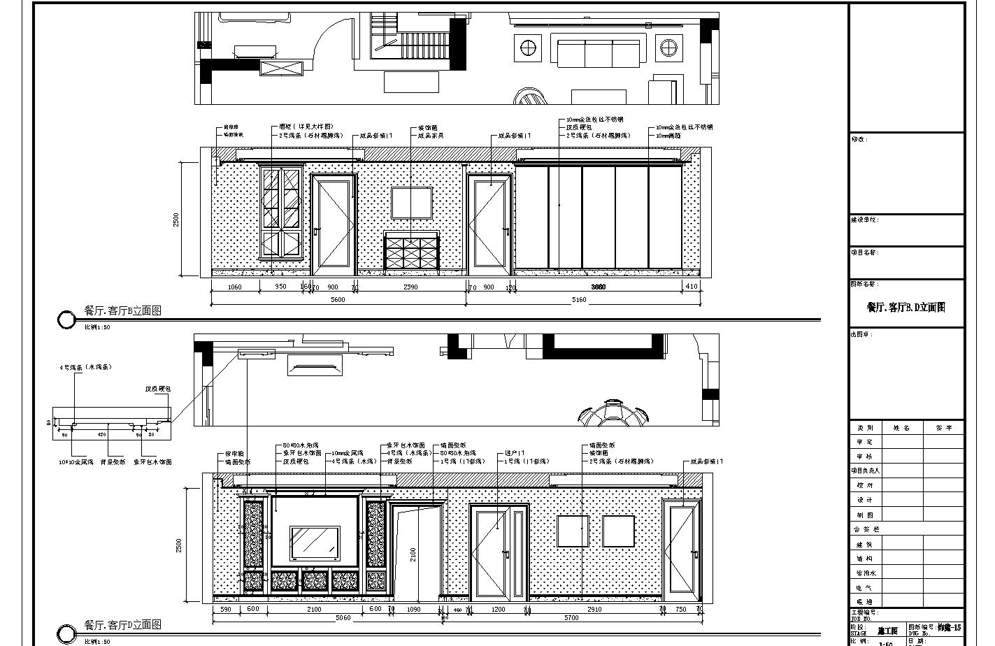
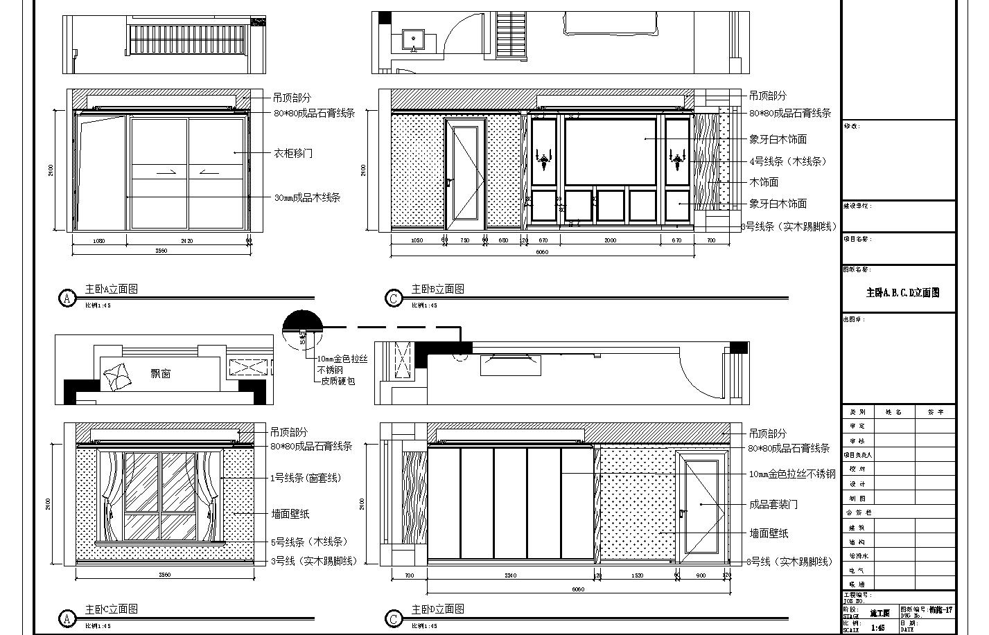
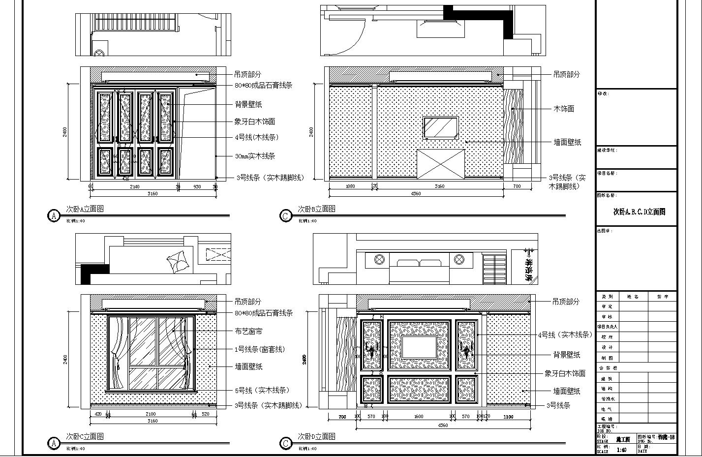
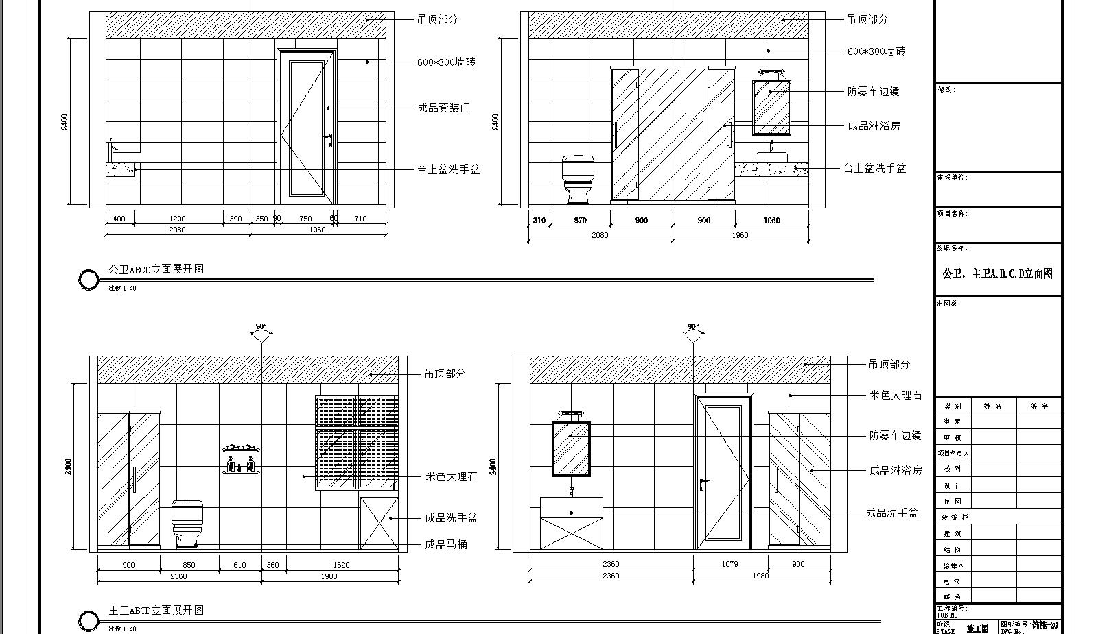
下面是施工图跟效果图
























当我们拿到户型图的时候,特别是自己觉得户型分区不怎么好的时候,这时候就是需要我们的室内设计师进行家居空间的功能分区进行合理的设计了。怎么样才能把家设计的每个空间都能很好的利用上,这就是装修的魅力之所在!而设计师在装修中起着主导的作用!
我们在装修中首先要确定自己的装修风格,然后根据风格进行家居的空间改造,然后进行施工图纸的设计与制作,最后就是我们的根据施工图进行室内效果图的制作,最后就是装修预算!
下面是施工图跟效果图























