家装有没有必要出效果图和施工图 (装修一定要有效果图和施工图吗)

户型为量房两厅两卫一厨一入户花园!

下面是效果图效果图

为什么别人家装修的好,为什么别人家装的房子好看

为什么别人家装修的好,为什么别人家装的房子好看

为什么别人家装修的好,为什么别人家装的房子好看

为什么别人家装修的好,为什么别人家装的房子好看

为什么别人家装修的好,为什么别人家装的房子好看

为什么别人家装修的好,为什么别人家装的房子好看

为什么别人家装修的好,为什么别人家装的房子好看

为什么别人家装修的好,为什么别人家装的房子好看

为什么别人家装修的好,为什么别人家装的房子好看

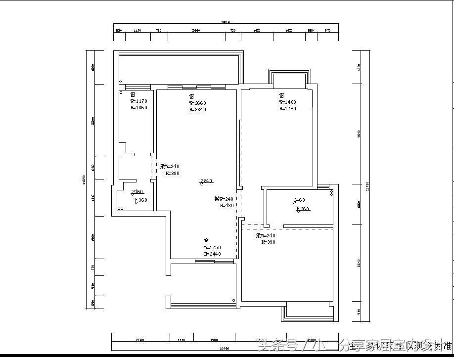
部分施工图

为什么别人家装修的好,为什么别人家装的房子好看

原始结构图

为什么别人家装修的好,为什么别人家装的房子好看

家具平面布置

大家要看到的是就是这个家具怎么布置才比较的好,这是很多人需要了解的。看看人家怎么设计。

为什么别人家装修的好,为什么别人家装的房子好看

吊灯布置图

为什么别人家装修的好,为什么别人家装的房子好看

在这里我们只能这样放出来!

正规装修前都会有施工图、效果图、预算书(预算我们之前放过了,这里就不重复),这才叫真正的装修!