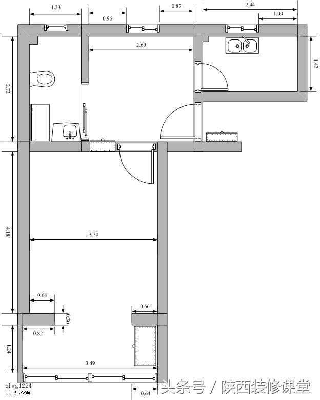
好先上 平面图是自己画的

拆旧前的厨房

这个是 厨房的门 刚刚油漆过一遍

厨房吊顶 看起来有条缝汗无法显示

刷了第二遍的 厨房门和门套

卧室一览
都是油漆过的木门


对面 储物柜 按上小把手了

柜门打开

这个 这个 加色-v-无法显示

换个角度的卧室

小厅里面的
实际比这个要浅 因为拍的时候 对焦去了窗外-v-无法显示

小厅的壁柜

打开柜门 -v-无法显示

厨房和大门位置 本来想白色防盗门的
但是 老辈不同意 改成深色的了-v-无法显示

浴室台盆柜

卫生间的另一边
花洒和毛巾架

这个是 花洒和浴霸
这个浴霸虽然很难看 但是看在便宜的份上 我忍了

餐厅的吊灯 还有 木质百叶窗

水槽

老规矩从阳台开始

或者换个角度

下面的电视柜是下午搞的

房价的家具
松木的 最便宜的实木家具-v-无法显示


小餐厅的 小餐桌
庆幸当初没有买大的 这套而且也便宜-v-无法显示

换个角度

厨房照片来了

关注左边 我搞了个t5的 料理灯 狂笑无法显示

3.5㎡的厨房 地方时宝贵的 炒菜时候那个锅盖只能请它立壁糕

在厨房拍一张 今天收工了
明天还要装4门柜和沙发-v-无法显示

请轻忽电视机中的人物

佩服自己一下

这个是保洁过的 卫生间一部分,明天可以上洗衣机了

乐家的吉拉达 马桶

小餐桌 餐椅

这个是桌边柜

在冰箱的角度看过去 不过冰箱还没买到



用来当茶几


西门子的冰箱 昨天送来了 银灰色比白色整整贵了300元
1级能耗 中规中矩的外形-v-无法显示

冰箱再来一张


窗帘也装好了

还是阳台

茶几上的蜡烛灯

再来

桌边柜 开始 堆积瓶瓶罐罐了-v-无法显示

吃饭前 把那个钟装上去了 -v-无法显示

新床单 真是的大红色还没拆开来呢-v-无法显示




