高考结束后
同学们要提前了解
大学和专业
今天择校菌给大家介绍
《建筑类专业》
毕业=下工地?搬砖!
还是做包工头!

建筑类专业来袭!
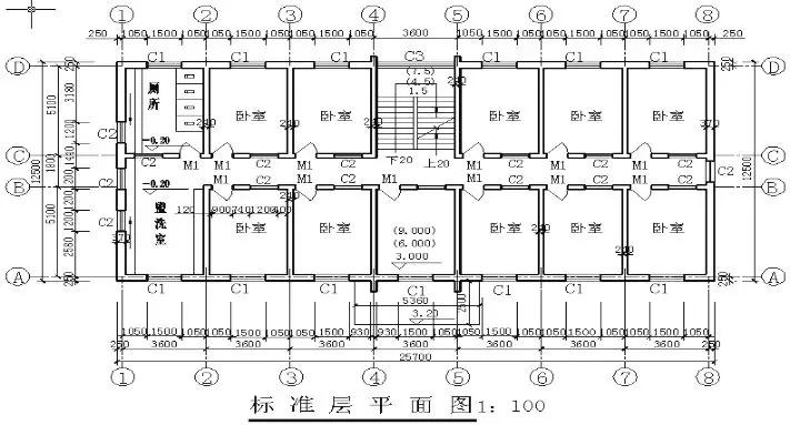
首先要看懂图纸!建筑施工图!

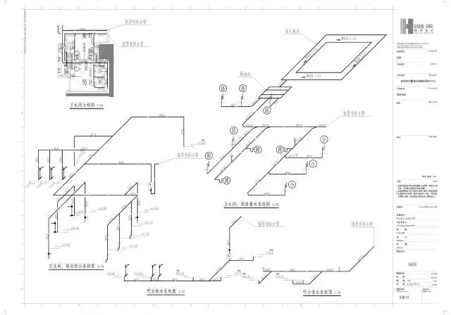
首先要看懂图纸!给排水!

首先要看懂图纸!采暖通风!

首先要看懂图纸!电气设备!

其次你要!施工工艺!


最后!一起工地见面!

工程造价

【主修课程】工程造价管理、建筑与装饰工程计量与计价、预算电算化、建筑识图与房屋构造、安装工程预算、建筑施工等。
【就业方向】学生毕业后能在工程造价咨询机构、工程监理咨询机构、施工企业、房地产开发企业、企事业基建部门等单位的相关部门从事土建、装饰、安装等专业工程造价计价与控制、工程招投标、合同管理、工程项目管理、监理等工作。

择校易专注广东大学和广东高考资讯分享,让你了解每一所广东高校,让你的志愿填报不存在困难。查询大学的录取分数线和广东最新的高考政策,上“择校易”网站。
获取更多干货,请私信回复“政策答疑”——获取最新高考政策;“高考试卷”——领取最新高考试卷;“志愿填报”——高考志愿填报服务。
