
苏老师
斯威特装饰工程有限公司 总监设计师
从业时间:15年
毕业学院:清华大学美术学院高研班
设计理念:无论理念还是专业上都必须站在一定的高度上,才能给客户足够的说服力,才能给客户足够的信任!除此之外最重 要的一点就是对客户高度负责!
所获荣誉:
中国室内装饰协会注册高级室内设计师职称
中国建筑装饰协会高级室内建筑师
2012年荣获第三届国际空间环境艺术设计大赛“筑巢奖”铜奖
2017年荣获清华大学“水木清华杯”铜奖
多次参加米兰国际家居展、德国包豪斯设计学院、北欧等国内外学术论坛
主要作品:
北京:望京别墅 西山一号等
南京:玛斯兰德 君临紫金 嘉瑞山庄 雅居乐 钟山紫卢 德基山庄 长江路九号等
西安:逸翠园 中海铂宫 鸿基紫韵 曲江公馆 湖城大境 中海御湖壹号 华侨城 盘古山庄 荣禾曲池东岸 南湖九号院 中海百贤府 等
设计案例赏析——
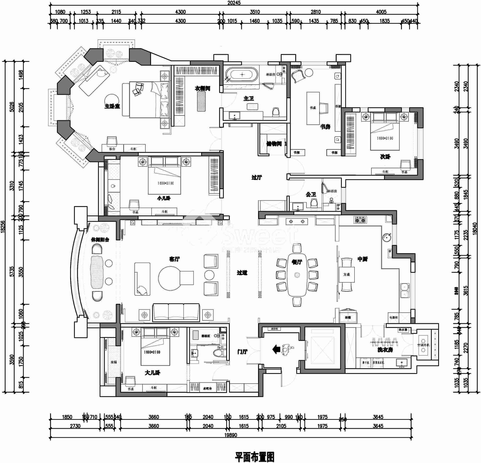
项目名称:荣禾 曲池东岸
户 型:大平层
建筑面积:270平
风格定位:新中式风格
常住人口:4口人(男主人、女主人和两个儿子)
基础造价:26.3万
全包价:89.5万
设计说明:
本案的设计风格为新中式,表达对清雅含蓄、端庄丰华的东方式精神境界的追求。
简约、质朴的设计风格是众多人群所喜爱的,石材、壁纸、和水墨画相衬。摒弃了繁琐和奢华,而汇集现代中式的优秀元素,以舒适机能为导向,强调“回归自然”,使居家变得更加轻松、舒适,而简单、自然的生活空间却能让人身心舒畅,感到宁静和安逸;藉着室内空间的解构和重组,体现出居住人追求品质、典雅生活,独特的色调与韵味充分体现出东方式的感触,气氛与意境的营造,更是对东方式精神境界的追求。

平面布局图

客厅

客厅

餐厅

餐厅另一个角度

过道

卧室
喜欢他作品的朋友可关注加收藏,小编每天会推送不一样的精彩哦! 别墅大宅装修设计引领者
如果喜欢我就关注
如果有用我就收藏
如果有感想就评论