在南方,许多农村家庭在选择自建房户型的时候会选择两层或三层的小别墅户型,一来看着气派,二来相对单层户型来说,在有限的宅基地上,两三层的户型可以带来更大的建筑面积。
但是在北方不少农村地区宅基地较大,所以单层农家院较多,今天住宅公园带来的是一款比较经典的来自北京农村的农家院建房分享,看一看没准能学到不少东西哦!

先来看一看这款户型所在村落街景,属于比较传统的北方农村的样子。

(占地面积:550平方米,建筑面积:280平方米。)
房子要想盖得好,选好图纸很重要。如果你想盖房子却还没找到合适的图纸,可以看看住宅公园分享过的几百套图纸中有没有你比较喜欢的哦。上图即为今天要介绍的这款户型的效果图。
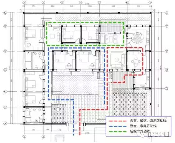
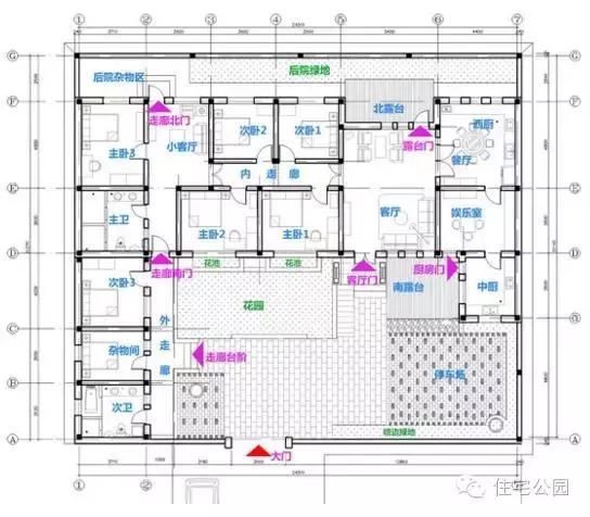
平面图及说明:


对于结构体系的简单说明:

这款户型采用的是砖混结构,做法基本是按照抗震设计的做法来,圈梁构造柱,屋面现浇。需要先做好条形基础垫层。

抗震体系

基础及结构体系剖面
施工过程说明:

做条形基础,做好之后进行土方回填平整土地。

砌筑墙体。
进行主体结构的施工。


屋面保温材料选用的是挤塑板。


采用了二次钢结构的入口雨罩

外墙喷涂的是真石漆。

上图中窗户下部的材料选用的是陶粒仿石材装饰。

前面介绍过的入口雨罩,安装的木材是表层刷过木蜡油的防腐木。

安装地暖管线
这套北方住宅采暖方式为地暖。

屋顶安装的瓦选用了油毡瓦。

小花坛,位于主卧室窗外。
内外效果图及造价:

室外效果图,简洁大方。

室内效果图,同样简约又好看。

来看一下这款户型的造价情况吧!基础与室内装修加起来,每平米大概花了一千三百块钱,外墙涂料、木材(防腐木)、室外装饰等外装费用二十万,家具等花了三万,还有各种其他花费一点五万,总共66.5万。但是各地区各项材料及人工费用都有差异,在你们那这房子得花多少钱?
如果平层不喜欢,南方地区可以盖2层以上,福建广东地区可以盖6层以上,住宅公园也有很多图纸可以参考。
微信公众号:住宅公园,450套乡村别墅图纸,建房预算施工技术展示。