
之前我们介绍过软硬包的基础概念、设计要点以及节点构造。今天我们来深挖一步,一起看看设计做完后,软硬包的施工流程,过程中的把控要点,验收规范以及细节收口处理等问题。
预计将为你解决下列问题:
1、 在现场如何指导施工班组做出合格的软硬包饰面?
2、 在制作与安装过程中,设计师要把控那些要点?
3、 软硬包与天地墙的常见收口方式有哪些?
01. 软硬包工艺流程解析
在开始之前,请你先回顾下软硬包的构造做法:

△软硬包干挂节点做法

△软硬包胶粘节点做法
我们之前提到过:软硬包的区别主要是材料自身有没有填充物,从构造做法上而言,它们没有任何区别。
接下来,一起去到现场,看看软硬包的施工现场:

上图是整个软硬包的安装流程图,下面开始一一讲解:
1、 基层验收

① 不管后期采用那种节点做法,对基层的平整度都有极高的要求,因此,在需要着手开始做软硬包时,因对木基层或石膏板基层进行平整度验收,尤其是木质板材基层,更应检查其平整度;
② 在做软硬包施工前,空间内机电设备,吊顶饰面,墙面基层,地面湿作业均应基本完成,才能进行后期软硬包安装。
2、 弹线定位

在需做软硬包饰面的部位,根据设计图纸进行弹线定位,定位出软硬包的安装位置;
对硬包弹线定位完成后,就有两种方式往下进行了,第一种叫“预制铺贴法”,另一种叫“直接铺贴法”;这两种方式,分别用于不同的场合以及案例,我们先介绍完具体做法,最后会统一对这两种施工做法进行对比,从而选择适合你的工艺流程。
先从预制铺贴法开始分析

1、 订型材条:按照图纸工艺铺订型材条。
① 将型材条按墙面划线铺钉;
② 遇到交叉时在相交位置将型条固定面剪出缺口以免相交处重叠。
③ 遇到曲线时,将型条固定面剪成锯齿状后弯曲铺钉,原理与弯多层板一个道理。

2、 铺放填充物:根据型条尺寸,切割并填放填充物(填充物多为阻燃海绵)。
① 为避免海绵腐蚀,造成海绵厚度减少,底部发硬,以至于软包不饱满,所以胶粘剂不能用酸性胶粘剂;
② 切割海绵时,为避免海绵边缘出现锯齿形,可用较大铲刀及锋利刀沿 '海绵'边缘切下,以保整齐。

3、 插入面料:将面料插人型材内。
① 跟贴壁纸一样,将面料铺于软硬包基面,并通过铲刀将面料铲入型材条内;
② 面料裁割与铲入时,应关注花纹走向,避免花纹错乱影响观感。

4、 表面修整:除尘清理,钉粘保护膜和处理胶痕,完成软包安装。
以上是关于预制铺贴法的全流程及把控要点,此方法只能针对软包构造,所以,接下来,我们来看看现在最常用的“直接铺贴法”。
直接铺贴法
直接铺贴法与预制铺贴法最大的不同就在于它是把每一块软硬包做成成品,然后直接通过胶粘或者干挂固定于基层板材上。所以,了解了软硬包的不同制作流程,就等于掌握了直接铺贴法。
1、 软包的工艺流程
根据上期的公式:软包=基层板材+填充物+面料,我们可以得到下列步骤:

2、 硬包的工艺流程

△玻镁板硬包制作

△安装成品硬包面板
好了,软硬包的两种施工流程已经介绍完了,你可以回过头,去看看我给你准备的安装路径图,现在它们是不是变的一目了然了呢?
接下来我们来说说这两种铺贴方式有什么区别:

△预制铺贴法
预制铺贴法:该方法是最传统的硬包做法,是很多年前在小空间装饰中,非常流行的做法,一是因为它可以应对不同的硬包造型;二是可以现场切割定制,对整体造型有良好的把控,对墙面的平整度要求没有直铺式那么高;三是因为它成本低,所以在小空间的装饰中经常简单看到它的身影。
但是,这种做法只能用于简单纹样或纯纹样的软包,不能用于硬包基层,而且,最终做出的饰面效果好坏,完全取决于工人师傅的手艺。
所以,并不适合大面的软包,还有一点,现在稍具规模的设计项目,都会采用成品定制的软包到场直接安装,所以,预制式铺贴法只适用于要求较低的小空间的装饰领域使用。

△直接铺贴法
直接铺贴法:我们提到的胶粘和干挂两种节点形式,都是基于该种做法而言的,因此,可以看出,这种做法是目前安装软硬包的主流方式,其优点不言而喻,速度快,效率高;
所以,你应该重点掌握该种形式的流程及把控要点即可。
02. 细节收口与关注事项
现在,软硬包的节点做法、工艺流程以及把控要点你都知道了,下面我们来看看关于软硬包在不同装饰部位的收口方式:

建议你结合我们给收 边收口底层逻辑的定义(上图),来进行解读与记忆,绝对事半功倍。
下面还是以胶粘式做法的节点为例,干挂式的做法也相同,顾不在过多赘述。

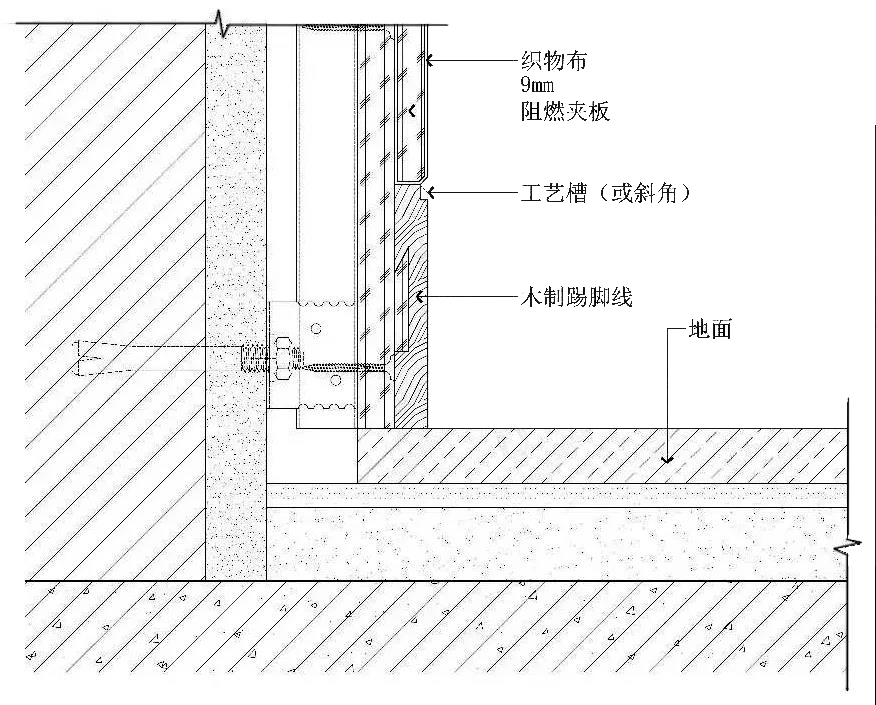
△软硬包与石材踢脚线收口

△软硬包与木质(金属)踢脚线收口

△软硬包与乳胶漆天花平顶收口

△软硬包与天花石膏线收口

△软硬包上金属条分缝(一)

△软硬包上金属条分缝(二)

△软硬包阳角收口(一)
△软硬包阳角收口(二)

△软硬包阴角收口

△软硬包与石材收口

△软硬包与木饰面收口
关注事项:
最后,通过几个设计师在使用软硬包时需要留意的关注点来结束实战指南的软硬包板块:
1、不管是软包还是硬包,在选择基层板材时,最需要考虑的就是其防潮性,所以,推荐使用高密度板做为基层板使用。
2、防火规范规定,软包的填充物厚度不应大于15mm,同时,使用面积不能大于墙画或吊顶面积的10%,否则消防验收通不过,这一点设计师一定要格外留意。

△木龙骨基层做硬包
3、原则上,在高标准的设计项目里面,是不能使用低于B1级的面料做为软硬包饰面的,同时也不能使用木龙骨做为基层材料,为了保险起见,在做完软硬包后,建议在其表面喷涂阻燃剂。
4、不同的饰面面料的宽幅是不同的,在审图时,应当格外关注软硬包的宽度与所采用饰面面料的宽幅是否匹配,因根据饰面面料的宽幅做出适当的尺度调整;
比如:使用壁布的宽幅为1450mm,则采用硬包的宽度要么≤600mm,要么就在1000mm左右,这样对于壁布的损耗才能做到最小;否则,你采用800mm的宽幅,按一边留50mm的距离来算,包好硬包后,剩下的壁布为550mm宽,这样一来,剩下的壁布就浪费掉了。
以上是硬包宽度小于壁布的情况,反过来,硬包尺寸大于壁布的情况也时常发生,比如:壁布宽幅为960,你做了950mm硬包宽度。最后,下单到了现场,要么就是出现不对花,要么就是整个材料不能用,废掉了。
所以,关于这一点,设计师应该格外留意,因为,最后的账是算在设计师头上的。

5、对于大面积硬包板或特殊需要枪钉固定的部位,应尽量将汽钉位于接缝隐蔽部位,板材的正面尽量不要用枪钉固定,特别皮革硬包板更严禁枪钉。
因为使用枪钉时,一是容易起皱以及造成板材受力不均,二是枪钉长时间会生锈,返在面料表面形成锈点。
6、常规情况下,当做完软硬包饰面后,整体完成面包括基层的厚度大约需要50mm左右,在前期核对完成面尺度审图时,应当考虑进去;
7、皮革或织物布料,在制作硬包板时,应将布料绷紧,以免日后硬包板出现褶皱等现象。必要时可以在皮革或布料上涂刷胶水进行粘接,但需关注胶水不能过多,且不能是酸性胶水,否则容易导致布料变色或变质。
好了,正文内容到这里就结束了,稍微总结一下:
1、根据软硬包工艺流程图看出,不同的设计效果和项目大小,有预制铺贴法和直接铺贴法两种工艺流程来对软包进行安装,但我们推荐使用直接铺贴法。
2、通过11个节点图纸,解决了软硬包与天花,踢脚线、不锈钢条以及阴阳角的细节收口问题。
3、设计师对于软硬包设计的落地,应当重点把控软硬包的使用面积以及防火属性,同时,需关注选择材料的宽幅与板材尺寸大小的匹配等7个知识要点。
如需要CAD最新插件软件包图库的关注私聊我
END