这是一套54平的小两房,没有太多的钱,就买了一套这样的小户型。由于我们夫妻两个都比较懒,户型较小就没有去强烈的比较,找了个公司谈,介绍好的师傅 ,我们打算主要做木工,最终在以16800的清包签下合同。我们打算2015年7月1日开工,虽然清包的价格在那边,可能后面会突然要加钱,希望不要加多,最重要的是要做好,希望不要让我们失望。
小区:德胜东村
面积:54方小两房
装修方式:清包
装修风格:现代简约
开装时间:2015.7.1
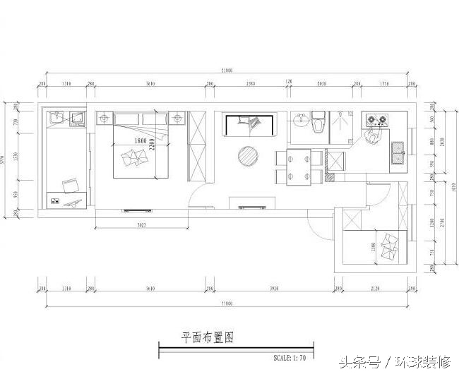
户型图:

先给大家晒一下我买材料的开销费用吧!
已开销:
1. 塑钢门窗与外笼4300元
2. 拆旧2100元(包括垃圾清理)
3. 水泥黄沙用80袋1000元
4. 楼龙防盗门1030元
5. 已经购买了箭牌的一个洗手盆,一龙头,座便器,花洒(一大一小),厨房水槽,淋浴房门总共3500元(都是一些特价品)考虑到厨房卫生间小,买的洗手盆,水龙头都比较小
6. 千年舟强化地板已经预定,72元/方,已付定金500元
7. 瓷砖是冠珠的,一款特价品,墙面65元/方,地面82元/方,次瓷砖用于阳台等3元/片,7.8日砖已到位,一共花费3520
8. 水电材料大部分购于芊成,总共3220
9.折叠门400
10.亿诺806b油烟机+雅佳燃气灶3400
11.千年舟板材7700
12.华润腻子材料+木器漆1650
13.立邦底漆1组210
14.佛山照明灯具1500
15.石膏线340
开工日期在2015年7月1日,开始做水电,师傅们效率还不错 在7月6日就已经完成了,等待验收。给大家上图。

入口处

这是入口处新安装的配电箱

这边要做个鞋柜,准备将鞋柜最下层打造成我的豪华版弱电箱。

客厅电视墙的电路布线

卫生间

卫生间门口的管道和电路布线

小房间的床头做一个插座

这是主卧靠阳台的地方

小房间做一个空调插座

主卧门口

主卧门口墙

主卧床头布线

主卧的电视墙布线

主卧靠阳台区域布线

主卧靠阳台区域布线2
我家的装修进度很快,验收完水电,马上就进入贴瓷砖了,帖瓷砖的效果这边不上图,后面直接上效果图比较好。瓷砖贴好后,我追期待的木工上场了,去厂里定制了很多木板都到了,希望师傅可以把我的柜子做的很漂亮!
木工板材已经购买,总计4800,我们打算床也让木工师傅做,感觉床只要简单大方,效果还是靠床品配出来的。昨天还购买了卫生间折叠门,400元。厨房卫生间两块门槛石,210元,老板娘很好,建议我们选价格便宜点,但是又比较坚固的门槛石,还在他们店购买了挡水条。下次还打算去他家买橱柜门跟人造石,价格都还合适,而且老板娘人很好.

这是我的大衣柜,初步的完成框架。

这是放在阳台的书柜。

这是厨房放碗碟的柜子。

电视机柜,左右两边会各加两个抽屉

小房间太小,所以让木工做的床,尺寸只有110*185 床头留了25厘米上面可以当床头柜用,还做了一长条的桌子

小房间床没去买,照样自己做,下面是可以储藏的,所以床板上有两个孔。

主卧的大床,为了省点钱而且自己做的质量好,关键款式可以按照自己喜欢的做,我家老婆喜欢低低的床沿。
基本木工家具做好,给家具上色,给大家晒晒图,评价这个颜色怎么样。

阳台书柜,我们的家具都白色的,但是考虑到全白并不好看,所以书柜凹进去部分漆了清漆

这是阳台书柜的整体形象。

小房间的柜子安装了门,这个门是木工做的,地方太小不能拍完整。


晚上和老婆上网看沙发,两人在确定好了沙发,但是在沙发背景墙这边纠结了,到底要褐色背景还是灰色背景呢。
家具的颜色都上色了之后,很快软装就入驻了,整个家都装修的差不多,给大家晒一晒初步样式图吧!
先给大家展示一下我买的登,看看效果。

客厅灯

大房间灯

餐厅灯,刚装上去就坏了一个灯,店家会来换。

进门就是迷你餐厅

浴室柜,柜体是木工做的


洗衣柜,600元挺合算的,简单大方,下面还有个拉篮

主卧,照片拍糊了,
软装入驻,把房间收拾了一下,完全焕然一新的感觉。最后的结果也是大家最想看到的,给大家晒图了。

梳妆台是店里买的,电视柜是自己请工人做的,没想到这样搭配还挺协调的。

卫生间打扫干净了,浴帘跟杆子淘宝上买的,还不错

主卧席梦思



主卧阳台移门,窗帘安装完毕

面向主卧的小衣柜



窗帘的搭配,老婆一直对窗帘不太满意,一直觉得要单调一点好。我觉得也还可以了。

和老婆上网购的沙发到了,自己觉得还不错。


就餐区的桌子、镜子、灯具都搭配好了,这是我老婆的挑的,挺满意的。

主卧的大床软包,看着就舒服吧。


这是次卧的装饰,木工做的柜子和床,软包的效果没有主卧的好,但是靠着舒服。
如果你近期就要装修,点击文末图片推广,获取多套设计方案!
-------------------------分割线----------------------------
这样的装修你喜欢吗?
关注微信公众号获取更多资讯: zhuangxiudashen(家居装修大神)
免费设计群:120565692