墨西哥国家住房委员会(CONAVI)在 2016 年 2 月重新制定了提供联邦补贴的操作规则。根据新的法规,使用传统材料:竹子、稻草、棕榈、木材等为主要结构建造的建筑是具有不稳定结构的危险住房,所以联邦委员会不会为这些建筑提供补贴。因此,面向 Tepetzintan 社区开展的自建住房技术培训和参与式设计工作坊被搁置了,失去了政府的支持,居民更加难以自行建造他们的家园。为了改变当前这种状况,建筑师决定与 Tosepan Titataniske 和 Tosepan Ojtatsentekitinij 原住民合作社一起进行第二次住房运动,避免使用当地竹子作为结构要素,以符合 CONAVI 的新规定,帮助当地居民获得政府的补贴。
▼为了满足政府的规定而设计的新型住房

▼新建筑的结构避免使用了不稳定的传统材料

▼室内

第二次住房实践中的建筑保留了竹木面板的设计,模块化的预制结构使用了三个元件:两个桁架结构、一个面板和它的变体。一旦完成结构的框架,预制的元件可以快速组装,显著减少了现场施工的时间。此外,一周的装配时间可以降低劳动力成本和项目预算。
▼模块化的预制元件

▼简单明确的结构降低了施工难度和成本

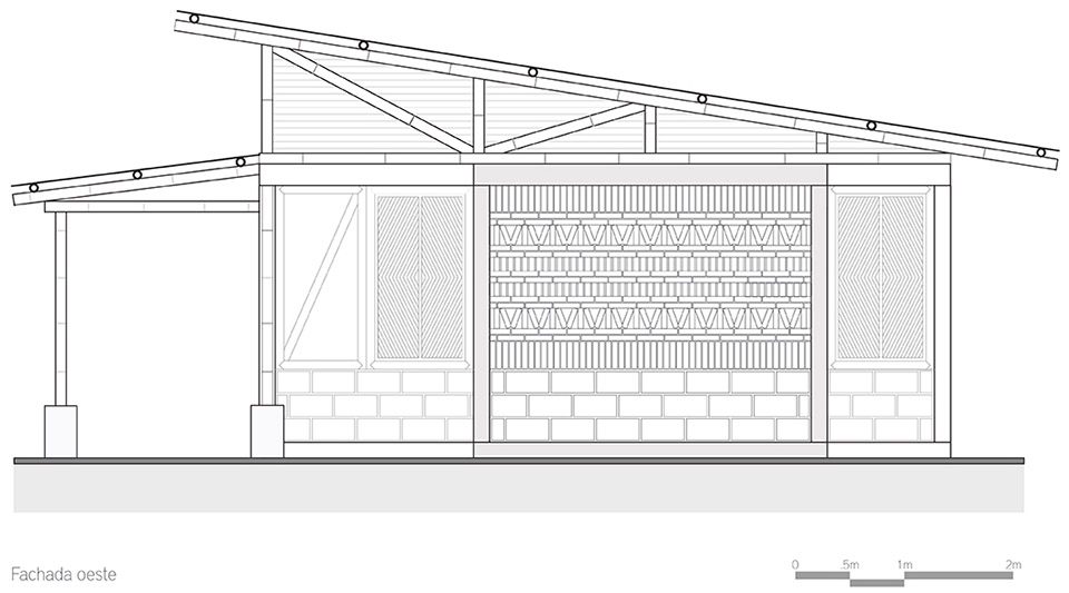
在内部空间方面,房子响应了当地纳瓦特尔人的习俗和传统:他们将主厅是为整个房子的中心元素 – 用于干燥咖啡和玉米作物。厨房墙壁上的格子状开孔使得室内外的通风良好,可以放出烧柴时产生的烟雾。
▼内部空间


▼良好的通风有助于适应当地的高温

安装完成后,竹木面板上涂上一种名叫 istle 的涂料,这是当地制作咖啡袋的材料;和一层薄薄的砂浆。一旦地基的结构完成建设,梁和面板会被固定在基本结构之上。然后一种由食品级铝废料制成的产品会被运用在建筑的建造过程中。这种产品有着优异的声学、热学和抗菌性能。除了使用当地的传统建筑材料之外,村名可以亲身参与到建筑的建造过程中,降低了家庭住房的建设成本,得到了极佳的环境效果
▼厨房空间的格子状墙壁有助于通风

▼竹木面板上的涂料有助于提升材料的寿命

在建筑用水的方面,设计师将雨水收集的共能纳入到建筑设计当中,建筑背阴一侧的湿地将中水进行生物处理。气候方面,采用了基本的生物气候战略以应对该地区的高温。
▼环境策略

▼平面

▼立面


▼剖面


▼结构细部

Collaborators: Unión de Cooperativas Tosepan Titataniske
Location: Cuetzalan del Progreso, Puebla. México.
Year: 2016
Builded Surface: 60 sqm
Photographer: Onnis Luque