厌倦了都市的喧嚣与单调,
有没有想过在青山绿水之间建一栋小屋,
肆意的悠闲徜徉?
很多朋友国庆选择出门去旅游,但无奈节假日哪里都是人山人海,也只是花钱看个人头罢了。而有一些朋友,在农村老家建起了一栋小别墅,每逢节假日就带上家人回农村老家过上几天悠闲的田园生活。
今天带来4套农村的实拍户型,有意自建房的朋友可以参考一下。
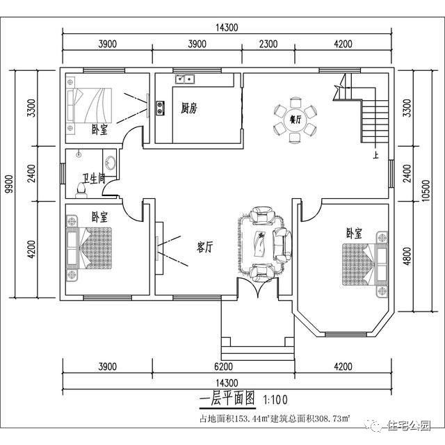
一、江苏农村30万(主体)自建
实拍图:无过多粉饰,素雅的白色外墙加蓝色瓦顶,大气典雅,经久不衰!大面积的落地窗,最大程度优化采光,让室内空间明亮节能!而这个户型最大的亮点就是建筑设计方正,无浪费面积,节约用地,用有限的宅地面积打造出更多的生活用房。

平面图:

一层设:1客厅、1厨房、1餐厅、3卧室、1卫生间;
二层设:1客厅、1书房、3卧室、1卫生间。

二、河南农村25万(主体)自建
实拍图:这套欧式别墅简约大气,看似简单,设计师却花了不少心思,墙面运用很经典的白色,防盗窗和门厅罗马柱统一,增添欧式经典元素和檐廊的设计,增加了别墅的气质。

平面图:

一层设:1玄关、1客厅、1厨房、1餐厅、1娱乐室、1卧室、1卫生间;
二层设:1客厅、3卧室、1卫生间。

三、湖南农村37万(主体)自建
实拍图:这套十分洋气的欧式小别墅,外墙采用柔和的朱红色瓷砖装饰,符合农村人审美。挑高的欧式门斗、唯美大气的镀膜落地窗,错落有致的别墅形态,都使得这套别墅十分吸睛。


平面图:

一层设:1玄关、1客厅、1厨房、1餐厅、2卧室、1车库、2卫生间;
二层设:1客厅、1茶室、4卧室、1露台、2卫生间。

四、山东农村45万(主体)自建
实拍图:房子正中间是入户门、上面是阳台,两侧是对称的罗马柱、老虎窗,再往两侧是对称的弧形窗、落地窗。最外侧就不是对称设计了,一侧是封闭式的车库和露台,一侧是凹进去造型。在别墅的外装上还恰当的运用了文化石,时尚、接地气。

平面图:

一层设:1客厅、1堂屋、1厨房、1餐厅、1卧室、1储藏间、1车库、1卫生间。
二层设:1客厅、1书房、1棋牌室、2卧室、1露台、1卫生间。

大家感觉这4套户型怎么样呢?
微信公众号:新型房屋,500套别墅图纸,别墅施工专家答疑。