好消息!三明将新建一栋地标性大楼
就在当前炙手可热的徐碧片区!
大商圈逐步打造形成
一起期待!
近日,三明市自然资源局公布了
关于“信和广场”项目《建设工程规划许可证》变更的批前公示

什么时候多了一个大楼?
“信和广场”是什么来头?
01 【三明梅园拿下的新地块】
该项目位于梅列区徐碧新城二期地块东侧
梅列区350402-03-D-07-A(徐碧新城F12)地块
去年被三明梅园国际大酒店有限公司拍下 查看去年报道▼三明梅园国际酒店在市区再拿地!就在这个炙手可热的新城!

彼时曾引发大家的关注
是否将再建一个五星级大酒店?




以上为网友提供的地块实拍(2020年)
02
【规划有变,正在公示】
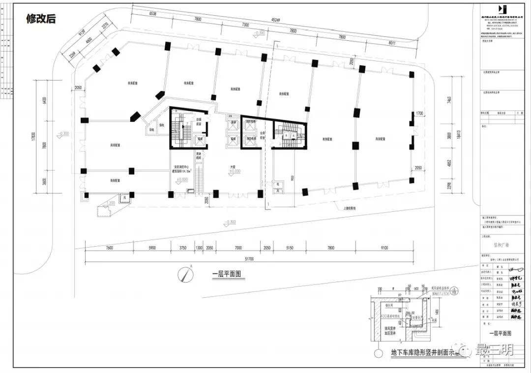
昨天,在公示里明确表示
该地块为商务用地(B2)、旅馆用地(B14)(用地性质)建设工程为一栋高层公共建筑(功能为办公)
计容建筑面积为24430㎡
容积率:6以下
建筑密度:上限27%绿地率:>30%建筑高度:<100米


值得一提的是,其原来的设计稿中的
酒店设计均已改成商务配套服务型公寓也改成了单元式办公











建筑高度拟为90米,一共22层
又一座办公大楼要兴起
03
【效果图出炉,一睹风采】
同时公布的还有办公大楼的规划效果图
大家一起感受下这颜值





公示期过后,该项目或将开启建设
随着徐碧片区的发展,人气旺盛是必然
徐碧片区也将成为集商务办公、休闲娱乐
为一体的大商圈,未来可期
至于大型酒店,是否会落地贵溪洋片区呢
我们持续关注

新浪网三明站微信公众号:最三明