经典名句网
首页
全球穿搭灵感
中标书局
重庆焱烙科技
木工刀具配件耗材
汽车研发工程师
缘叶二次元
首页
›
硕硕通
›
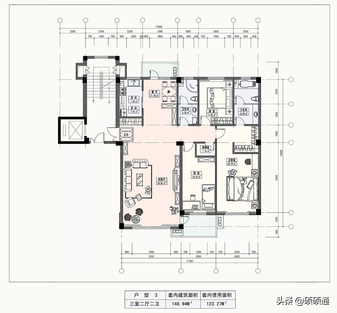
户型案例分享100例 (分享3室2厅2卫108平经典户型)
户型案例分享100例 (分享3室2厅2卫108平经典户型)
🏷️
硕硕通
✍️ 建工资讯、学习服务,关注硕硕通,了解更多最新动态。
📅 2026-04-25 17:57:12