今日房产资讯:
2019年10月26日,观澜湖上东区2区开盘,均价21000元/平精装交房,开盘一次性85折/按揭88折优惠,送五年高尔夫和五年温泉免费业主权益,还可免试入学。
三种主力户型在售:
A户型,103.19-105.39㎡,三房两厅两卫;
B户型,121.87-122.41㎡,三房两厅两卫;
C户型,138.68-141.89㎡,四房两厅两卫。

—【五大优势】—
1、占据观澜湖商业中心。
上东区紧邻整个观澜湖片区最繁华的中心商业区—观澜湖新城。
2、交通便捷,通达性强。
紧连羊山大道、观澜湖大道,5分钟达高尔夫球会、观澜湖酒店、五大洲主题矿温泉、电影公社等,10分钟达高铁东站,15分钟车程达美兰机场。
3、配套齐全,生活无忧。
巴迪奥超市、观澜湖奥特莱斯,狂野水世界,Hard Rock音乐主题酒店、万丽酒店、丽思卡尔顿酒店。集合了吃喝玩乐购多维业态。
4、教育资源,得天独厚。
北边是正在规划建设中的海南大学国际校区,东部为海南华侨中学观澜湖学校,涵盖幼儿园到高中,家门口即可享受一站式、全周期顶级教育资源。以及PGA高尔夫学院、海口巴萨精英足院。
5、优质户型,明星产品
纯板式建筑、精装美宅、两梯两户尽显私密和尊贵;103-141平3房至四房,前后双/三阳台,南北通透,通风采光极佳,超大阔景阳台,提升生活的景观体验,超大赠送面积。






改造前A户型,103.19-105.39㎡;改造后如下图

改造后A户型,三房两厅两卫;

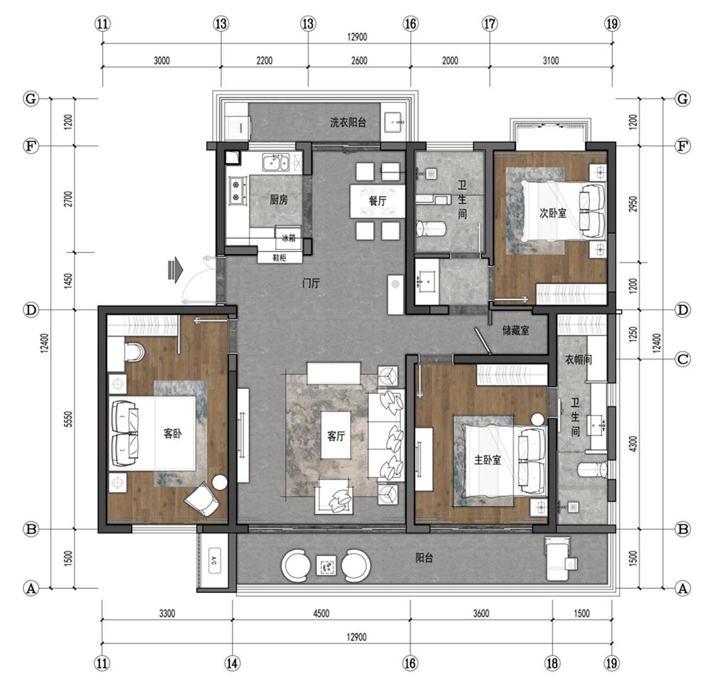
改造前B户型,121.87-122.41㎡,改造后如下图

改造后B户型,三房两厅两卫;

改造前C户型,138.68-141.89㎡,改造后如下图。

改造前C户型,四房两厅两卫。
注:如有不符,请以开发商营销中心提供的户型图纸为准。