经典名句网
首页
肥仔嘚啵嘚
贾艺术家
小诺爱悌
汇林食品
大木沉
佑妈说Excel
首页
›
设计案例欣赏
›
1-3m宽衣柜设计尺寸+科学布局
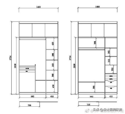
1-3m宽衣柜设计尺寸+科学布局
🏷️
设计案例欣赏
✍️ 提供实用的家居、装修知识
📅 2026-04-20 15:18:13