
3月20日,广州市公共资源交易中心发布《广东交通设计大厦施工总承包招标公告》,广东省交通规划设计研究院股份有限公司对广东交通设计大厦工程进行施工总承包公开招标。这表示广东交通设计大厦开工建设提上日程。

广东交通设计大厦效果图
小e了解到,2018年年底广州设计之都第一宗商务用地成功出让,广东省交通规划设计研究院股份有限公司以24838万元竞得,并将在地块上建设广东交通设计大厦,项目建设周期预计两到三年时间。如今,广东交通设计大厦工程项目开始进行施工总承包招标。
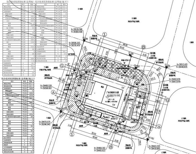
据招标公告显示,该项目建设地点位于广州市白云区鹤龙街黄边村的AB2901047地块。该工程项目总建筑面积约44012平方米。其中地下3层面积约13670平米(人防面积1615平米),地上23层建筑面积约30344平米。项目总投资约为人民币54382万元,其中工程费用约人民币27774万元。项目建设内容主要包括土建、安装工程、室外附属工程。
大厦北侧衔接广州设计之都的办公区域,与各大设计企业的办公总部聚集在一起,营造浓厚的设计氛围。西侧连接设计总部花园的庭院绿廊,东南面连接白云山脉。场地内部规划大面积的景观绿廊与白云山、设计之都绿色廊道的空间自然集合成一个整体,塑造望山见水的绿色景观视廊,为整个园区营造良好绿色空间。

广东交通设计大厦工程平面图
广州设计之都位于白云区鹤龙街黄边片区,项目定位为粤港澳大湾区设计产业集聚的国际品牌摇篮、华南首个“一带一路”设计服务贸易中心、广州首个B2B设计服务共享平台。项目建成后,其将成为功能复合、配套完善、产业集聚、创新突出、创业活跃、全方位为设计科技创新企业与人才提供沟通与资源共享的平台。预计到2025年,园区营业收入将达500亿元,设计企业300家以上。
【图文记者 陈子垤】
【编辑 楚韵】
通讯员 鹤龙街
来源:微社区e家通活力鹤龙(微信号: xxsbejthlhl)