一、施工准备及条件
1、建筑内保温工程施工前,需进行保温的墙体上的门窗框应安装完毕。水暖及装饰工程需要的管卡、挂件等预埋件,应留出位置或预埋完毕。电气工程的暗管线、接线盒等应埋设完毕,并应完成暗管线的穿带线工作。
2、基层墙体已质量验收合格。基层应坚实、平整、洁净。对基层墙体不符合保温施工要求的部位进行有效处理。
3、施工期间及完工后24小时内,基层墙体表面及施工环境空气温度应不低于0℃,平均气温应不低于5℃。
4、雨天施工应对窗洞口等可能飘雨的部位采取有效遮挡措施,防止雨水浸湿墙面。
二、施工工艺及要点

(一)基层墙体处理
1、对基层墙体上的孔洞、蜂窝、麻面要用加胶水泥砂浆填塞、补抹密实。门窗与墙体交接处填补密实。对墙表面≥10mm的高凸处进行剔平处理。
2、清除基层墙体上的灰尘、油渍、污垢、疏松物等影响粘结质量的异物。
3、混凝土表面毛化处理:需在基层湿润的情况下,用掺加建筑胶的水泥浆将剪力墙、梁等平光的混凝土表面喷或甩成厚度1.5~3mm的凹凸毛糙面;水泥浆层需在湿润状态下养护2-3天方可进行下道工序施工。
4、检查墙体基层的平整度和垂直度。如局部偏差较大,应先用1:2.5水泥砂浆找平,使平整度和垂直度达到4mm以内。
5、若基体表面过于干燥或表面温度超过35℃时,应在保温砂浆施工前一天用水淋湿。
(二)吊垂直线、做灰饼、冲筋
1、吊垂直线:从墙顶至楼地面吊垂直线,在侧墙、顶板处根据基层最凸出部位和保温层设计厚度(35mm)弹好控制线。
2、先用搅拌好的保温砂浆做直径为30 mm、间距不大于1.5m的灰饼,然后在上下灰饼之间冲筋,其厚度应以墙面最高处抹灰厚度不小于设计厚度35mm为准。并应进行垂直度检查,门窗口处及墙体阳角部分宜做护角。
(三)保温材料施工
1、界面砂浆施工
(1)搅拌:界面砂浆为单组分预混干粉料,每袋25kg。直接加水搅拌均匀即可施工;按每袋25kg的界面砂浆加水7-9kg(视气温情况)搅拌,搅拌至界面砂浆无细小颗粒和粉团时,静置5分钟后再搅拌一次方可使用。
(2)涂刷界面砂浆。用喷枪或滚刷将搅拌好的界面砂浆均匀地涂刷于墙面上。界面砂浆层的厚度一般为1~1.5mm,
(3)施工要点:
1)施工期间气温较高时,应在界面砂浆施工前12小时用水将墙面淋湿。
界面砂浆涂刷应均匀满涂于基层上,包括门窗洞口侧面,不得有漏涂。涂刷界面砂浆后的墙面间隔1~2小时趁其未干即应进行下道工序的施工。应作好施工检查验收记录。
2)搅拌后的界面砂浆应在2小时内用完。
2、保温砂浆施工:
(1)搅拌:保温砂浆为单组分干粉材料,每袋25kg。现场不得添加除水以外的其他材料。施工时只需直接加洁净水搅拌均匀即可使用;每袋保温砂浆加水10~3kg(视气温情况)。应采用专用机械搅拌,搅拌时间不宜少于3分钟,且不宜大于6分钟;一般搅拌5-6分钟,用手握成团,浆料柔糍无松散现象即可使用施工;搅拌好的保温砂浆应在2小时内用完。
(2)施工要点:
1)保温砂浆层施工应在界面砂浆层涂刷后1-2小时、未干之前进行,以避免保温砂浆因墙面干燥失水太快而出现开裂等现象;
2)抹保温砂浆时应分层进行。每层厚度应控制在20mm内,最后一遍施工厚度宜控制在10mm左右。施工时须用力抹压均匀、密实,使保温砂浆和基层结合牢固。应确保保温砂浆与基层及各层之间不脱层、不空鼓、不开裂。
3)在砖墙与混凝土结构交接处抹保温砂浆时,必须布设耐碱玻璃纤维网布加强;为便于保证加强网布的位置准确和质量,同一面墙抹第一遍保温砂浆时,应先完成需布设加强网部位的施工,再进行大面的施工。即:先在砖墙与混凝土结构交接处抹约300mm宽第一遍保温砂浆(交接缝两侧宽度各不小于100mm),随即在其上抹压200mm宽耐碱玻纤网布(交接缝每侧100mm),当完成一面墙的加强网布施工后,紧接着抹其余墙面第一遍保温砂浆。
4)第一遍保温砂浆施工后,当其含水率不大于50%时,且间隔24小时以上,可进行第二遍保温砂浆施工;批抹最后一遍保温砂浆的厚度以与灰饼或冲筋面平齐为准,墙面门窗口平整度和垂直度应达到标准规定。每抹完一个墙面,应用铝合金刮杠刮平找直,抹完2小时后,用抹子压实赶平。
(3)施工要点:
1)现场搅拌时,保温砂浆必须用整包或整包的倍数进行加水搅拌,严禁将同包装保温砂浆分批
搅拌。确保保温砂浆的水灰比例。
2)保温砂浆应随配随用,加水搅拌后的砂浆常规应在2-3小时内(视气温情况)用完,禁止次日或干固后再次搅拌二次使用,以免影响质量效果。
3)门窗边框与墙体间缝隙应用保温砂浆分层填塞密实。保温面层到窗框内侧的距离应一致。 4)保温砂浆施工期间及施工后24小时内避免水淋,防止保温层被水冲掉,影晌质量;在夏季避免阳光暴晒。
5)保温砂浆施工后需持续养护不少于24小时。
6)由于保温砂浆在搬运过程中可能会造成一定的分层,因此若对保温砂浆进行抽样检验时,应该对单一包装的保温砂浆进行充分混合均匀的工作,之后方可抽样进行测试。
3、抗裂防护层施工:
(1)待保温砂浆层固化干燥后(用手按不动,一般不少于5天),用抹子在保温砂浆层上抹3~4mm厚抗裂砂浆。施工期间,如气温在30~35℃左右时,抹抗裂砂浆前2-3小时,应先在保温砂浆层表面喷水湿润。
(2)应先抹抗裂砂浆再铺贴玻璃纤维网布,禁止将耐碱玻纤网布直接铺在保温层面上用砂浆涂布粘结;应在刚抹好的抗裂砂浆上用抹子压入裁好的玻纤网布。玻璃纤维网布应预先裁好,施工时应由两人配合作业,将耐碱玻纤网布竖向张开拉展紧贴抗裂砂浆,用抹子搓压,使其全部埋入砂浆层中;玻纤网布铺贴要平整,无褶皱,可隐约见网布,不得有干贴现象,粘贴饱满度应达到100%,局部不饱满处应随即补抹第二遍抗裂砂浆找平并压实。接茬处的耐碱玻纤网布茬搭接宽度应不小于100mm;阴、阳角处的网布搭接不应小于50mm,阴、阳角处布网前宜先将网布折成直角再铺贴。两层搭接玻纤网布之间要布满抗裂砂浆,严禁干茬搭接。
(3)在门、窗洞口等的边角处应以45度方向提前用抗裂砂浆增贴一道200×400的耐碱玻纤网布(见下图)。

(4)抗裂防护层施工完后,应及时检查平整度、垂直度及阴阳角方正,不符合要求的应用抗裂砂浆进行修补。
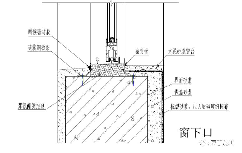
三、窗口及平面转角节点构造附图
窗口、平面转角节点构造做法见附图1~附图3


附图1:窗上口、窗下口节点构造

附图2:窗侧口节点构造

附图3:阴角、阳角节点构造
四、施工质量要求
1、界面砂浆与基层墙体之间必须粘结牢固,不脱层、无起皮、掉粉等现象。
2、抗裂砂浆表面光滑、洁净,接茬平整无明显抹纹。
3、门窗框与墙体间缝隙填塞密实,表面平整。
4、保温层应垂直、平整、阴阳角方正、顺直,平整度和垂直度偏差应不大于4mm; 5、当施工质量不符合要求时应及时进行修补处理。
五、成品保护
1、材料运至施工现场应做好堆放和防雨防潮工作,材料顶部要用防雨布遮盖到位,底部应架空或垫高,以避免材料结块而不能使用。
2、保温层施工应防风、防雨、防冻、防施工污染;保温层完成后严禁在墙体处近距离高温作业。
3、保温砂浆在凝结前应防止快干、水冲、撞击、挤压、振动和阳光直晒。
4、各构造层施工时和施工后禁止水冲浸泡,施工时不得撞击墙面和门窗框。对碰撞损坏的墙面及门窗框要及时修复。
5、保温层完工后要妥善保护、不得玷污、磕碰、损坏。搬运物品或移动脚手架时防止撞击墙面;严禁踩踏窗口。
6、其他工程作业时不得污染或损坏墙面。
温馨提示:如你想咨询建筑施工、装修装修等问题,请添加微信公众号豆丁施工,这里都是专业人士。