现代简约风格的居室重视个性和创造性的表现,即不主张追求高档豪华,而着力表现区别于其他住宅的东西。住宅小空间多功能是现代室内设计的重要特征。与主人兴趣爱好相关联的功能空间包括家庭视听中心、迷你酒吧、健身角、家庭电脑工作室等。接下来就和沈阳装一网小编看看这套80平米的现代风格装修吧~
装修面积:80.77平米
装修风格:现代简约
装修预算:7万

沈阳万锦香樟树-80平米二居室-现代简约风格-玄关装修效果图

沈阳万锦香樟树-80平米二居室-现代简约风格-客厅装修效果图

沈阳万锦香樟树-80平米二居室-现代简约风格-客厅装修效果图

沈阳万锦香樟树-80平米二居室-现代简约风格-客厅装修效果图

沈阳万锦香樟树-80平米二居室-现代简约风格-客厅装修效果图

沈阳万锦香樟树-80平米二居室-现代简约风格-餐厅装修效果图

沈阳万锦香樟树-80平米二居室-现代简约风格-书房装修效果图

沈阳万锦香樟树-80平米二居室-现代简约风格-卧室装修效果图

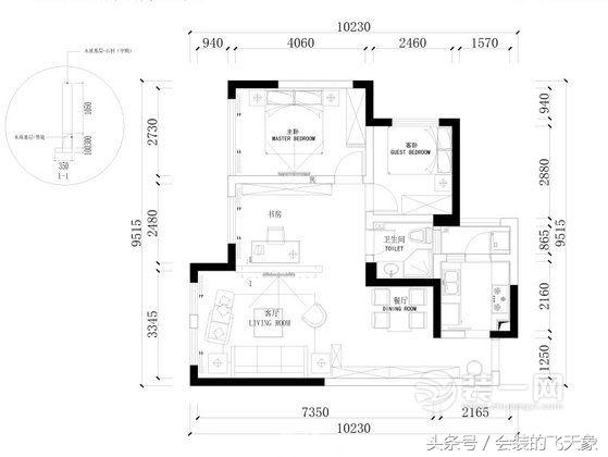
沈阳万锦香樟树-80平米二居室-现代简约风格-平面布置图
这就是沈阳装一网小编分享给大家的香樟树小区的80平米二居室装修案例,现代简约风格的装修既有质感还很舒服~你们一定会喜欢的~
PS:跑装修市场太麻烦,何不让小编来推荐!
装一网免费推荐3家装修公司上门量房、做预算、出方案,全程免费哦!
10秒获得装修报价,请复制下面链接!
电脑端:http://sy.zxdyw.com/zxbj/?utm_source=TTpcdanwenjing
手机端:http://sy.zxdyw.com/reviews/zb/bj.html?utm_source=TTpdanwenjing
手机用户可直接点击下面图片【10秒在线获取装修报价】哦
精选案例阅读:
沈阳中海和平之门112平简约装修,卫生间瓷砖挺美,清新惬意
沈阳碧桂园银河城94平简美装修适合大部分家庭 巧克力色背景墙蛮好看
253平米四室装修半包20万,超爱衣帽间设计,沈阳首创棋盘山1号中式风格装修