目 录
1、编制依据 1
2、工程概况 1
2.1设计概况 1
2.2脚手架工程概况 2
2.3脚手架工程施工重点、难点、特点 2
2.4脚手架选型原则 2
2.5确定脚手架选型 2
3、施工准备 2
3.1技术准备 3
3.2人员准备 3
3.3材料准备 3
4、施工安排 4
5、施工工艺 4
5.1落地脚手架设计参数 4
5.2脚手架搭设范围 5
5.3脚手架基础概况 7
5.4落地脚手架搭设工艺 10
5.5搭设构造要求 11
5.6脚手架的检查、验收 19
5.7脚手架拆除 20
6.安全保证措施 20
6.1特种作业人员及安全生产管理人员的配备要求 20
6.2各项质量、安全技术措施 20
6.3季节性施工安全技术措施 21
6.4施工过程中的监测监控技术措施 22
7.脚手架施工应急预案 24
7.1应急预案目的 24
7.2适用范围 24
7.3应急救援组织机构与职责 24
7.4施工现场应急处理设备和设施 25
7.5突发事件应急响应 26
7.6项目事故应急救援流程 28
7.7应急准备和响应相关电话 28
7.8应急准备和响应线路图 29
7.9应急救援物资 29
8.脚手架的计算 30
1、编制依据
表1-1
|
编号 |
依据类别 |
依据名称 |
版本 |
备注 |
|
1 |
相关文件要求 |
xxxx工程施工组织设计 |
2014年10月15日 |
|
|
2 |
xxxx工程施工总承包合同 |
2014年08月05日 |
||
|
3 |
建设工程安全生产管理条例 |
国务院第393号令 |
||
|
4 |
危险性较大分部分项工程安全管理规定 |
住建部37号令 |
||
|
5 |
住房城乡建设部办公厅关于实施《危险性较大的分部分项工程安全管理规定》有关问题的通知 |
建办质〔2018〕 31号 |
||
|
6 |
关于加强房屋建筑和市政基础设施工程施工技术管理工作的通知 |
京建法〔2018〕 22号 |
||
|
7 |
中建一局集团施工现场标准化图册 |
2018.12 |
||
|
8 |
中建一局集团第五建筑有限公司标准化管理手册 |
2017 |
||
|
9 |
中建一局集团第五建筑有限公司危险性较大分部分项工程施工管理规定 |
建一五技字[2018]363号 |
||
|
10 |
相关图纸 |
工程施工图纸 |
2008年09月10日 |
|
|
11 |
图纸会审、设计变更 |
2009年03月30日 |
||
|
12 |
相关规范、规程、标准 |
钢管脚手架扣件 |
GB15831-2006 |
国家 |
|
13 |
建筑施工脚手架安全技术统一标准 |
GB51210-2016 |
||
|
14 |
建筑施工扣件式钢管脚手架安全技术规范 |
JGJ130-2011 |
行业 |
|
|
15 |
建筑施工安全检查标准 |
JGJ59-2011 |
||
|
16 |
建筑施工高处作业安全技术规范 |
JGJ80-2016 |
||
|
17 |
钢管脚手架、模板支架安全选用技术规程 |
DB11/T583-2015 |
||
|
18 |
北京市建设工程施工安全操作规程 |
DBJ01-62-2002 |
地方 |
|
|
19 |
建设工程施工现场安全防护、场容卫生及消防保卫标准 |
DB11/945-2012 |
2、工程概况
2.1设计概况
本工程为xxxx项目,主要是京东方科技公司的科研用楼。工程位于朝阳区酒仙桥路10号院内东南侧B38地块,北、东、西邻园区道路,南邻酒仙桥中路,建筑总用地面积5210.2m2,总建筑面积14850m2,建筑高度38.85m,其中,地上八层:10550m2,地下两层:4300m2,属二类高层建筑。
表2-1
|
结构形式 |
钢筋混凝土框架剪力墙结构 |
绝对标高 |
±0.00=34.150m |
||||
|
建筑高度 |
36.45m |
层数 |
地上8层;地下2层 |
||||
|
层高 |
地下二层:3.6m;地下一层:6.4m;首层:5.5m;二层~八层:4.2m;机房层:3.9m |
||||||
|
地基基础 |
筏板基础 |
||||||
|
基底标高 |
基础底板顶面标高-10.300m,板厚500mm |
||||||
|
混 凝 土 强 度 等 级 |
地下 部分 |
垫层 |
C15 |
基础 |
C35 |
||
|
墙体 |
中央核心筒 |
C45 |
柱 |
独立柱 |
C40 |
||
|
其余墙体 |
C30 |
与墙体框连柱 |
同墙体 |
||||
|
梁 |
C30 |
板 |
C30 |
||||
|
设备基础 |
C30 |
||||||
|
一层~三层 |
墙体 |
C45 |
柱 |
C40 |
|||
|
梁 |
C30 |
板 |
C30 |
||||
|
四层 |
墙体 |
C40 |
柱 |
C35 |
|||
|
梁 |
C30 |
板 |
C30 |
||||
|
五层 |
墙体 |
C35 |
柱 |
C35 |
|||
|
梁 |
C30 |
板 |
C30 |
||||
|
六层~顶层 |
墙体 |
C30 |
柱 |
C30 |
|||
|
梁 |
C30 |
板 |
C30 |
||||
2.2脚手架工程概况
为满足主体结构施工要求,本工程地上脚手架采用落地双排脚手架,为结构施工及结构外围二次砌筑施工提供工作面和防护面。
拟定搭设高度为38m,施工荷载3KN/m2,立杆纵距1.5m,排距1.05m,步距1.5m,小横杆间距0.75m,连墙件设置采用钢管抱柱与地锚拉结相结合。
2.3脚手架工程施工重点、难点、特点
本工程工期紧张,应选择最为经济合理的架体型式,为工期提供保障。
2.4脚手架选型原则
脚手架的结构设计应做到结构安全可靠,造价经济合理。在规定的条件下和规定的使用期限内,能够充分满足预期的安全性和耐久性。选用材料时,力求做到常见通用,可周转利用,便于保养维修。结构选型时,力求做到结构合理、受力明确,搭拆方便,便于检查验收。
2.5确定脚手架选型
为满足主体结构施工要求,本工程地上脚手架采用落地双排脚手架。
脚手架选型概况统计表 表2-2
|
1层-8层 |
形式 |
搭设部位 |
使用楼层 |
搭设 高度 |
卸荷部位 |
基础情况 |
|
落地架 |
结构四周 |
F1-F8 (-0.5m—34.8m) |
38m |
五层结构板 |
地下一层 结构板 |
具体布置详见附图5.1。
3、施工准备
3.1技术准备
技术部认真熟悉图纸及结合现场进度等情况后进行施工方案编制,务必做到方案切实可行有效。
逐级进行交底,项目总工对项目管理人员和施工队伍主要管理人员做方案交底。专业工长以书面及会议形式向作业人员进行技术交底(双方安全生产管理人员签字),技术交底要有针对性、可操作性,针对关键部位和质量控制点,提出具体措施和要求。
3.2人员准备
3.2.1总包单位管理人员的配备及职责
|
序号 |
姓 名 |
项目职务 |
岗位职责 |
|
1 |
项目经理 |
对工程的质量、进度、安全、文明施工负全面领导责任,负责组织危大工程验收。建立健全本项目的各项管理制度。完善内部基础管理,指导下级工作,奖优罚劣。 |
|
|
2 |
项目总工 |
组织专项方案的编制,负责方案的审核,组织危大方案论证,对现场管理人员和劳务单位项目经理、技术负责人及班组骨干人员进行方案交底,参加危大方案的实施验收,对不合格项,制定纠正预防措施。 |
|
|
3 |
项目 副经理 |
负责工程总体施工安排,进度控制,现场总体施工组织协调。 |
|
|
4 |
安全总监 |
对工程施工全过程的安全、文明施工进行监督检查、核对各项安全管理制度及施工方案的执行情况,对作业人员进行安全教育,施工过程中进行旁站或过程巡检,对存在重大安全隐患的情况,有权下令停工整改。 |
|
|
5 |
质量总监 |
认真贯彻执行国家工程质量验收规范、政策、法令、法规、行业(地方)标准等文件精神,对工程质量负监督检查责任;组织隐、预检和分项工程验收,对工程的每一分项分部工程进行质量检查和评定;负责对进场材料设备的检查、检验工作。作好特殊过程、关键过程以及分部分项工程的状态标识;负责不合格品的控制。 |
|
|
6 |
技术员 |
编制工程施工方案,进行方案交底,对施工现场所出现的问题提出技术处理措施。 |
|
|
7 |
|||
|
8 |
工长 |
负责专项施工方案的具体实施,对人员、材料、机械设备进行统筹安排,实施前对工人进行安全和技术交底,实施过程中加强过程监督,安装完毕要按照施工规范和方案要求进行验收,同时做好预检记录。 |
|
|
9 |
|||
|
10 |
资料员 |
负责收集整理施工资料。 |
|
|
11 |
试验员 |
负责项目试验相关工作。 |
|
|
12 |
材料员 |
负责本项目物资部管理工作,制定本项目物资管理办法,建立健全物资采购供应管理体系和质量控制管理体系,保证供应商具备必要资质,所供材料的尺寸尺寸符合方案要求,对经检验证明不合格材料,应及时组织退场。负责组织监控模架工程中涉及到的物资质量,指导、检查、监督、评价现场物资管理,定期评估生产、供应厂商供应工作。负责审核和汇总模架工程主要物资需用量,制定物资采购供应方案和计划,审定合格厂商,统筹协调全线物资的采购供应。 |
|
|
13 |
安全员 |
监督实施安全技术措施和安全技术交底情况。认真做好内部专业队和劳务队人员上岗教育,以提高安全技术素质,增强自身保护能力。对所有进场人员进行安全意识教育,建立健全安全管理制度。督促与检查危险物品的安全管理和使用。认真做好安全台账资料记录和归档。 对特种作业人员持证上岗情况进行检查,定期对防护、外架、临电、机械进行安全检查,对发现的问题下发整改通知单并限期整改。 |
|
|
14 |
|||
|
15 |
质检员 |
认真贯彻执行国家工程质量验收规范、政策、法令、法规、行业(地方)标准等文件精神,对工程质量负监督检查责任;组织隐、预检和分项工程验收,对工程的每一分项分部工程进行质量检查和评定;负责对进场材料设备的检查、检验工作。作好特殊过程、关键过程以及分部分项工程的状态标识;负责不合格品的控制。 |
3.2.2分包单位管理人员的配备及职责
操作人员基本条件为工作认真负责,按上岗要求的技术业务理论考核和实际操作技能考核取得《特种作业人员操作证》,操作人员必须持证上岗,严禁无证操作。
表3-1
|
序号 |
工种 |
人数 |
备注 |
|
|
1 |
架子工 |
20 |
搭设阶段 |
负责脚手架搭设,悬挂安全网,铺设跳板。 |
|
2 |
5 |
维护阶段 |
负责脚手架的日常围护,配合外装做好外脚手架的修改,及时清理外脚手架上垃圾及杂物。 |
|
|
3 |
15 |
拆除阶段 |
拆除脚手架,将所有材料运至指定堆场,清理脚手架拆除范围内的所有垃圾及杂物。 |
|
|
4 |
安全员 |
2 |
负责搭设、使用及拆除过程中的安全管理 |
|
|
5 |
配合人员 |
2 |
负责协助塔吊及操作人员对材料的运输工作 |
|
3.3材料准备
3.3.1钢管
钢管采用外径48.3mm,壁厚3.6mm的管材,钢管表面应平直光滑,不应有裂缝、结疤、分层、错位、硬弯、毛刺、压痕和深的划道。进场钢管应有产品质量合格证,钢管上严禁打孔并必须涂有防锈漆。本工程所使用的钢管在进场第一次使用前,对钢管、扣件及紧固件进行外观检查,并抽取扣件样本进行力学性能和扭矩指标复验,不合格的扣件不得使用。
3.3.2扣件
扣件为可锻压铸扣件,有直角扣件、旋转扣件、对接扣件,其材质应符合现行国家标准《钢管脚手架扣件》(GB15831-2006)的规定,并且要有生产许可证、法定检测单位的测试报告和产品质量合格证,不得使用严重锈蚀、有裂缝、变形的扣件,出现滑丝的螺栓必须更换。扣件要进行防锈处理。扣件应经过65N·m扭力距试验,各部位不应有裂纹。
3.3.3脚手板
脚手板采用4000×250×50mm尺寸的标准木跳板,木脚手板上不得有腐朽、裂缝、斜纹。其材质应符合现行国家标准《木结构设计规范》(GB50005-2003)二级材质的规定。木脚手板使用前为防止破裂损坏,在距跳板两端8cm处用8#铅丝紧箍两道并钉固。
3.3.4多层板
采用15mm多层板外围护防护,必须使用正规厂家的产品。
3.3.5安全网
安全网采用2000目密目式绿色安全网,安全网在出厂前,必须有国家指定的监督检测部门批量验证和检验合格证,已使用过的安全网必须经过检查和试验合格后方可使用,超过使用期限的安全网严禁使用。安全网在储运中,必须通风、遮光、隔热,同时要避免化学物品的侵蚀,搬运时禁止使用钩子。
3.4现场准备
现场具备脚手架搭设条件,妨碍脚手架搭设的建筑材料、建筑垃圾等均已清理完毕。落地脚手架基础强度满足设计要求,现场脚手架钢管等材料堆放场地满足施工需求,留置合理。
4、施工安排
表4-1
|
搭设部位 |
计划搭设时间 |
计划拆除时间 |
使用天数 |
|
1层-6层 |
2014年12月10日 |
2015年4月25日 |
137 |
5、施工工艺
5.1落地脚手架设计参数
表5-1
|
层数 |
搭设高度 H(m) |
立杆纵距 la(m) |
立杆横距 lb(m) |
步距 h(m) |
小横杆间距 lc(m) |
|
F1 ~ F8 |
38m (特殊部位:设备吊装孔及泄爆口位置44.5m;人防室外出口顶板34m;汽车坡道:38~41.5m) |
1.5 |
1.05 |
1.5 (外侧步距0.75) |
0.75 |
|
施工荷载标准值 KN/m2 |
连墙件 设置 |
连墙件 间距 |
内立杆离结构距离a(m) |
脚手板 铺设层数 |
|
|
3 |
抱柱+地锚 |
两步三跨 |
0.25 |
2 |
5.2脚手架搭设范围
主体结构四周外边缘均搭设双排落地脚手架体系,其中1-2/E轴泄爆口位置及2/D-C轴设备吊装孔位置脚手架落在地下二层顶板上,8/C-D轴脚手架落在人防出入口顶板上,3-5/E-F轴脚手架落在地下一层汽车坡道底板上,5-9/E-F轴脚手架落在地下一层汽车坡道顶板上,其余部分脚手架落在地下一层顶板上,搭设时脚手架立杆底部铺设脚手板,结构混凝土强度达到70%。

5.3脚手架基础概况
脚手架基础情况统计表 表5-2
|
部位 |
基础结构情况 |
承载力(KN/m2) |
||
|
板厚 (mm) |
混凝土强度 |
配筋 |
||
|
地下一层顶板 |
250 |
C30 |
板下部配筋为 12@200双向;上部为 12@200双向;部分支座处负筋 14@200、 12@200。 |
7 |
|
地下二层顶板 (1-2/E-F轴、1-2/D-C轴) |
250 |
C30P8 |
板下部配筋为 14@200双向;上部为 14@200双向;部分支座处负筋 10@400、 16@200。 |
|
|
人防室外出口顶板 (8-9/C-D轴) |
120 |
C30 |
板配筋为双层 10@200双向;支座处负筋 10@400。 |
|
|
车道底板 (3-5/E-F轴) |
180 |
C30 |
板下部配筋为 10@200、12@150;上部为 10@200、12@200; |
|
|
车道顶板 (5-9/E-F轴) |
400 |
C30P8 |
板下部配筋为 12@200、16@200、18@200;上部为 12@200、14@200、18@200;部分支座处负筋 18@200。 |
|
注:架体允许作业层活荷载为3KN/m2,施工用材料严禁集中堆放在架体上。架体下部楼层对应位置应采取回顶措施,将力传至基础底板,支撑架体不得在地上双排脚手架拆除前拆除。


图5-3 脚手架搭设剖面示意图

图5-4 脚手架搭设立面示意图
5.4落地脚手架搭设工艺
5.4.1落地脚手架搭设步骤
准备工作→按房屋的形状放线→铺设垫板→放置纵向扫地杆→逐杆树立立杆并与扫地杆扣紧→安装第一步大横杆并与各立杆扣紧→安第一步小横杆→连墙杆→安装第二步大横杆→安装第二步小横杆→加设临时斜撑,杆上端与第二步大横杆扣紧→剪刀撑搭设→铺脚手板→绑扎防护栏杆及挡脚板搭设→张拉安全网→逐步上接并绑扎剪刀撑→架体验收。
5.4.2落地脚手架搭设要求
1、平面布置:立杆纵向间距1.5mm,横向间距1.05mm,内排立杆距离建筑物的距离为300mm。立杆与大横杆必须用直角扣件扣紧,不得隔步设置和遗漏,且立杆的直接头应相互错开0.5个节长,其接头距大横杆的距离不大于步距的1/3。
2、立面布置:大横杆步距1.5m,上下横杆的接长位置错开布置,错开距离不小于纵距的1/3,剪刀撑要求满设,并沿架高连续布置,斜杆与立杆接触部位均用旋转扣件扣紧,其与水平杆的夹角在45°~60°之间,剪刀撑的节点应在同一水平和垂直线上,其接长必须用搭接,搭接长度不小于1.0m,且不少于三个扣件,除在两头与立杆和大横杆连接外,中间还增加2~4个节点。立杆和大横杆交点处必须设小横杆。
3、脚手架卸荷措施
外双排架搭设至五层时,在五层顶板利用三角钢管架进行卸荷,设置于五层架体与梁板地锚拉结部位,间距同连墙件间距(2-3/6-8轴间间距3.9m、4.0m;3-6轴间间距3.85m;C-D轴间间距3.7m;B-C/D-E轴间间距3.5m。详见5-2脚手架搭设平面布置图),搭设横向拉结杆和斜杆对双排架进行卸荷处理,水平方向加设拉结杆,与双排架体立杆连结。

图5-5 双排脚手架卸荷示意图
5.5搭设构造要求
5.5.1搭设高度
脚手架必须配合施工进度搭设,一次搭设高度不超过相邻连墙件以上二步。
5.5.2立杆
1)立杆纵距(中距)为1.5m,横距(中距)为1.05m,靠近建筑物的立杆距建筑物外挑板外皮250mm。
2)立杆接长各步接头除顶步外必须采用对接扣件连接。两根相邻立杆的接头位置应错开,不应设置在同步内,同步内隔一个立杆的两个相隔接头在高度方向错开的距离不小于0.5m。各接头中心至主节点的距离不大于步距的1/3,立杆与大横杆必须用直角扣件扣紧,不得隔步设置或遗漏。
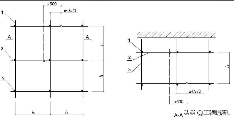
3)每根立杆底部设置脚手板垫板,立杆整个架高的垂直偏差不大于架高1/200。脚手板必须设置纵向、横向扫地杆。纵向扫地杆应采用直角扣件固定在距底座上皮不大于200mm处的立杆上。横向扫地杆应采用直角扣件固定在紧靠纵向扫地杆下方的立杆上。

图5-6 纵横扫地杆的构造图(1-横向扫地杆;2-纵向扫地杆)
4)脚手架底层步距不应大于1.5m。
5)脚手架立杆当立杆采用搭接接长时,搭接长度不应小于 1m ,并应采用不少于2个旋转扣件固定。端部扣件盖板的边缘至杆端距离不应小于100mm。
6)脚手架立杆顶端栏杆高出女儿墙上端1.2m。
5.5.3纵向水平杆(大横杆)
1)大横杆间距(步距)为1.5m,设置在立杆内侧,其长度不小于3跨。
2)横杆的接长采用对接扣件连接,对接扣件应交错布置,两根相邻纵向水平杆的接头不宜设置在同步或同跨内,不同步或不同跨两个相邻接头在水平方向错开的距离不应小于500mm。各接头中心至最近主节点的距离不宜大于纵距的1/3。同一排大横杆的水平偏差不大于该片脚手架总长度的1/250,且不大于50mm。

图5-7 水平杆接头留设位置示意图
3)如果采用搭接连接,搭接长度不应小于1m,应等间距设置3个旋转扣件固定;端部扣件盖板边缘至搭接纵向水平杆杆端的距离不应小于 100mm。
4)纵向水平杆应作为纵向水平杆应作为横向水平杆的支座,用直角扣件固定在立杆上。
5.5.4横向水平杆(小横杆)
1)主节点处必须设置一根横向水平杆,用直角扣件扣接且严禁拆除。主节点处两个直角扣件的中心距不大于150mm。
2)小横杆靠结构一端的外伸长度不应大于300mm。靠墙一端至墙装饰面距离不大于100mm。
3)小横杆要贴近立杆布置,间距为0.75m,搭于大横杆之上并用直角扣件扣紧。在任何情况下,均不得拆除作为基本构架结构杆件的小横杆。作业层上非主节点处的横向水平杆,宜根据支承脚手板的需要等间距设置,最大间距不应大于纵距的1/2。
5.5.5扫地杆设置
1)纵向扫地杆必须连续设置,钢管中心距地面不得大于200mm。
2)脚手架底部主节点处应设置横向扫地杆,其位置应在纵向扫地杆下方。
5.5.6剪刀撑与横向斜撑
本工程地上双排脚手架外侧全立面连续设置剪刀撑,四周形成封闭整体,各道剪刀撑由底至顶连续设置。
1)从架子两端转角处开始沿高度、水平方向连续设置,每道剪刀撑宽度不应小于4跨,且不应小于6m,斜杆与地面的倾角为45~60°。
2)剪刀撑斜杆的接长采用搭接,搭接长度不应小于1m,采用3个旋转扣件固定,端部扣件盖板的边缘至杆端距离不应小于100mm;剪刀撑斜杆应用旋转扣件固定在与之相交的横向水平杆的伸出端或立杆上,旋转扣件中心线至主节点的距离不宜大于150mm。
3)横向斜撑在同一节间,由底至顶层呈之字形连续布置。开口架体的两端均设置横向斜撑。封闭架体除拐角应设置横向斜撑外,中间每隔6m设置一道。
4)剪刀撑应连续设置,横杆露出架体外立面长度100-150mm,每隔3层或10m设置一道200mm高警示带,固定于立杆外侧;
5)脚手架钢管表面涂刷黄色油漆,剪刀撑和警示带表面涂刷红白警示漆,架体内侧满挂绿色密目网;
6)脚手架外侧悬挂楼层标志牌。

图5-8脚手架外立面形象示意图
5.5.7连墙件
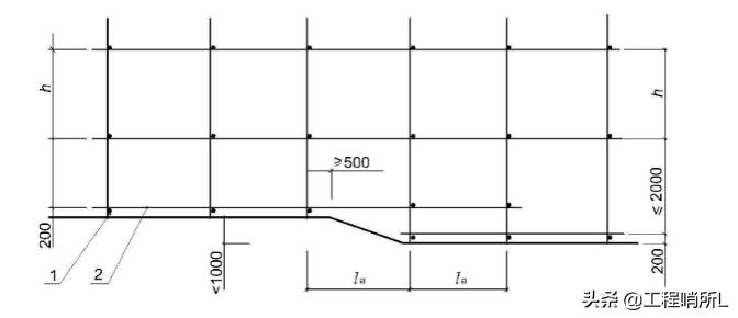
本工程脚手架搭设高度超过6m,需要采用刚性的连墙件拉结架体来保证架体的稳定性。根据连墙件的设置要求,并结合本工程的结构设计特点,连墙件采用加设柱箍与预埋拉环拉结相结合。采用遇柱即抱的方式设置,每层设置两道,在脚手架的转角处加密连墙杆件,连接点中心至主节点的距离不应大于300mm。水平方向间距3.5m~4m埋设预埋拉环((2-3/6-8轴间间距3.9m、4.0m;3-6轴间间距3.85m;C-D轴间间距3.7m;B-C/D-E轴间间距3.5m。详见5-2脚手架搭设平面布置图),埋设间距自地下一层顶板开始每层结构顶板上埋设双排环形拉环地锚,首排埋设在结构外边梁梁中,二排埋设在距边梁外侧1050mm处楼板上,架设横撑和斜撑与架体刚性拉结。

图5-9与框架柱拉结的连墙件大样图 图5-10转角连墙件加强做法示意图
2)在脚手架周边的端头(包括顶端)以及转角处,要加密连墙杆,施工中需要临时拆除连墙杆时,必须采取有效的补救措施并得到技术部和安全部的允许,以防止立杆失稳。
3)连墙件中的连墙杆呈水平布置,当不能水平设置时,与脚手架连接的一端应下斜连接,不应采用上斜连接。如下图所示:

图5-11与地锚相连的连墙件节点做法

图5-12梁板中预埋地锚大样图
当脚手架下部暂不能设置连墙件时搭设抛撑,抛撑应采用通长杆件与脚手架可靠连接,与地面的倾角应在45~60度之间。连接点中心至主节点的距离不应大于300mm,抛撑应在连墙件搭设后方可拆除。
5.5.8脚手板
1)作业层脚手架沿纵向满铺、铺稳,距墙面不大于100mm;脚手板之间以及脚手板与脚手架之间用4mm镀锌铁丝拧紧。
2)脚手板设置三根横向水平杆上。当脚手板长度小于2m,可采用两根横向水平杆支承,但应将脚手板两端与其可靠固定,严防倾翻。
3)脚手板对接平铺时,接头处必须设两根横向水平杆,脚手板外伸长应取130~150mm,两块脚手板外伸长度的和不应大于300mm。
4)脚手板搭接铺设时,接头必须支在横向水平杆上,搭接长度应大于200mm,其伸出长度水平杆的长度不应小于100mm。
5)作业层端部脚手板探头取150mm,其板长两端均应与支承杆可靠地固定。
6)脚手板作业层上下不能同时超过两层。
7)作业层脚手板应铺满、铺稳、铺实。

(a)脚手板对接 (b)脚手板搭接 图5-13脚手板对接、搭接构造图
5.5.9门洞
脚手架门洞宜采用上升斜杆、平行桁架结构形式,斜杆与地面的倾角α应在45°~60°之间。双排脚手架门洞处的空间桁架,除下弦平面外,其余5个平面内的图示节间设置一根斜腹杆;斜腹杆宜采用旋转扣件固定在与之相交的横向水平杆的伸出端上,旋转扣件中心线至主节点的距离不宜大于150mm。当斜腹杆在1跨内跨越2个步距时,宜在相交的纵向水平杆处,增设一根横向水平杆,将斜腹杆固定在其伸出端上;斜腹杆宜采用通长杆件,当必须接长使用时,宜采用对接扣件连接,也可以采用搭接。

图5-14通道门洞大样图
5.5.10安全防护
1)栏杆和挡脚板均应搭设在外立杆的内侧,栏杆设置高度0.75m;挡脚板高度不少于180mm。
2)脚手架外立杆内侧满挂密目安全网,用4mm镀锌铁丝绑扎牢固,不留缝隙,四周应交圈。水平网(挂1层密目网和1层大眼网)每隔一层设置一道(即:一层顶、三层顶、五层顶、七层顶设置)。
3)通道出入口处,搭设长6m宽4.5m的护头棚,上架空铺设双层50mm厚木跳板,两侧用密目网封闭严密,非出入口和通道两侧必须搭设围栏并用安全网封严,严禁穿行。
在B-C/8-9轴间设置施工上下马道及安全通道口,方便施工人员上下施工作业面。斜道采用之字型,立杆纵距1500mm,排距1500mm,步距1800mm。宽1.5米,坡度1:3。拐弯处应设置平台,宽度不小于斜道宽。斜道两侧及平台外围和端部均应设置栏杆及挡脚板(180mm高)。脚手板上每隔250mm设置一个防滑木条,木条为20~30mm宽。

图5-15 马道架体搭设大样图

图5-16 安全通道立面及剖面详图
4)脚手架在作业层、首层并隔层设置水平兜网。首层兜网距墙面不大于200mm。
5.5.11防雷接地
本工程脚手架接地、避雷措施执行《施工现场临时用电安全技术规范》(JGJ 46)标准。避雷针与大横杆连通、接地线与整栋建筑物楼层内避雷系统连成一体的措施。
外科住院楼共设置6根避雷针,避雷针采用φ16镀锌钢筋制作,长度为1m,设置在外架四角脚手架立杆上,并将所有最小层的大横杆全部连通,形成避雷网络。引下线采用φ12圆钢,将立杆与整幢建筑物楼层内避雷系统(即框架柱主筋)连成一体,接触处采用可靠焊接,焊完后再测定电阻,要求冲击电阻不大于4Ω。
接地线与建筑物楼层内避雷系统的设置按脚手架的长度不超过50米设1个,位置不得选用人员经常出入的地方,以避免跨步电的危险,防止接地线遭机械伤害。两者的连接采用焊接,焊接长度要大于2倍的扁钢长度。
5.6脚手架的检查、验收
5.6.1验收内容
1、脚手架用钢管必须有产品合格证及检测报告。
(1)表面应平直光滑、不应有裂纹、分层、压痕、划道和硬弯。
(2)外径允许偏差为±0.5mm,壁厚允许偏差为±0.36mm。
(3)端面应平整,偏差不超过1.7mm。
(4)钢管外表面锈蚀深度允许偏差为小于等于0.18mm。
2、扣件必须有产品合格证及检测报告
(1)扣件与钢管的贴合面必须严格整形,应保证与钢管扣紧时接触良好。
(2)扣件活动部位应能灵活转动,旋转扣件的两旋转面间隙应小于1mm。
(3)当扣件夹紧钢管时,开口处的最小距离应不小于5mm。
(4)扣件表面应进行防锈处理。
3、木脚手板应采用杉木或松木制作,厚度不小于5cm,宽23~25cm,两端应设直径为4mm的镀锌钢丝箍两道,脚手板不得使用腐朽或有裂缝、斜纹及大横透节的板材制作。
4、安全网必须采用中建一局指定产品,并要有产品合格证及检测报告,安全网宽度不得小于3米,长度不得大于6米,网眼不得大于10cm。
5.6.2验收标准
脚手架检查与验收标准见下表:
表5-3
|
序号 |
项目 |
允许偏差 |
检查方法 |
|
|
1 |
立杆垂直度 |
±100 |
吊线 |
|
|
2 |
间距 |
步距偏差 |
±20 |
钢卷尺 |
|
柱距偏差 |
±50 |
|||
|
排距偏差 |
±20 |
|||
|
3 |
大横杆高差 |
一根杆两端 |
±20 |
水平仪、水平尺 |
|
同跨内、外大横杆高差 |
±10 |
|||
|
4 |
扣件螺栓拧紧扭力矩 |
40~65N·m |
扭力扳手 |
|
|
5 |
剪刀撑与地面倾角 |
45°~60° |
角尺 |
|
|
6 |
脚手板外伸长度 |
对接 |
130≤a≤150 |
卷尺 |
|
搭接 |
a≥100 |
卷尺 |
||
5.6.3验收程序及人员
项目负责人组织验收,验收人员应包括:建设单位项目负责人或技术负责人;施工单位项目负责人或授权委派的技术人员、项目技术负责人、安全负责人、质量负责人、专项方案编制人员、项目专职安全管理人员、工长;监理单位的总监和专业监理工程师。
验收合格,经施工单位项目技术负责人及项目总监理工程师签字后,方可进入后续工序的施工,并在验收部位明显位置设置验收标识牌,公示验收时间、具体责任人员,并在危险区域设置安全警示标志。
5.7脚手架拆除
5.7.1脚手架拆除前应由单位工程负责人召集有关人员对工程进行全面检查与签字确认建筑物已施工完毕,确已不需要脚手架时方可拆除。
5.7.2脚手架拆除前先对架子工进行技术、安全交底,把脚手架上的存留材料、杂物等清理干净,并应设置警戒区,设专人负责警戒。
5.7.3脚手架拆除应按“由上而下,先横杆后立杆,先搭后拆,后搭先拆”的原则进行,具体拆除顺序:
安全网→护身栏→挡脚板→脚手板→剪刀撑→小横杆→大横杆→立杆→连柱杆
5.7.4脚手架拆除自上而下逐步拆除,一步一清,不得采用踏步式拆法,不准上下同时作业,拆除大横杆、剪刀撑时应先拆中间扣,然后托住中间,再解端头扣。
5.7.5连墙件必须随脚手架逐层拆除,严禁先将连墙件整层或数层拆除后再拆脚手架;分段拆除高差不应大于2步,如高差大于2步,应增设连墙件加固。
5.7.6拆除的各构配件严禁抛掷至地面。
6.安全保证措施
6.1特种作业人员及安全生产管理人员的配备要求
6.1.1脚手架搭拆人员必须符合国家有关法律、法规要求,并且具备专业工种操作上岗证。严禁无证人员操作。
6.1.2脚手架搭设及拆除前、层层落实安全技术交底,做到管理人员及架子工,人人清楚,个个明白。
6.1.3配备两名安全员负责搭设、使用及拆除过程中的安全管理。
6.2各项质量、安全技术措施
6.2.1工人在架上进行搭设作业时,作业面上必须满铺脚手板,并予以临时固定。
6.2.2不得单人进行装设较重杆配件和其它易造成失衡、脱手、碰撞、滑跌等不安全作业。
6.2.3在搭设中不得随意改变构架设计、减少杆配件设置。严禁拆除主节点处的纵横向水平杆、纵、横向扫地杆、连墙件。确有实际情况,需要对构架作调整和改变时,必须提交技术部协调有关人员解决。
6.2.4禁止在脚手架板上加垫器物或单块脚手板以增加操作高度。
6.2.5作业人员必须戴好安全帽,系好安全带,穿防滑鞋,不得带病或酒后作业,并遵照国家及北京市有关施工现场管理安全要求。
6.2.6脚手架搭设时,每日上班前,班长必须详细布置施工任务并及时检查现场安全状况,检查施工现场是否存在安全隐患,发现隐患及时整改。
6.2.7钢管、扣件及安全网的材质满足国家及北京市有关安全技术规范要求。(必须按公司要求使用局定点厂家生产的产品。)
6.2.8脚手架外立杆满挂绿色密目安全网,密目网绷拉平直,封闭严密,操作层及操作层下步架满兜水平安全网。
6.2.9作业层的荷载应符合设计要求(3KN/m2),不得超载,操作层上不得集中堆放材料,不得将缆风绳、施工材料等堆于外架上,不得将模板支架、混凝土泵管等固定在脚手架上,不得与梁板支撑架及其它架体有任何拉结。
6.2.10禁攀、爬上架,不得任意拆除脚手架的构件及连墙杆,确因拉结点影响施工时,必须通知安全监督部和技术协调部协商解决。
6.2.11严禁在脚手架基础及邻近处进行挖掘作业,在脚手架上进行电焊作业必须有防火措施及专人看火。
6.2.12专职架子工必须在每天班前仔细检查架子安全状况,一旦发现安全隐患要及时上报。项目部每周组织一次对架体的检查工作,专职架子工每周进行两次自查工作,及时对架体存在的隐患进行整改。
6.2.13外架搭设完毕,经验收后方可使用。
6.2.14拆除的安全措施
1)拆脚手架杆件,必须由2~3人协同操作,拆纵向水平杆时,应由站在中间的人向下传递,严禁向下抛掷。禁止单人进行拆除较重杆件等危险性的作业。
2)拆除作业区的周围及进出口处,必须派专人了望,严禁非作业人员进入危险区域,拆除大片架子应加临时围栏。作业区内西侧电线及其他树木有妨碍时,应事先与有关部门联系拆除、转移或防护。
3)拆除过程中,应指派1名责任心强、技术水平高的工人担任指挥和监护,并负责拆除撤料和监护操作人员的作业。
4)已拆下的材料必须及时,应先加临时固定措施后,再撤除。
6.3季节性施工安全技术措施
6.3.1六级及六级以上大风和雨、雾雪天必须停止外架上作业。雪后上架作业之前,必须清扫架上雪,作业时要采取防滑措施。雨后、大风后作业前对架体进行检查,确保安全后方可上人作业。设专人负责对外架进行定期维修及检查。
6.3.2雨天必须仔细检查外架底部是否积水,基础底部是否松动,是否下沉,立杆是否悬空,保证排水沟排水通畅。如发现外架基础塌陷等情况,立即上报工程部及安全监督部,采取有效措施处理,方可上架作业。
6.4施工过程中的监测监控技术措施
6.4.1脚手架的安全监测
1、监测监控项目
脚手架使用中,应定期检查下列项目:
(1)杆件的设置和连接,连墙件、支撑等的构造是否符合要求;
(2)扣件螺栓是否松动;
(3)高度在24m以上的脚手架,检查其立杆的沉降与垂直度的偏差是否超出规范要求;
(4)安全防护措施是否符合要求;
(5)是否超载。
(6)在监测期,当偏差超出预警限值时或发现安全问题时,应按照经过项目技术负责人审定签字或紧急情况下经过项目技术负责人确认的技术措施进行处理,并将技术措施报公司备案,重大问题,技术措施应报公司批准;
(7)对架体进行调整加固前,应设置警戒区域,禁止非架子施工人员进入警戒区;
(8)对架体进行调整加固作业,有专职安全人员、架子工班组长监护和安全撤出措施。
2、监测部位
架体沉降在架体大角(各转角处)、直线长度不应大于25m的架体底部设置监测点,相对主体结构进行观察;
架体垂直偏差在架体大角(各转角处)、直线长度不应大于25m的最顶部立杆设有纵横向水平杆处,设置监测点,相对主体结构进行观察。
监测点分别设置于F1层架体底部,F8层架体顶部,平面布置图详见各层架体平面布置图5-2。
3、监测频率
(1)基础完工后及脚手架搭设前;
(2)作业层上施加荷载前;
(3)每搭设完6~8m高度后;
(4)达到设计高度后;
(5)遇有六级大风与大雨后;
(6)停用超过一个月。
6.4.2脚手架的检查、维护
1、检查工字钢有无变形;
2、检查脚手架的整体和局部的垂直偏差,特别要关注脚手架的转角处和断口处的垂直度。如发现垂直度有异常现象,应及时加固和消除隐患。
3、各类扣件的涂油和紧固。检查扣件时先检查扣件的外观,而后将扣件上的螺栓逆时针方向松几牙螺纹,再涂油紧固螺栓至规定的力矩范围内。
4、检查脚手板有否松动、悬挑,还要检查四周是否用铁丝扎牢,如发现问题应及时纠正。
5、连墙件的检查,检查连墙件是否齐全和完好,有无松动、移动。
6、要对外包安全网、外挑安全网、安全隔离设施、外侧挡板、栏杆和接地防雷等安全设施进行检查,保证这些安全设施完整、牢固,能正常发挥安全作用。如果有损坏者要及时调换,如有松动者应及时紧固,如发现松动和开口要及时连通。
7、如脚手架有开口、断口和出入口,应对该部位进行重点检查,使这些部位始终符合安全规定。
8、检查脚手架的荷载情况,使其不超过设计荷载,如有超载应及时卸荷至设计荷载。还要检查脚手架上堆物是否处于安全位置和稳定状态,如发现有处于不安全位置和不稳定状态应及时纠正。此外还要逐日清理脚手板上的垃圾。
9、脚手架使用中必须经常检查,清除架子上的杂物,严禁在架子上堆积过多的施工材料,或多人挤在一起,以免架子发生超载,造成事故。
10、脚手架上施工材料应随用随运,施工荷载不得大于3KN/m2,使用机具、材料等尽量放在脚手架里侧,以减小倾覆力矩。
7.脚手架施工应急预案
7.1应急预案目的
为了预防或减少潜在的施工生产安全事故或紧急情况对施工生产安全造成的影响和对环境的影响,对可能出现的高处坠落、物体打击、高大脚手架倾覆、触电、火灾、进行预防和控制,保证人员和物品的安全,特制定此应急预案。
7.2适用范围
适用于在脚手架施工过程中,可能出现的生产安全事故或紧急情况的预防和处理。
7.3应急救援组织机构与职责
1、应急准备和响应领导小组
组 长:xxx
副组长:xxx、xxx、xxx、xxx
组 员:xxx、xxx、xxx、xxx、xxx、xxx、xxx、xxx、xxx、xxx、xxx、xxx
应急准备和响应领导小组办公室设在安全部,值班电话:xxxxxx。
2、应急救援领导小组职责
组长职责:
应急准备总策划,应急响应总指挥,确保人员到位、设施到位、资金到位。
副组长职责:
协助组长进行应急准备策划并组织实施,紧急情况发生时,按方案、预案各就各位进行现场指挥。
组员职责:
参加应急准备策划工作,并在实施过程中进行指挥、检查、记录等,紧急情况发生时,尽快各就各位组织相关人员进入响应程序,正确进行现场处置。组员按其岗位职能分工。
现场抢险组:xxx、xxx、xxx、xxx义务抢险小组 10 人
职 责:组织实施抢险行动,并及时报告抢险进展。寻找受害者并转移至安全地带。抢运现场物资,负责抢险后的现场恢复。
技术支持组:xxx、xxx、xxx
职 责:根据事故特点,及时向组长提供科学的技术方案,指导应急行动的正确实施。提出抢险、抢修的技术措施。对事故原因进行分析,提出补救措施,避免同类事故发生。
警戒保卫组:xxx
职 责:负责现场的警戒,设置事故现场警戒线,组织无关人员进入现场,保护抢险人员安全,维持现场秩序。负责现场车辆的疏通,引导抢险人员及车辆进入,保持道路通畅。
医疗救护组:xxx、xxx、xxx
职 责:负责现场伤员的救护工作,在外部救援机构到达前,对受害者进行必要的抢救。协助外部救援机构将受害者送至医疗机构。
后勤保障组:xxx、xxx
职 责:负责调集、提供抢险物资。保障人员必需的防护、救护及生活物资的供给。负责解决抢险人员的住宿。
通信联络组:xxx、xxx
职 责:负责消息的转达,确保与公司及外部相关机构的联系畅通。发生事故第一时间通知应急小组成员。
善后处理组:xxx、xxx
职 责:负责做好受害者家属的安抚工作。协调落实受害者住院费及怃恤金问题。
7.4施工现场应急处理设备和设施
1、急救箱
1)急救箱的配备
急救箱的配备应以简单和适用为原则,保证现场急救的基本需要,并可根据不同情况予以增减,定期检查补充,确保随时可供急救使用。
2)急救箱使用关注事项
(1)有专人保管,但不要上锁。
(2)定期更换超过消毒期的敷料和过期药品,每次急救后要及时补充。
(3)放置在合适的位置,使现场人员都知道。
2、其他应急设备和设施
由于在现场经常会出现一些不安全情况,甚至发生事故,或因采光和照明情况不好,在应急处理时就需配备应急照明,如可充电工作灯、电筒等设备。
由于现场有危险情况,在应急处理时就需有用于危险区域隔离的警戒带、各类安全禁止、警告、指令、提示标志牌。
7.5突发事件应急响应
7.5.1物体打击事故
7.5.1.1预防技术措施
(1)脚手架搭设、拆除作业时,指定专人指挥、监护,出现物体坠落险情,必须立即停止施工,将作业人员撤离作业现场,待险情排除后,方可作业。
(2)脚手架的规定合要求使用,严禁超重。外围防护安全网全封闭设置,防止物体遗落。
7.5.1.2应急救援措施
(1)施工项目在班组作业前必须要结合工作环境进行有针对性的安全技术交底。要求工人时刻保持安全防护意识。
(2)在脚手架安装施工危险区域地面上悬挂对口警示标志,设专人监护。任何人严禁进入平台安装区域施工作业。
(3)当平台安装过程中发生物体坠落,不要慌张,保持镇静,关注事态的发展情况、方向及受影响的位置。
(4)对伤员进行现场急救处理。
(5)立刻设危险区域,并设警示标志,设专人监护,保护事故现场。
(6)按规定上报有关主管部门请求救援。
7.5.2高空坠落事故
7.5.2.1预防技术措施
(1)所有高处作业人员应学习高处作业安全知识及安全操作规程,工人上岗前应依据有关规定接受专门的安全技术交底,并办好签字手续。特种高处作业人员应持证上岗。
(2)高处作业人员应经过体检,合格后方可上岗。对身体不适或上岗前喝过酒的工人不准上岗作业。施工现场项目部应为作业人员提供合格的安全帽、安全带
等必备的安全防护用具,作业人员应按规定正确佩戴和使用。
(3)高处作业人员佩戴的安全带使用前必须经过检查合格。安全带的系扣点应就高不就低,扣环应悬挂在腰部的上方,并要关注带子不能与锋利或毛刺的地方接触,以防摩擦割断。
7.5.2.2应急救援措施:
当发生高空坠落事故后,抢救的重点放在对休克、骨折和出血上进行处理。
(1)发生高处坠落事故,应马上组织抢救伤者,首先观察伤者的受伤情况、部位、伤害性质,如伤员发生休克,应先处理休克。遇呼吸、心跳停止者,应立即进行人工呼吸,胸外心脏挤压。处于休克状态的伤员要让其安静、保暖、平卧、少动,并将下肢抬高约20度左右,尽快送将台医院进行抢救治疗。
(2)出现颅脑损伤,必须维持呼吸道通畅。昏迷者应平卧,面部转向一侧,以防舌根下坠或分泌物、呕吐物吸入,发生喉阻塞。有骨折者,应初步固定后再搬运。遇有凹陷骨折、严重的颅底骨折及严重的脑损伤症状出现,创伤处用消毒的纱布或清洁布等覆盖伤口,用绷带或布条包扎后,及时送就近有条件的将台医院治疗。
(3)发现伤者手足骨折,不要盲目搬动伤者。应在骨折部位用夹板把受伤位置临时固定,使断端不再移位或剌伤肌肉,神经或血管。固定方法:以固定骨折处上下关节为原则,可就地取用木板等材料,在无材料的情况下,上肢可固定在身侧,下肢与腱侧下肢缚在一起。
(4)动用最快的交通工具或其他措施,及时把伤者送往邻近将台医院抢救,运送途中应尽量减少颠簸。同时,密切关注伤者的呼吸、脉搏、血压及伤口的情况。
7.6项目事故应急救援流程

7.7应急准备和响应相关电话
表7-1
|
序号 |
岗位 |
应急电话 |
备注 |
|
1 |
项目应急值班室电话 |
内部 |
|
|
2 |
公司应急电话 |
内部 |
|
|
3 |
应急救援小组组长 |
内部 |
|
|
4 |
应急救援小组副组长 |
内部 |
|
|
5 |
现场抢险组长 |
内部 |
|
|
6 |
技术支持组长 |
内部 |
|
|
7 |
警戒保卫组长 |
内部 |
|
|
8 |
医疗救护组长 |
内部 |
|
|
9 |
后勤保障组长 |
内部 |
|
|
10 |
通信联络组长 |
内部 |
|
|
11 |
善后处理组长 |
内部 |
|
|
12 |
北京朝阳区华信医院电话 |
外部 |
|
|
13 |
急救中心电话 |
外部 |
|
|
14 |
火警电话 |
外部 |
|
|
15 |
匪警电话 |
外部 |
|
|
16 |
自来水公司保修电话 |
外部 |
|
|
17 |
供电急修电话 |
外部 |
|
|
18 |
通信光缆急修电话 |
外部 |
|
|
19 |
燃气报修中心 |
外部 |
7.8应急准备和响应线路图

7.9应急救援物资
主要应急救援物资设备表 表7-2
|
序号 |
材料设备名称 |
单 位 |
数 量 |
存放位置 |
|
1 |
小 车 |
台 |
2 |
现场 |
|
2 |
灭 火 器 |
个 |
15 |
现场 |
|
3 |
药箱及药品 |
个/批 |
2 |
办公室 |
|
4 |
对 讲 机 |
部 |
5 |
现场 |
|
5 |
担 架 |
副 |
2 |
办公室 |
8.脚手架的计算
依据规范:
《建筑施工脚手架安全技术统一标准》GB51210-2016
《建筑施工扣件式钢管脚手架安全技术规范》JGJ130-2011
《建筑结构荷载规范》GB50009-2012
《钢结构设计规范》GB50017-2017
《建筑地基基础设计规范》GB50007-2011
计算参数:
钢管强度为205.0 N/mm2,钢管强度折减系数取1.00。
双排脚手架,搭设高度38.0米,立杆采用单立管。
立杆的纵距1.50米,立杆的横距1.05米,内排架距离结构0.25米,立杆的步距1.50米。
钢管类型为φ48×3.0,连墙件采用2步3跨,竖向间距3.00米,水平间距4.50米。
施工活荷载为3.0kN/m2,同时考虑2层施工。
脚手板采用木板,荷载为0.35kN/m2,按照铺设2层计算。
栏杆采用木板,荷载为0.17kN/m,安全网荷载取0.0100kN/m2。
脚手板下小横杆在大横杆上面,且主结点间增加一根小横杆。
基本风压0.30kN/m2,高度变化系数1.0000,体型系数0.6000。
地基承载力标准值7kN/m2,基础底面扩展面积0.250m2,地基承载力调整系数0.40。
钢管惯性矩计算采用 I=π(D4-d4)/64,抵抗距计算采用 W=π(D4-d4)/32D。
架体搭设高度38.0米计算:
一、小横杆的计算:
小横杆按照简支梁进行强度和挠度计算,小横杆在大横杆的上面。
按照小横杆上面的脚手板和活荷载作为均布荷载计算小横杆的最大弯矩和变形。
1.均布荷载值计算
小横杆的自重标准值 P1=0.038kN/m
脚手板的荷载标准值 P2=0.350×1.500/2=0.262kN/m
活荷载标准值 Q=3.000×1.500/2=2.250kN/m
荷载的计算值 q=1.2×0.038+1.2×0.262+1.4×2.250=3.511kN/m
小横杆计算简图
2.抗弯强度计算
最大弯矩考虑为简支梁均布荷载作用下的弯矩
计算公式如下:
M=3.511×1.0502/8=0.484kN.m
σ=0.484×106/4491.0=107.742N/mm2
小横杆的计算强度小于205.0N/mm2,满足要求!
3.挠度计算
最大挠度考虑为简支梁均布荷载作用下的挠度
计算公式如下:
荷载标准值 q=0.038+0.262+2.250=2.551kN/m
简支梁均布荷载作用下的最大挠度
V=5.0×2.551×1050.04/(384×2.06×105×107780.0)=1.818mm
小横杆的最大挠度小于1050.0/150与10mm,满足要求!
二、大横杆的计算:
大横杆按照三跨连续梁进行强度和挠度计算,小横杆在大横杆的上面。
用小横杆支座的最大反力计算值,在最不利荷载布置下计算大横杆的最大弯矩和变形。
1.荷载值计算
小横杆的自重标准值 P1=0.038×1.050=0.040kN
脚手板的荷载标准值 P2=0.350×1.050×1.500/2=0.276kN
活荷载标准值 Q=3.000×1.050×1.500/2=2.362kN
荷载的计算值 P=(1.2×0.040+1.2×0.276+1.4×2.362)/2=1.843kN
大横杆计算简图
2.抗弯强度计算
最大弯矩考虑为大横杆自重均布荷载与荷载的计算值最不利分配的弯矩和
均布荷载最大弯矩计算公式如下:
集中荷载最大弯矩计算公式如下:
M=0.08×(1.2×0.038)×1.5002+0.175×1.843×1.500=0.492kN.m
σ=0.492×106/4491.0=109.589N/mm2
大横杆的计算强度小于205.0N/mm2,满足要求!
3.挠度计算
最大挠度考虑为大横杆自重均布荷载与荷载的计算值最不利分配的挠度和
均布荷载最大挠度计算公式如下:
集中荷载最大挠度计算公式如下:
大横杆自重均布荷载引起的最大挠度
V1=0.677×0.038×1500.004/(100×2.060×105×107780.000)=0.059mm
集中荷载标准值 P=(0.040+0.276+2.362)/2=1.339kN
集中荷载标准值最不利分配引起的最大挠度
V1=1.146×1339.222×1500.003/(100×2.060×105×107780.000)=2.333mm
最大挠度和
V=V1+V2=2.392mm
大横杆的最大挠度小于1500.0/150与10mm,满足要求!
三、扣件抗滑力的计算:
纵向或横向水平杆与立杆连接时,扣件的抗滑承载力按照下式计算(规范5.2.5):
R ≤ Rc
其中 Rc —— 扣件抗滑承载力设计值,单扣件取8.0kN,双扣件取12.0kN;
R —— 纵向或横向水平杆传给立杆的竖向作用力设计值;
1.荷载值计算
横杆的自重标准值 P1=0.038×1.500=0.058kN
脚手板的荷载标准值 P2=0.350×1.050×1.500/2=0.276kN
活荷载标准值 Q=3.000×1.050×1.500/2=2.362kN
荷载的计算值 R=1.2×0.058+1.2×0.276+1.4×2.362=3.707kN
单扣件抗滑承载力的设计计算满足要求!
当直角扣件的拧紧力矩达40--65N.m时,试验表明:单扣件在12kN的荷载下会滑动,其抗滑承载力可取8.0kN;
双扣件在20kN的荷载下会滑动,其抗滑承载力可取12.0kN。
四、脚手架荷载标准值:
作用于脚手架的荷载包括静荷载、活荷载和风荷载。静荷载标准值包括以下内容:
(1)每米立杆承受的结构自重标准值(kN/m);本例为0.1196
NG1 = 0.120×38.000=4.544kN
(2)脚手板的自重标准值(kN/m2);本例采用木脚手板,标准值为0.350
NG2 = 0.350×5×1.500×(1.050+0.400)/2=1.903kN
(3)栏杆与挡脚手板自重标准值(kN/m);本例采用栏杆、木脚手板标挡板,准值为0.170
NG3 = 0.170×1.500×5=1.275kN
(4)吊挂的安全设施荷载,包括安全网(kN/m2);0.010
NG4 = 0.010×1.500×38.000=0.570kN
经计算得到,静荷载标准值 NG = NG1+NG2+NG3+NG4 = 8.292kN。
活荷载为施工荷载标准值产生的轴向力总和,内、外立杆按一纵距内施工荷载总和的1/2取值。
经计算得到,活荷载标准值 NQ = 3.000×2×1.500×1.050/2=4.725kN
风荷载标准值应按照以下公式计算
其中 W0 —— 基本风压(kN/m2), W0 = 0.300
Uz —— 风荷载高度变化系数,Uz = 1.000
Us —— 风荷载体型系数: Us = 0.600
经计算得到:Wk = 0.300×1.000×0.600 = 0.180kN/m2。
考虑风荷载时,立杆的轴向压力设计值计算公式
N = 1.2NG + 0.9×1.4NQ
经过计算得到,底部立杆的最大轴向压力:
N=1.2×8.292+0.9×1.4×4.725=15.904kN
不考虑风荷载时,立杆的轴向压力设计值计算公式
N = 1.2NG + 1.4NQ
经过计算得到,底部立杆的最大轴向压力:
N=1.2×8.292+1.4×4.725=16.566kN
风荷载设计值产生的立杆段弯矩 MW计算公式
MW = 0.9×1.4Wklah2/10
其中 Wk —— 风荷载标准值(kN/m2);
la —— 立杆的纵距 (m);
h —— 立杆的步距 (m)。
经过计算得到风荷载产生的弯矩:
Mw=0.9×1.4×0.180×1.500×1.500×1.500/10=0.077kN.m
五、立杆的稳定性计算:
1.不考虑风荷载时,立杆的稳定性计算
其中 N —— 立杆的轴心压力设计值,N=16.566kN;
i —— 计算立杆的截面回转半径,i=1.60cm;
k —— 计算长度附加系数,取1.155;
u —— 计算长度系数,由脚手架的高度确定,u=1.500;
l0 —— 计算长度 (m),由公式 l0 = kuh 确定,l0=1.155×1.500×1.500=2.599m;
A —— 立杆净截面面积,A=4.239cm2;
W —— 立杆净截面模量(抵抗矩),W=4.491cm3;
λ —— 长细比,为2599/16=163
λ0 —— 允许长细比(k取1),为2250/16=141 <210 长细比验算满足要求!
φ —— 轴心受压立杆的稳定系数,由长细比 l0/i 的结果查表得到0.268;
σ —— 钢管立杆受压强度计算值 (N/mm2);
[f] —— 钢管立杆抗压强度设计值,[f]=205.00N/mm2;
经计算得到:
σ=16566/(0.27×424)=145.699N/mm2;
不考虑风荷载时,立杆的稳定性计算 σ < [f],满足要求!
2.考虑风荷载时,立杆的稳定性计算
其中 N —— 立杆的轴心压力设计值,N=15.904kN;
i —— 计算立杆的截面回转半径,i=1.60cm;
k —— 计算长度附加系数,取1.155;
u —— 计算长度系数,由脚手架的高度确定,u=1.500;
l0 —— 计算长度 (m),由公式 l0 = kuh 确定,l0=1.155×1.500×1.500=2.599m;
A —— 立杆净截面面积,A=4.239cm2;
W —— 立杆净截面模量(抵抗矩),W=4.491cm3;
λ —— 长细比,为2599/16=163
λ0 —— 允许长细比(k取1),为2250/16=141 <210 长细比验算满足要求!
φ —— 轴心受压立杆的稳定系数,由长细比 l0/i 的结果查表得到0.268;
MW —— 计算立杆段由风荷载设计值产生的弯矩,MW=0.077kN.m;
σ —— 钢管立杆受压强度计算值 (N/mm2);
[f] —— 钢管立杆抗压强度设计值,[f]=205.00N/mm2;
经计算得到 σ=15904/(0.27×424)+77000/4491=156.925N/mm2;
考虑风荷载时,立杆的稳定性计算 σ < [f],满足要求!
六、最大搭设高度的计算:
不考虑风荷载时,当立杆采用单管时,单、双排脚手架允许搭设高度[H],按下式计算:
[H] = [φAσ-(1.2NG2k+1.4NQk-NXie)] / 1.2gk
其中 NG2k —— 构配件自重标准值产生的轴向力,NG2k = 3.748kN;
NQk —— 活荷载标准值, NQk = 4.725kN;
gk —— 每米立杆承受的结构自重标准值,gk = 0.120kN/m;
NXie —— 轴向力钢丝绳卸荷部分, NQk = -0.001kN;
σ —— 钢管立杆抗压强度设计值,σ = 205.00N/mm2;
经计算得到,不考虑风荷载时,按照稳定性计算的搭设高度 [H] = 84.985米。
考虑风荷载时,当立杆采用单管时,单、双排脚手架允许搭设高度[H],按下式计算:
[H] = {φAσ-[1.2NG2k+0.9×1.4(NQk+φAMwk)-NXie]} / 1.2gk
其中 NG2k —— 构配件自重标准值产生的轴向力,NG2k = 3.748kN;
NQk —— 活荷载标准值, NQk = 4.725kN;
gk —— 每米立杆承受的结构自重标准值,gk = 0.120kN/m;
Mwk —— 计算立杆段由风荷载标准值产生的弯矩,Mwk = 0.061kN.m;
NXie —— 轴向力钢丝绳卸荷部分, NQk = -0.001kN;
σ —— 钢管立杆抗压强度设计值,σ = 205.00N/mm2;
经计算得到,考虑风荷载时,按照稳定性计算的搭设高度 [H] = 76.091米。
取上面两式计算结果的最小值,脚手架允许搭设高度 [H]=76.091米。
七、连墙件的计算:
连墙件的轴向力计算值应按照下式计算:
Nl = Nlw + No
其中 Nlw —— 风荷载产生的连墙件轴向力设计值(kN),应按照下式计算:
Nlw = 1.4 × wk × Aw
wk —— 风荷载标准值,wk = 0.180kN/m2;
Aw —— 每个连墙件的覆盖面积内脚手架外侧的迎风面积:
Aw = 3.00×4.50 = 13.500m2;
No —— 连墙件约束脚手架平面外变形所产生的轴向力(kN);No = 3.000
经计算得到 Nlw = 3.402kN,连墙件轴向力计算值 Nl = 6.402kN
根据连墙件杆件强度要求,轴向力设计值 Nf1 = 0.85Ac[f]
根据连墙件杆件稳定性要求,轴向力设计值 Nf2 = 0.85φA[f]
其中 φ —— 轴心受压立杆的稳定系数,由长细比 l/i=40.00/1.60的结果查表得到φ=0.93;
净截面面积 Ac = 4.24cm2;毛截面面积 A = 18.10cm2;[f] = 205.00N/mm2。
经过计算得到 Nf1 = 73.865kN
Nf1>Nl,连墙件的设计计算满足强度设计要求!
经过计算得到 Nf = 294.049kN
Nf2>Nl,连墙件的设计计算满足稳定性设计要求!
连墙件采用扣件与墙体连接。
经过计算得到 N1=6.402kN 小于扣件的抗滑力8.0kN,连墙件扣件满足要求!
八、立杆的地基承载力计算:
立杆基础底面的平均压力应满足下式的要求
pk ≤ fg
其中 pk —— 脚手架立杆基础底面处的平均压力标准值,pk =Nk/A=52.07 (kPa)
Nk —— 上部结构传至基础顶面的轴向力标准值 Nk = 8.29+4.72=13.02kN
A —— 基础底面面积 (m2);A = 0.25
fg —— 地基承载力设计值 (kN/m2);fg = 68.00
地基承载力设计值应按下式计算
fg = kc × fgk
其中 kc —— 脚手架地基承载力调整系数;kc = 0.40
fgk —— 地基承载力标准值;fgk = 7
因此,楼板承载力不能满足要求,需要对楼板采取支撑的措施,对架体底部各楼层对应位置增设支撑,并对结构五层架体进行卸荷处理。
扣件脚手架计算满足要求!
局部架体搭设高度44.5米计算:
(小横杆、大横杆、挠度、扣件抗滑力、最大搭设高度及连墙件计算参照38m架体计算)
一、脚手架荷载标准值:
作用于脚手架的荷载包括静荷载、活荷载和风荷载。静荷载标准值包括以下内容:
(1)每米立杆承受的结构自重标准值(kN/m);本例为0.1196
NG1 = 0.120×44.5.000=5.34kN
(2)脚手板的自重标准值(kN/m2);本例采用木脚手板,标准值为0.35
NG2 = 0.350×5×1.500×(1.050+0.400)/2=1.903kN
(3)栏杆与挡脚手板自重标准值(kN/m);本例采用栏杆、木脚手板标挡板,准值为0.17
NG3 = 0.170×1.500×5=1.275kN
(4)吊挂的安全设施荷载,包括安全网(kN/m2);0.010
NG4 = 0.010×1.500×38.000=0.570kN
经计算得到,静荷载标准值 NG = NG1+NG2+NG3+NG4 = 9.088kN。
活荷载为施工荷载标准值产生的轴向力总和,内、外立杆按一纵距内施工荷载总和的1/2取值。
经计算得到,活荷载标准值 NQ = 3.000×2×1.500×1.050/2=4.725kN
风荷载标准值应按照以下公式计算
其中 W0 —— 基本风压(kN/m2), W0 = 0.300
Uz —— 风荷载高度变化系数,Uz = 1.000
Us —— 风荷载体型系数: Us = 0.600
经计算得到:Wk = 0.300×1.000×0.600 = 0.180kN/m2。
考虑风荷载时,立杆的轴向压力设计值计算公式
N = 1.2NG + 0.9×1.4NQ
经过计算得到,底部立杆的最大轴向压力:
N=1.2×9.088+0.9×1.4×4.725=16.859kN
不考虑风荷载时,立杆的轴向压力设计值计算公式
N = 1.2NG + 1.4NQ
经过计算得到,底部立杆的最大轴向压力:
N=1.2×9.088+1.4×4.725=17.521kN
风荷载设计值产生的立杆段弯矩 MW计算公式
MW = 0.9×1.4Wklah2/10
其中 Wk —— 风荷载标准值(kN/m2);
la —— 立杆的纵距 (m);
h —— 立杆的步距 (m)。
经过计算得到风荷载产生的弯矩:
Mw=0.9×1.4×0.180×1.500×1.500×1.500/10=0.077kN.m
二、立杆的稳定性计算:
1.不考虑风荷载时,立杆的稳定性计算
其中 N —— 立杆的轴心压力设计值,N=16.859kN;
i —— 计算立杆的截面回转半径,i=1.60cm;
k —— 计算长度附加系数,取1.155;
u —— 计算长度系数,由脚手架的高度确定,u=1.500;
l0 —— 计算长度 (m),由公式 l0 = kuh 确定,l0=1.155×1.500×1.500=2.599m;
A —— 立杆净截面面积,A=4.239cm2;
W —— 立杆净截面模量(抵抗矩),W=4.491cm3;
λ —— 长细比,为2599/16=163
λ0 —— 允许长细比(k取1),为2250/16=141 <210 长细比验算满足要求!
φ —— 轴心受压立杆的稳定系数,由长细比 l0/i 的结果查表得到0.268;
σ —— 钢管立杆受压强度计算值 (N/mm2);
[f] —— 钢管立杆抗压强度设计值,[f]=205.00N/mm2;
经计算得到:
σ=16859/(0.27×424)=147.266N/mm2;
不考虑风荷载时,立杆的稳定性计算 σ < [f],满足要求!
2.考虑风荷载时,立杆的稳定性计算
其中 N —— 立杆的轴心压力设计值,N=17.521kN;
i —— 计算立杆的截面回转半径,i=1.60cm;
k —— 计算长度附加系数,取1.155;
u —— 计算长度系数,由脚手架的高度确定,u=1.500;
l0 —— 计算长度 (m),由公式 l0 = kuh 确定,l0=1.155×1.500×1.500=2.599m;
A —— 立杆净截面面积,A=4.239cm2;
W —— 立杆净截面模量(抵抗矩),W=4.491cm3;
λ —— 长细比,为2599/16=163
λ0 —— 允许长细比(k取1),为2250/16=141 <210 长细比验算满足要求!
φ —— 轴心受压立杆的稳定系数,由长细比 l0/i 的结果查表得到0.268;
MW —— 计算立杆段由风荷载设计值产生的弯矩,MW=0.077kN.m;
σ —— 钢管立杆受压强度计算值 (N/mm2);
[f] —— 钢管立杆抗压强度设计值,[f]=205.00N/mm2;
经计算得到 σ=17521/(0.27×424)+77000/4491=170.19N/mm2;
考虑风荷载时,立杆的稳定性计算 σ < [f],满足要求!
三、立杆的地基承载力计算:
立杆基础底面的平均压力应满足下式的要求
pk ≤ fg
其中 pk —— 脚手架立杆基础底面处的平均压力标准值,pk =Nk/A=55.25 (kPa)
Nk —— 上部结构传至基础顶面的轴向力标准值 Nk = 9.088+4.725=13.813kN
A —— 基础底面面积 (m2);A = 0.25
fg —— 地基承载力设计值 (kN/m2);fg = 68.00
地基承载力设计值应按下式计算
fg = kc × fgk
其中 kc —— 脚手架地基承载力调整系数;kc = 0.40
fgk —— 地基承载力标准值;fgk = 7
因此,此处楼板承载力不能满足要求,需要对楼板采取支撑的措施,对架体底部各楼层对应位置增设支撑,并对结构五层架体进行卸荷处理。