【最佳方案奖】9号作品名称:#户型优化#174平米的家
说明:首先是一楼,在入户位置,上方做了一排鞋柜,给鞋柜里设计了灯带,不仅美观,还有照明的作用。玄关的位置空间很大,可以放置一个换鞋凳,这样换鞋就方便了许多....
评委点评1:
①考虑实用性功能性舒适性较多,唯一觉得有问题的地方就是一楼客厅二楼次卧上方的大梁,若没处理好也很难受,整体方案很赞。
评委点评2:
①把室内外空间都纳入了整体的设计范围,整个处理方式都体现了设计者的细节处理的周密之处,而在整体的设计上,很好的兼顾到了一家人的娱乐与使用。
②在空间的划分上还是很不错的,但有同样不好的地方就是轻忽了长辈。


【最佳创意奖】20号作品名称:#户型优化#174平米复式带花园
说明:在这个“物质焦虑”的时代,高效化的生产模式带来快节奏的生活方式,很多人,身体在加速奔跑,灵魂却无处安放。
评委点评1:
①看起来很大气,很舒服;
②厨房有些小,楼梯下空间有些浪费,二楼卧室离卫生间远,可能也不方便;
③户外花园很可惜没有做。
评委点评2:
①此方案设计不仅把创意与实用性相互调和,还提升了空间的功能感。
②细节的把空间进行了深入的设计,不但最高限度的贴合整一个设计主题,还顾及到了很多人没有想到的长辈问题,真的做得不错哦!!


【最具潜力奖】11号作品名称:#户型优化#174平放复式带花园
说明;本方案在满足基本居住功能的前提下,尽可能提高孩子的成长环境...
评委点评1:
①很符合主题要求,该有的功能都有,实际考虑的也挺多。
②二楼主卧的大梁也标出来了,处理不好可能会很难受,整体上方案不错,值得学习。
评委点评2:
①创意与实用性相互调和,不仅提升了空间的独立感,却不失其中的纽带联系,细节的把室内外都进行了深入的设计。
②最高限度的贴合整一个设计主题,不但顾及到了儿童的游乐还做到了很多人没有想到的长辈问题。真的应该给他一个大大的赞。


【最具人气奖】29号作品名称:#户型优化#174平放复式带花园-方案二
说明:人大半辈子都在繁忙,读书,上学,生活,成家。我们常说的你在闹我在笑,孩子都会给我们带来欢乐,喜悦,而他们不懂尘世中的繁杂,却对自己喜欢的东西情有独钟,所以你在闹我在笑。
评委点评1:
①空间也挺舒服,二楼卫生间浴缸是个独立空间,如果不常用可能会是个浪费,如果做成休闲阳台也许会更好些(个人建议);
②主卧那个大梁的位置不舒服;
③跟方案二一样厨房洗菜池太远了,煮菜洗菜操作上不太方便。
评委点评2:
①同一户型,同一设计者,不同的方案。但还是把业主,儿童,长辈三方作为整体的切入点;
②但相同的在思考的时间节点上可以好好的再把控一下。



【入围展示】(排序按名字排序)

【入围作品】1号作品名称:#户型优化#174平放复式带花园
说明:家是每一个人的生活容器,男主人与女主人都是高级白领,对生活和细节都有着丰富理解与要求,老人和宝宝小baby的互动,让这个家气氛融洽。
评委点评1 :
①首先一楼楼梯踏步不够,只有13步,算下来一步230的高度不合适;
②楼梯下是烟机灶,离楼梯高度操作也不太方便,二楼卧室一留个窗户应该会更好些,一楼沙发二楼 主卧上面都是梁位。
评委点评2 :
①此设计创意与实用性相互融合,大大的提升了空间的开阔感,却不失最大限的使用每一寸空间。
②细节的把室内外都进行了深入的设计,最高限度的贴合整一个设计主题。
③欠缺的一点是没有在室内再细节的处理处属于小孩的活动空间,但具体还是留有足够的活动空间。


【入围作品】2号作品名称:#户型优化#小户型 大空间
说明:本案采用开放式设计手法,模糊空间界限,使得空间无限放大....
评委点评1 :
①把花园部分都扩建了,因为之前也没说明,设计挺有创意的,方案挺好的,还做了效果图,很用心。
评委点评2 :
①这一设计,把原有的室内外空间都纳入了整体的整改范围。虽说调整后所少了整体的室外范围,但在二层的处理上却兼顾都的室外的重要。还是很值得表扬的。
②在整体的设计上,很好的兼顾到了一家人的娱乐与使用。在空间的划分上还是很不错的。
③有一点不好的是,没有为老人家留下居住或者休息的空间。长辈帮忙照顾孩子,但没说长辈不住在这,所以还要兼顾长辈哦!!!


【入围作品】3号作品名称:#户型优化#174平放复式带花园
说明:建筑上没太多要求,切合实际没做太大改动。户外造景,提供人与自然沟通的场地...
评委点评1:
①这一设计,把原有的室内外空间都纳入了整体的整改范围。虽说调整后所少了整体的室外范围,但在二层的处理上却兼顾都的室外的重要。还是很值得表扬的。
②在整体的设计上,很好的兼顾到了一家人的娱乐与使用,在空间的划分上还是很不错的。
③有一点不好的是,没有为老人家留下居住或者休息的空间,长辈帮忙照顾孩子,但没说长辈不住在这,所以还要兼顾长辈哦。
评委点评2:
①这个设方案计很好的贴合了整一个设计主题。还巧妙的把空间连贯成一体,不仅能相互联系,还能在功能上各显自己的独特之处,让整个空间既灵动,也安逸。
②要关注的一点是,房间棱角位置会比较多,后期防撞需要做好哦!

【入围作品】5号作品名称:#户型优化#174平放复式带花园-方案二
说明:房子装修风格是北欧,以木元素为主,给业主一家带来温馨的感觉...
评委点评1:
①整体方案感觉很大气,洗衣区如果能放到室内可能会更好,毕竟室外还是不太方便。
②二楼主卧床看风景倒是好,但是有可能会影响睡眠吧,如果可以换个方向就更好了。
评委点评2:
①此设计创意与实用性还算可以,提升了空间的开阔感,也把空间的使用的不错。
②欠缺的是没有为老人家留下居住或者休息的空间,长辈帮忙照顾孩子,但没说长辈不住在这,所以还要考虑长辈的要素在设计里。


【入围作品】9号作品名称:#户型优化#174平米的家
说明:首先是一楼,在入户位置,上方做了一排鞋柜,给鞋柜里设计了灯带,不仅美观,还有照明的作用。玄关的位置空间很大,可以放置一个换鞋凳,这样换鞋就方便了许多....
评委点评1:
①考虑实用性功能性舒适性较多,唯一觉得有问题的地方就是一楼客厅二楼次卧上方的大梁,若没处理好也很难受,整体方案很赞。
评委点评2:
①把室内外空间都纳入了整体的设计范围,整个处理方式都体现了设计者的细节处理的周密之处,而在整体的设计上,很好的兼顾到了一家人的娱乐与使用。
②在空间的划分上还是很不错的,但有同样不好的地方就是轻忽了长辈。


【入围作品】11号作品名称:#户型优化#174平放复式带花园
说明;本方案在满足基本居住功能的前提下,尽可能提高孩子的成长环境...
评委点评1:
①很符合主题要求,该有的功能都有,实际考虑的也挺多。
②二楼主卧的大梁也标出来了,处理不好可能会很难受,整体上方案不错,值得学习。
评委点评2:
①创意与实用性相互调和,不仅提升了空间的独立感,却不失其中的纽带联系,细节的把室内外都进行了深入的设计。
②最高限度的贴合整一个设计主题,不但顾及到了儿童的游乐还做到了很多人没有想到的长辈问题。真的应该给他一个大大的赞。


【入围作品】12号作品名称:#户型优化#174平放复式带花园
说明:花园的面积可以扩大居住面积,所以整体建筑面积加大。一层为平时生活活动范围,二层为主要宝宝活动空间...
评委点评1:
①直接大面积扩建并不符合要求,客厅空间浪费,采光不足,二楼大面积浪费了,在优化下就比较实用了。
评委点评2:
①设计者在这一方案的设计创意与实用性还算可以,对于儿童这一点进行了放大,也把空间的使用的不错。
②欠缺的是没有为老人家留下居住或者休息的空间,其实在这一点里面,最不能轻忽的就是长辈,他不仅养育了我们这一代,还帮助我们养育下一代,所以不能轻忽了最重要的他们。


【入围作品】13号作品名称:#户型优化#174平放复式带花园
说明:这次的方案是现代简约风格,业主是一对年轻夫妇,日常工作比较繁忙。简约风格比较注重的是简洁、明快、不拘一格,相信在这样的环境下,能给业主带来更好的生活体验....
评委点评1:
①功能基本都满足了,一楼走廊有些浪费,厨房有些小了
②二楼走廊也有点浪费,还有个阳角没处理,在优化下就比较实用了。
评委点评2:
①设计者把室内外,两个空间都进行了深入的设计造型。整个处理方式都体现了设计者的细节之处。
②而在整体的设计上,很好的兼顾到了一家人的空间与功能使用。在空间的划分上还是很不错的。但还是犯了长辈的这一错误。


【入围作品】15号作品名称:#户型优化#174平方复式带花园
说明:本案名为乌托邦,意为理想中的家。业主为一对忙于工作的年轻夫妇,在忙完工作以后,也希望他们对家有一个美好的归宿,在入户门位置做了一个防腐木的长廊,方便在雨天能为业主一家遮风挡雨。进入室内,右手边做了一个通顶的鞋柜,能够满足业主一家对鞋具的收纳...
评委点评1:
①冰箱太远了不方便使用,洗衣区放室外可能不太方便使用,楼梯踏步太高,楼梯下方有些浪费,其实可以做储物间胡总可以放冰箱之类。
②二楼卫生间下水跟一楼有点远,榻榻米房间应该还可以再优化优化。
评委点评2:
①在方案的整体处理上,设计者把室内外都进行了功能设计。整个处理方式都体现了设计者的对于主题的理解,很好的兼顾到了一家人的空间与功能使用。在空间的划分上花了不少的心思。
②而在整体上增加了一个多功能区,不知道是否是特意留给长辈暂住的。如果是,那设计者的谨慎思还是不错的。


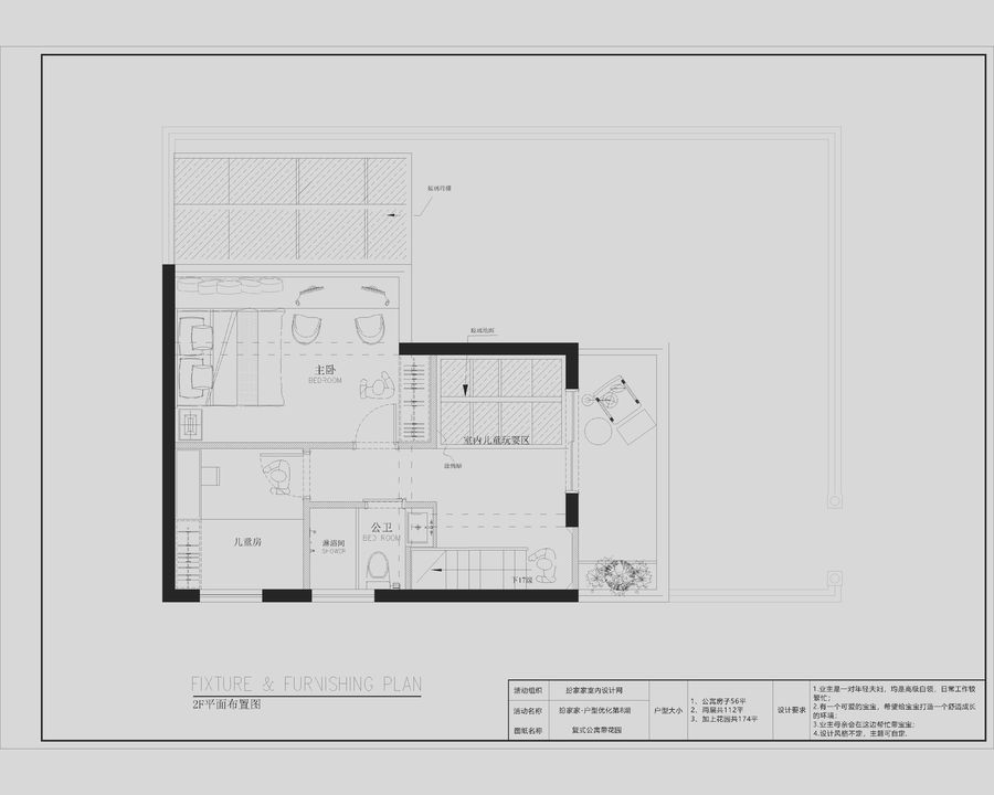
【入围作品】17号作品名称:#户型优化#174平放复式带花园
说明:本案为复式公寓楼一层56平方,两层是112平方,加上户外花园面积一共是174平方,环境优美。
评委点评1:
①需要多练习开拓思维,很认真的去做了,值得鼓励。
评委点评2:
①此方案在整体的处理上,都把室内外进行了小小的分区。整个处理方式体现了设计者的对于空间与功能的理解。
②可以看出的是设计者很想平衡整个设计主题,但还是不够完美。而在长辈与儿童互动这两项比较明显。


【入围作品】20号作品名称:#户型优化#174平米复式带花园
说明:在这个“物质焦虑”的时代,高效化的生产模式带来快节奏的生活方式,很多人,身体在加速奔跑,灵魂却无处安放。
评委点评1:
①看起来很大气,很舒服;
②厨房有些小,楼梯下空间有些浪费,二楼卧室离卫生间远,可能也不方便;
③户外花园很可惜没有做。
评委点评2:
①此方案设计不仅把创意与实用性相互调和,还提升了空间的功能感。
②细节的把空间进行了深入的设计,不但最高限度的贴合整一个设计主题,还顾及到了很多人没有想到的长辈问题,真的做得不错哦!!


【入围作品】21号作品名称:#户型优化#174平放复式带花园-吾提库尔【ウティクル】
作者:ウティクル
说明:功能方面,要充分满足业主的生活要求,客厅是全家人聚集聊天谈心,和宝宝互动的场所,因此在设计时沙发不能占据客厅的全部,另因业主工作繁忙所以家具选择上主要考虑舒适,实用性的...
评委点评1:
①入户改的太远了,二楼主卧布置的有些随意了,可以再优化一下。
评委点评2:
①设计者在方案设计中把室内外,两个空间都进行了深入的设计,每一份处理方式都体现了设计者的想法。
②而在整体的设计上,很好的兼顾到了一家人的空间与功能使用。


【入围作品】25号作品名称:#户型优化#174平米复式带户外花园【一枚仙人掌】
作者:一枚仙人掌
评委点评1:
①一楼布置头顶中空位有些不舒服,在餐厅客厅感觉也有些难受;
②外挂楼梯去二楼很不方便,去儿童房更是太远。
评委点评2:
①设计者把原有的室内外两个空间纳入为整改范围,把两个空间的功能与空间比例尺寸规划的更加的具象化。
②而在整体的设计上,很好的兼顾到了一家人的娱乐与使用,在空间的划分上还是很不错的。
③而更好的是,他为长辈与儿童考虑了很多,所以使的整个设计更加的具有创意,使用性,也更加的复合整个设计主题的核心。


【入围作品】28号作品名称:#户型优化#174平放复式带花园-方案一【钟荣森(三木)】
作者:钟荣森(三木)
说明:人大半辈子都在繁忙,上学,工作,生活,成家。我们常说的你在闹我在笑,孩子都会给我们带来欢乐,喜悦,而他们不懂尘世中的繁杂,却对自己喜欢的东西情有独钟,所以你在闹我在笑。
评委点评1:
①空间也挺舒服大气的
②厨房操作不太方便,洗菜池太远,
③总体感觉有点浪费空间了,建议可以再考虑下优化和空间利用。
评委点评2:
①设计者在整体的设计上不仅思考了设计上的创新性,还考虑到了整体主题的切入点,把业主,儿童,长辈三方进行了很好的调和。
②但在整体上,如果能把儿童的时间段拉长一点会更加好,因为待孩子长大,那整体的居住空间就会发生变化。所以在思考的时间节点上可以好好的再把控一下。


【入围作品】29号作品名称:#户型优化#174平放复式带花园-方案二【钟荣森(三木)】
作者:钟荣森(三木)
说明:人大半辈子都在繁忙,读书,上学,生活,成家。我们常说的你在闹我在笑,孩子都会给我们带来欢乐,喜悦,而他们不懂尘世中的繁杂,却对自己喜欢的东西情有独钟,所以你在闹我在笑。
评委点评1:
①空间也挺舒服,二楼卫生间浴缸是个独立空间,如果不常用可能会是个浪费,如果做成休闲阳台也许会更好些(个人建议);
②主卧那个大梁的位置不舒服;
③跟方案二一样厨房洗菜池太远了,煮菜洗菜操作上不太方便。
评委点评2:
①同一户型,同一设计者,不同的方案。但还是把业主,儿童,长辈三方作为整体的切入点;
②但相同的在思考的时间节点上可以好好的再把控一下。



【其他投稿作品】

【投稿作品】4号作品名称:#户型优化#174平放复式带花园【BO-勿盗我】
作者:BO-勿盗我
说明:一个想法,主要与大家沟通。


【投稿作品】6号作品名称:#户型优化#174平放复式带花园-方案一【LIHAIXIN】
作者:LIHAIXIN
说明:房子装修风格是北欧,以木元素为主,给业主一家带来温馨的感觉...


【投稿作品】7号作品名称:#户型优化#174平放复式带花园-卐【SJHPHIL】
作者:SJHPHIL
说明;为满足其功能需求,对本户型加建,减少了户外花园的空间以及客厅中空


【投稿作品】8号作品名称:#户型优化#174平米复式带花园【Xie_欢】
作者:Xie_欢


【投稿作品】10号作品名称:#户型优化#174平放复式带花园【胡萝卜85】
作者:胡萝卜85
说明:一切都是为了孩子。家具圆角处理,防止小孩被磕碰到...


【投稿作品】14号作品名称:#户型优化#174平放复式带花园-现代流动空间【老庚】
作者:老庚

【投稿作品】16号作品名称:#户型优化#174平放复式带花园【韶华倾付】
作者:韶華_倾付
说明;风格定位为现代简约风,首先户型内部结构均为承重墙(不可拆除),所以对进门右手边房间限制很大,考虑再三后觉定此房间还是做厨房最合适,但房间门不是开在原有洞口处,因为那样做的话厨房冰箱会放在进门处阻碍视线...


【投稿作品】18号作品名称:#户型优化#174平方复式带花园【死海里的鱼X】
作者:死海里的鱼X


【投稿作品】19号作品名称:#户型优化#174平放复式带花园-【死火山】
作者:死火山
说明:本方案通过改变入户门的位置,让工作繁忙的业主回来的时候,通过自家的小花园,是一个从“工作”转化到“家”的过程,让身心从“紧绷”到“放松”。


【投稿作品】22号作品名称:#户型优化#174平放复式带花园【午夜狂想曲】
作者:午夜狂想曲
说明: 设计就是为生活服务,一个好的设计可以让工作繁忙一天的上班族身心得到很好的放松。


【投稿作品】23号作品名称:#户型优化#174平放复式带花园【小晨red】
作者:小晨red
说明:主要解决厕所和业主母亲的住宿问题,我在客厅阳台做了个可以收纳的塔塔米床平常小孩可以在上面玩耍,阿姨要住宿的话可以铺棉被睡在上面,厕所做在楼梯下面合理利用空间...


【投稿作品】24号作品名称:#户型优化#174平放复式带花园【心木予设计】
作者:心木予设计
说明:个人设计风格更习惯于规整美,因为业主需要母亲带孩子所以设计了三室,一楼的榻榻米更适合老人住也能增加储物空间,而且老人上下楼不方便还是放在一楼更为合适


【投稿作品】26号作品名称:#户型优化#现代简约方案构思【与右印象设计AAAAA-小v呀】
作者:与右印象设计AAAAA-小v
说明:从方案开始,我就想做一个简单的空间,不需要太多的硬装造型。这个想法也比较适合现在生活中人们追求的简约空间。


【投稿作品】27号作品名称:#户型优化#174平放复式带花园【预见】
作者:预见
说明;本案为二房二厅二卫一厨,公寓房子是56平,两层使用面积为112平方,加上户外花园面积一共是174平方。

