
一层入户处设有空间开敞的会客厅,次门厅设有电梯做为主要垂直交通方式,极大方便了顾客的通行。东侧主要为公共区域,设有舒适的用餐区;西侧为客房区域,通过走廊与公共空间连接,南向客房还设有单独的私家小院,充满趣味,吸引游客。

▲一层平面图
应业主要求,二层设有功能齐全的多功能厅及多个公共露台,本层设有三个客房,其中一套为家庭间,每个客房都拥有独立的私家露台,极大的方便了不同游客的需求。

▲二层平面图
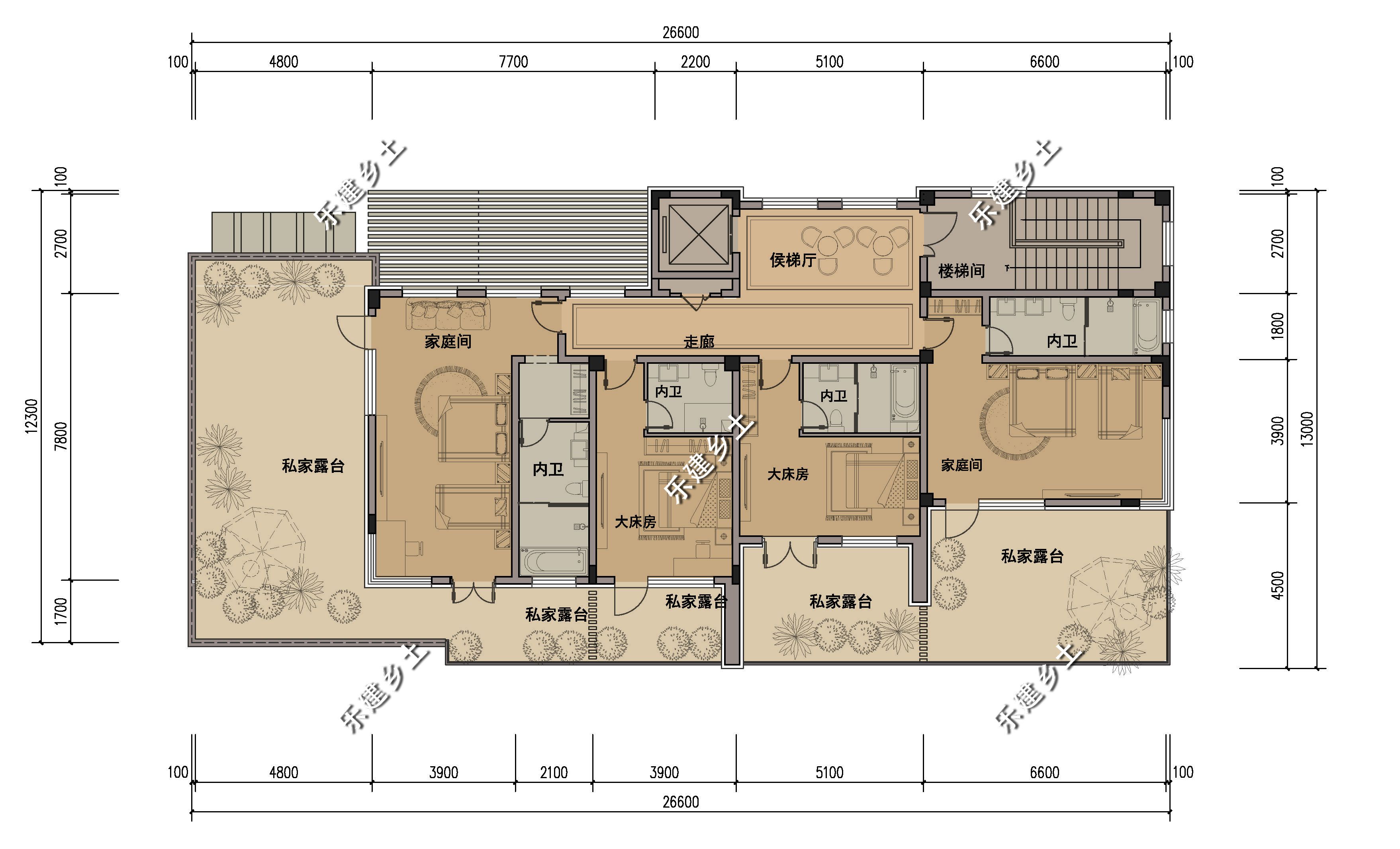
三层出客房外,设计大面积私家露台,可供客人休闲观景,放松身心。

▲三层平面图

▲屋顶平面图

该设计整体采用白色,红砖墙面及木色装饰穿插其中,露台采用玻璃栏板,整体简约大气。

以现代风格为主,外观简洁大方,线条流畅,没有复杂的装饰,效果迷人;空间布局设计丰富细致,给客人极佳的居住体验。

前院静水引入,形成独特的水塘,周围景色倒影其中,风景如画,美不胜收。




以下为过程版效果展示,每一个项目我们都会反复推敲,精心设计,达到客户满意为止。



人们对旅游体验的追求,加速了民宿项目的开发建设,一个好的设计方案,可以让您的民宿项目脱颖而出,吸引留住游客。