面积:64平
户型:2房
预算:14.0万
两房两厅 64平,套内52平,户型朝南。第一次买房没经验 而且还是房价高的吓死人的深圳,所以没看几套房子 就定了在地铁附近的一个小区。买的是二手房,因为新房单价比较高 而且房主不喜欢带装修的新房。
装修开始没多久房主就发现自己怀孕了,于是在最难受的前三个月把装修跑下来了。其中的辛苦就不说了。有人可能会问我家男人呢,因为工作关系G先生每周才能回来,回来都要坐公交+地铁,单程都要花2.5h。所以装修从材料采购到定制家具,和装修公司扯皮 都是我一个人搞定的。当时觉得没什么,一个人总要经历这些东西,也没指望谁,现在回想起来,觉得自己实在是太牛逼了!!!
==================================================================
首先是买来时候的样子。客厅和主卧阳台本来是通的,但是考虑到主卧的私密性,我把那个门改成窗户了~~~





==================================================================
登登登登,然后是装修好的样子!!!

装修方式是半包,费用是3万。除去窗帘 橱柜 瓷砖是在实体购买定制,其他全是淘宝。全部费用下来是14万,拎包入住的价钱,因为我们刚结婚什么都没有,家电家具都是新买的。




家里的茶几、电视柜、边桌、鞋柜、五斗柜、主卧床和衣柜、小房间所有柜子都是在淘宝上买的或者订做的,总共好像是2.5w 。
还有要说的就是餐桌餐椅 都是北美进口的胡桃木,小贵,一套下来差不多1w。。。所以超预算比较厉害的。




由于厨房也小 我就把生活阳台也并进来了。。。



阳台

主卧
墙体几乎是承重墙,所以没多少能改动的地方,两个房间很小,几本是只能放下一个衣柜和一个床。有人会问将来小孩子写字什么的怎么办,我是想着这个房子只是个过渡的,等他上学了我们会换房子,目前餐厅放了一张大大的餐桌 是我们工作台和小孩将来的写字台~



下面是小的卧室

小卧室也是儿童房,储物功能非常大,除了衣柜和那个书柜,床下都是柜子。没有买床 都是定制的。
卫生间
布局没有变 和之前的一样~~
浴室本来是想坐厕改蹲厕的,因为实在是太小了,只有2个平米多一点,做不了干湿分区,想着蹲厕下水会好一点,但是层高问题和本来的地面标高问题,又改回坐厕。
发一些手机里的图


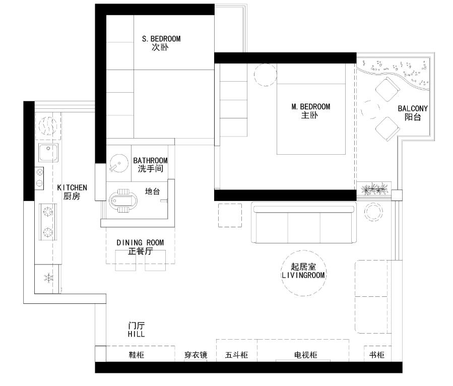
最后是户型图



如果你近期就要装修,点击文末图片推广,获取多套设计方案!
———————分割线————————
这样的装修你喜欢吗?装修其实很轻松!
关注微信公众号获取更多资讯: zxsj315 (装修设计搭配)