北欧风格的装修没有过多冗杂的装饰和花纹,用一种最简单、直接、功能化且贴近自然的线条来表现其宁静的北欧风情,是一种后现代的极简风格。
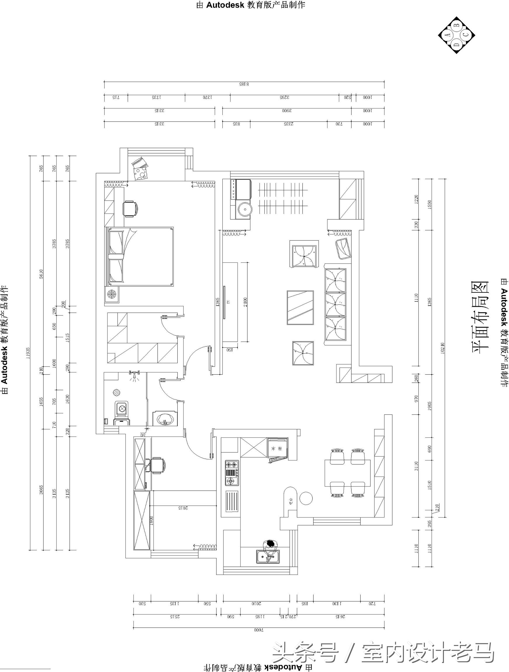
小区名称:藏龙府地
面积:123.4
风格: 北欧宜家
户型:三室两厅

墙面和屋顶通常都要刷成白色,也就是咱们中国人常说的“四白落地”。像咱们日常所见的,北欧风格的墙面大多是白色的,简单,清爽,干净,同时也使得空间看上去特别通透,对于小户型空间而言,可以很好地达到空间扩容的效果。

如果觉得墙面过于光秃秃的,您可以选择一些装饰物,很好地填补这些空白,比如:装饰挂画,特色墙上饰物,照片等等,经过这样的适当装饰,白色的墙面也会变得很好看了。

说起北欧风格的家具,很多人都会想起白色的精雕细琢的家具,其实,那是一个很大的误区,因为那是法式风格家居,而不是北欧风格,北欧风格家具的一定要简洁:线条简洁,不要过多累赘的装饰,让人看上简洁干净,要义明确,色调上也以白色、黑色、原木色为主。如果,你真的太喜欢艳丽点的色彩,记住,只能点缀。

墙面是白的,地板是浅色的,家具是中性的黑白灰或者原木色,这样放眼看过去会不会显得多多少少有些单调枯燥,这时,布艺就要登上场了。因此,北欧风格的布艺家纺的色彩一般就会比较鲜亮一些,蓝色,绿色的抱枕,粉色的床品,彩色清新的窗帘等等,都是不错的选择,但是,记住一定要适度,亮而不杂不乱。


北欧风格虽然追求简洁,但是在饰品装饰上还是必不可少的。而绿植和鲜花就是其中必然入镜的一大装饰,无论是客厅、厨房、卧室,只要你喜欢,就可以放,而且容器选择上,也要简单而精致,白色的釉质花瓶、透明玻璃瓶最佳。其它饰品,可以根据个人喜好添置,不过,也必须讲究度和整体环境相匹配。





如果您对小编的装修设计还满意,并且您有装修需求,可以私信小编。