住在自然里,有水有树有花有诗意,活在现代中,吃饭出行购物都不愁,这,大抵是很多人心目中最美好的生活的样子。
而这样的生活,自然离不开一个环境优美外加周边设施齐全的“15分钟生活圈”。

提起“15分钟生活圈”,可能大家或多或少都听过,这个概念与城市的快速扩张有分不开的关系。
如今,城市的版块越变越大,人们的居住地也越来越分散,以往围绕市中心逐渐辐射的发展方式早就难以满足人们的需求,并不是所有人都能居住在一个城市的核心区域,所以,随着城市的发展,各个区域又各自为阵,有了自己的小中心。
而撇开工作因素,无论居住在城市的哪个位置,只要能做到出门15分钟,就可以把自己入学,看病,养老,购物,休闲,甚至亲近自然等日常生活所需的问题通通解决,那就可以看作是一个“黄金地段”,这也是“15分钟生活圈”的由来。

对于大部分人来说,“15分钟生活圈”之所以备受推崇,是因为这个概念中预示的“便利性”。
但要说伦敦哪里真的把这个概念运用的好,已经在伦敦生活了十几年的房产君觉得还是要属西伦敦的圣雅居。

【吃喝玩乐一站可得】
对于大部分人来说,“15分钟生活圈”之所以备受推崇,是因为这个概念中预示的“便利性”。
对于大部分人来说,逛街购物,品尝美食,休闲娱乐都是生活中无比重要的一环。
但以往,市中心独占城市的购物、娱乐等资源,绝大多数的商业都集中在了市中心的几个区域以及周边的几大购物中心里。
对于工作繁忙的现代人来说,下班回到家中已是疲惫不堪,如果还要专门花时间前往这些地方去吃喝玩乐,别说是来不及,体验感也会大打折扣。

但拥有了“15分钟生活圈”,这些困扰都将不复存在。下班后可以在家门口吃个饭,顺带去附近的商场逛一逛,也可以约朋友在旁边的酒吧、咖啡馆畅聊,或者一起打卡去看新上映的电影……
不仅节约了花费在路上的时间成本,还丰富了日常的生活,可谓是一举多得,而这也是圣雅居居民的日常!
圣雅居临近举世闻名的温布利球场(Wembley Stadium),骑行7分钟能到达伦敦名品折扣购物中心London Designer Outlet,这里有70多家商店,其中就包括CK、耐克、GAP和Superdry等流行品牌,还有很多餐馆和咖啡店可供选择。

圣雅居距离西田购物中心(Westfield)也很近,作为全英乃至全欧洲最大的购物中心,西田购物中心聚集了来自全球的160多家时尚品牌专卖店。本土品牌Burberry,Mulberry,Spinal of London...法国的Louis Vuitton,Lacoste,PierreCardin...意大利的ARMANI,Gucci,Casino,PRADA,Ferragamo...几乎是汇聚了时尚界的半壁江山。

对于热爱家居的人来说,附近的宜家是最好的去处,尽情体验时尚生活的魅力,临走时还能犒赏自己一盘最著名的宜家肉丸!

如果想要采购新鲜食材的话,亚马逊在伦敦的第二家实体店也就在附近,在这里可以体验一把“自助购物”的乐趣~

咖啡馆

除了买买买,住在圣雅居,品尝美食将成为生活的一大乐趣。
由于圣雅居靠近大团圆运河,别具风情的运河酒吧Grand Junction Arms一定要尝试一下,坐在运河旁边,喝点小酒,欣赏美景,好不惬意!

当地的Ace Cafe咖啡馆已经有近百年的历史,是摩托车主和骑行者的最爱,点一杯咖啡,来一份英式传统菜肴炸鱼薯条,实在美哉~

喜欢麦芽酒的朋友可以去The Island、喜欢烤肉的话还可以去Royal Oak。

作为一个大型社区,随着住宅楼的交付,各种生活常见设施都将在圣雅居的社区之内,一切必备的生活所需,直接在家门口就能解决。
不过,尽管圣雅居周边已经有完备的设施,但真正能够体现圣雅居便利的还是它“商住”为一体的规划模式。
作为一个大型社区,随着住宅楼的交付,各种生活常见设施都将在圣雅居的社区之内,一切必备的生活所需,直接在家门口就能解决。
餐厅

酒吧

咖啡馆

超市

健身房

瑜伽馆

保龄球馆

而且,社区内还有自己的医疗中心,日常有个头疼脑热再也不用去大医院排几小时的队。

对于有孩子的家庭来说,圣雅居附近的学校也非常之多。比如大名鼎鼎的哈罗公学,评分较高的学校还有West Twyford Primary School、Elsley Primary School、Barham Primary School等。

更贴心的是,考虑到新手父母无人带孩子这个问题,圣雅居内还建有婴幼儿托管所。
在这里,从婴儿期到学龄前,孩子都可以享受无微不至的照顾,几乎是全方位解决了年轻人的后顾之忧。

此外,考虑到现代人在生活中缺乏沟通和交际,圣雅居将“共享生活”这个概念发挥到了极致。

社区内有共享办公室,在这里也许会结识未来的合作伙伴;院子里随处可见公共休闲区,可以和朋友或邻居谈天说地,还可以和大家相约在社区厨房亲自制作美食...
在这些过程中,社区成为了“沟通”的载体,人们也将更有归属感。

总之,住在圣雅居,生活简直不要太方便!
从逛街购物,到休闲娱乐,从教育医疗,到工作出行,以圣雅居为中心的“15分钟生活圈”内,几乎都可以满足人们的需求。
当然,便利只是圣雅居的一面,它还有人们想不到的另一面。
【随时随地亲近自然】
曾经,“15分钟生活圈”仅仅可能意味着生活上的便利性,但经历过新冠疫情后的,人们都明白,在繁忙的大都市还得随时随地亲近自然,保持健康生活才是一个合格的“15分钟生活圈”该有的样子。

清晨,整个城市正在苏醒,窗外太阳刚刚升起,四周的一切笼罩在薄薄的微光中,目光所及之处是一片绵延的绿意,而向远处看去,平静的河面上微光跳动,偶见一两只鸟儿的身影掠过,随时随地可以欣赏到美景...
傍晚,人声渐起,四周热闹起来,只需下楼就可以在绿意盎然,繁华似锦的院子里漫步,树荫下有人在*坐静**眺望,草坪上小孩在嬉戏玩闹,院子里的瀑布哗啦作响,奏响了一首美妙的乐曲……
周末,再也无需带孩子奔赴万里去体验自然,家门口就是公共绿地,大型花园,走一走就可以让自己置身自然之中,呼吸新鲜空气,与野生动物近距离接触……
试问,谁不羡慕这样的生活场景?而这一切在圣雅居成为了可能,住在这里,体验自然这件事情,真正的从“安排”,变成了“顺路”。

圣雅居位于伦敦西北部的Brent行政区的Alperton地区,这个社区主打的亮点是“双河交汇,绿地环绕”的舒适生活环境。
所谓的“双河交汇”是指圣雅居所在的地区刚好有两条河流经过,其中之一就是被称为“黄金水路”的大团圆运河(Grand Union Canal),另一条贯穿而过的河流则是泰晤士河的支流之一布伦特河(River Brent)。
这两条河流穿插交汇于圣雅居,其中很多户型位置优越,更是能够直接欣赏到美丽的河景风光。

除了拥有无与伦比的河景外,圣雅居小区内的绿化也是一绝,社区内开放空间约14英亩,各个楼宇间,公共区域,甚至连屋顶的休闲露台,都种植了错落有致的植物,鲜花点缀其中,住在这里,几乎与住在公园无异。


而且,圣雅居未来在小区内还会打造属于自己的室内瀑布,这在伦敦也是仅此一家。
为了让住户能拥有更健康、更环保的生活方式,圣雅居内还设置了大型骑行环线,并设置了多达300个充电桩。

日期:6月26日,27日 (周六,周日)
像是位于圣雅居东南方向不到20分钟车程的Wormwood Scrubs,是当地最大的公共空间之一,占地80公顷,在Scrubs周边分布着大量的球场及体育馆。

向北部驱车十几分钟就可以到达Hampstead Heath,这个公园占地320公顷,可以俯瞰伦敦天际线。

另外,Horsenden Hill Park、Fryent Country Park等公园也是值得一去的地方。

大名鼎鼎的温布利球场也位于这一区域,该球场是全欧洲第二大的球场,每年举办大型足球比赛及相关活动不计其数。
而诸如尼斯登神庙这样的著名旅游景点离圣雅居只有咫尺之遥。

在新冠疫情过后,当人们被迫从繁忙的工作中脱离出来,大家对于生活的理解也有了些许的变化,这些变化进而也转为了对住宅的偏好上,我们更加追求生活的品质感,也更为注重生活的健康度,而圣雅居可以说是将这两者结合的最好的例子之一。
更不要提,这个项目还有无与伦比的投资优势!
这里,房产君也给大家推荐几个能够欣赏到绝美河景的户型,从窗外就可以看到波光粼粼的景色,心情不惬意都不行~
曼哈顿户型(40万镑起)户型推荐:Plot426所在楼层:3楼(国内4楼)室内面积:40.3平方米;阳台:5.8平方米租金预估:£310/周户型图:

河景景观:

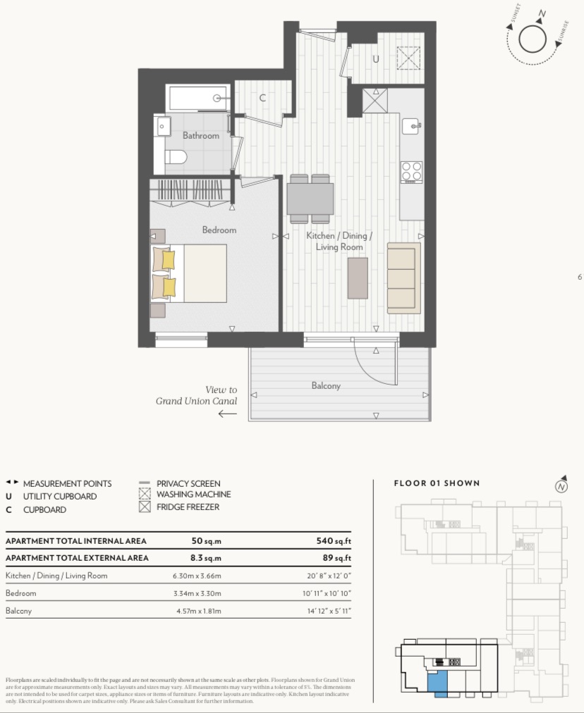
1居室户型(49万英镑起)
户型推荐:Plot360所在楼层:8楼(国内9楼)室内面积:50.2平方米;阳台:8.3平方米
租金预估:£392/周
户型图:

河景景观:

2居室户型推荐(60万英镑起)
户型推荐:Plot449所在楼层:5楼(国内6楼)室内面积:75.5平方米;阳台:6.7平方米
租金预估:£415/周户型图:

河景景观:
