传统古建筑的结构以木构架为主,其中榫卯结构做法在大式建筑的运用更是我国建筑文化与中国传统手工艺的巅峰代表,不用一钉一铆 榫卯之间显聪颖。但随着社会的发展与进步,尤其是21实际以来,我国与国际的接轨,经济等方面的快速发展,我们的城市建设与工业建筑等都有了本质性的发展,各种高楼大厦,玻璃幕墙让城市更加明亮整洁,空间的利用率也得到提升,现代化的高铁站、飞机场及体育馆等造型各异,非常艺术性的钢结构建筑。下面着重说的是现代仿古建筑中的主流结构--钢筋混凝土结构。


也许很多对历史文化等了解的朋友会对钢筋混凝土的仿古建筑颇有微词,认为是一堆钢筋水泥组成的建筑,没有古人的聪颖及匠心,是我国古建筑发展的落后化。也有很多的朋友对清朝时期的建筑进行抨击,当然历史文化是一部分,推崇宋代之前的建筑风格,特别唐朝开元盛世期间四海臣服,万国来朝,长安城夜火通明,一片繁荣。这个建筑风格小编不多作说明,建筑风格是历史文化发展的产物,我们尽能力多了解一下,通过建筑更多的了解那个时期的文化及民俗等。






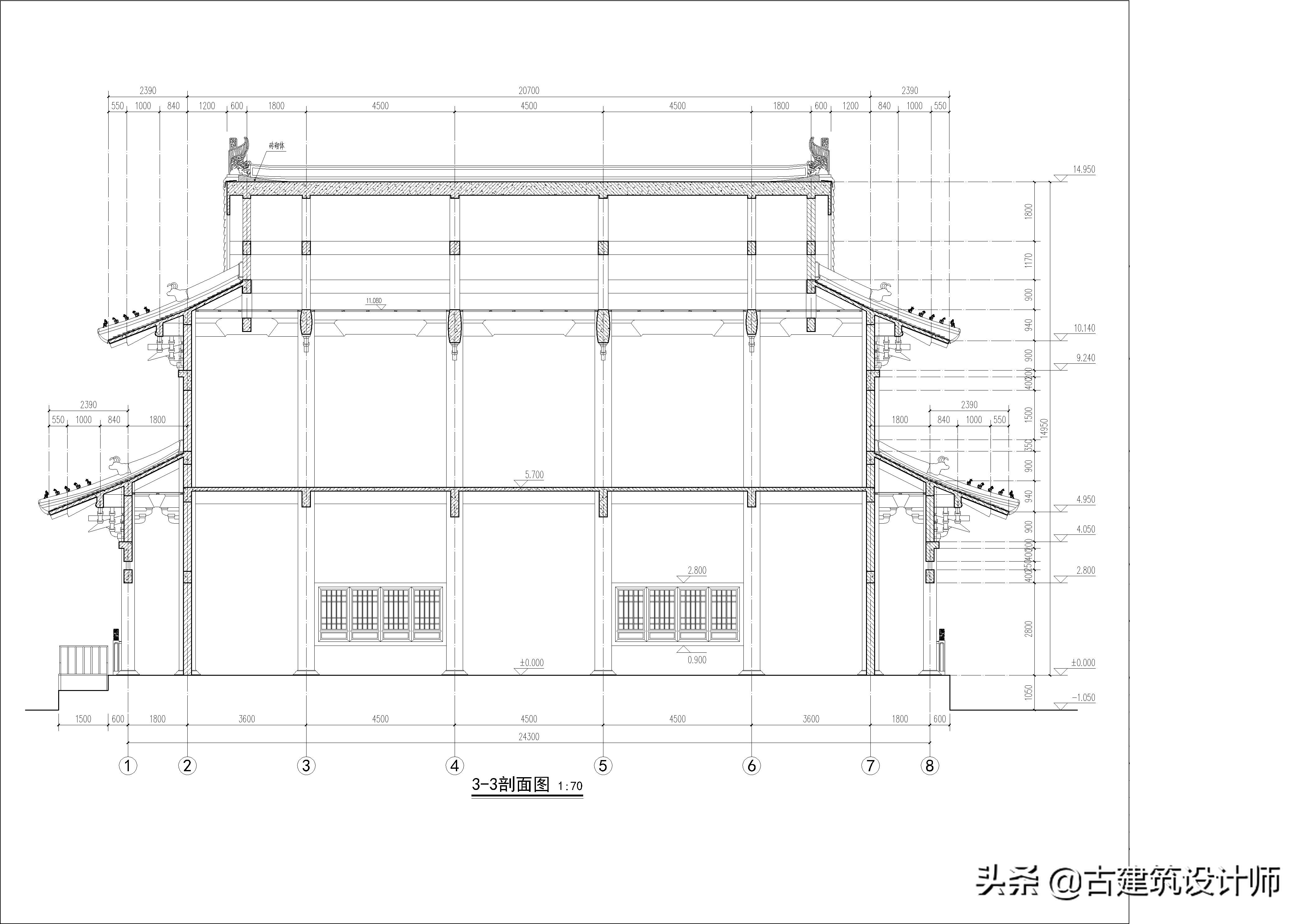
进入21世纪初,我们各行各业发展迅速,其中仿古建筑作为建筑中一支也等到长足的发展。仿古建筑即是现代建造的仿传统建筑。其发展也经历了一个发展的过程,为什么由传统的木构架逐步广泛改为混凝土结构。其原因有传统建筑对木材过量采伐对森林带来的破坏,已不符合可持续发展及环境保护等要求,其次是混凝土结构防腐、防火、防虫蛀、抗震及后期维修保护费用低。这些是木结构不具备的特点。仿古建筑多用于景区构造物,并不是以作为古建筑文化瑰宝作为传承之用,以“形体神似”为主,不苛求一招一式完全一样,应该“高仿”“精仿”仿出的作品可以乱真的水平。




而且混凝土应用较为广泛,近年来我们搞过一些地势及地质极差的仿古建筑,那种用传统建筑做法是很难实现且很有技术难度的,但用混凝土结构可以较容易实现我们规划的目的。之前我们在江苏某湿地公园项目建筑个水上观景台及水榭,面积为接近600平方,地勘测试淤泥层深十几米,用传统技术来处理是很有难度的。仿古建筑也是极具艺术观赏性的,有的朋友对高仿的字画、瓷器、家具等乐此不彼,却对仿古建筑执否定态度,我们支持真正有艺术价值的仿古建筑精品,也否定粗制滥造的仿古建筑,不伦不类做工粗糙。总之做仿古建筑要精心设计,精心施工,切勿太商业化,急功近利。让我们一起为中国传统文化尽绵薄之力,别让我们下代看到的飞檐翘角,精美绝伦的古建筑只能在古装电视剧或者极少的景区里,更不能看到日韩等的和式建筑和其它类建筑认为是属于我们的建筑!