
近日,潍坊四月份房价出炉,你还没有买房子吗?快来看看吧,200+热门小区二手房价格公布...
潍坊四月二手房价格出炉
潍坊4月份二手房环比上月上涨1.12%

二手房4月均价 7380 元/㎡,二手房3月均价 7298 元/㎡,环比上月上涨↑1.12%,同比去年同期下跌↓1.23%。
四月份二手房高新区拔得头筹,均价8236元/㎡


不出所料,4月份,潍坊房价最高的仍然是高新区,二手房均价:8236 元/㎡!临朐、诸城、奎文、高密房价7千+,最低房价依然是滨海区4120元/㎡!
200+潍坊热门小区的二手房房价
>>>>
高新区4月二手房房价泰和上筑最高,达到11375元/㎡




>>>>
奎文区4月二手房最高价为德润康城,达到11420元/㎡




>>>>
经纪开发区四月份二手房五洲花园最高,达到8150元/㎡





>>>>
坊子区4月份二手房凤栖墅1号最高,达到11581元/㎡





>>>>
寒亭区4月份二手房名门新筑最高,达到7438元/㎡




>>>>
潍城区4月份二手房茂华紫苑公馆最高,达到7828元/㎡





备注:数据整理自房天下网站,数据仅供参考,以实际为准哦!
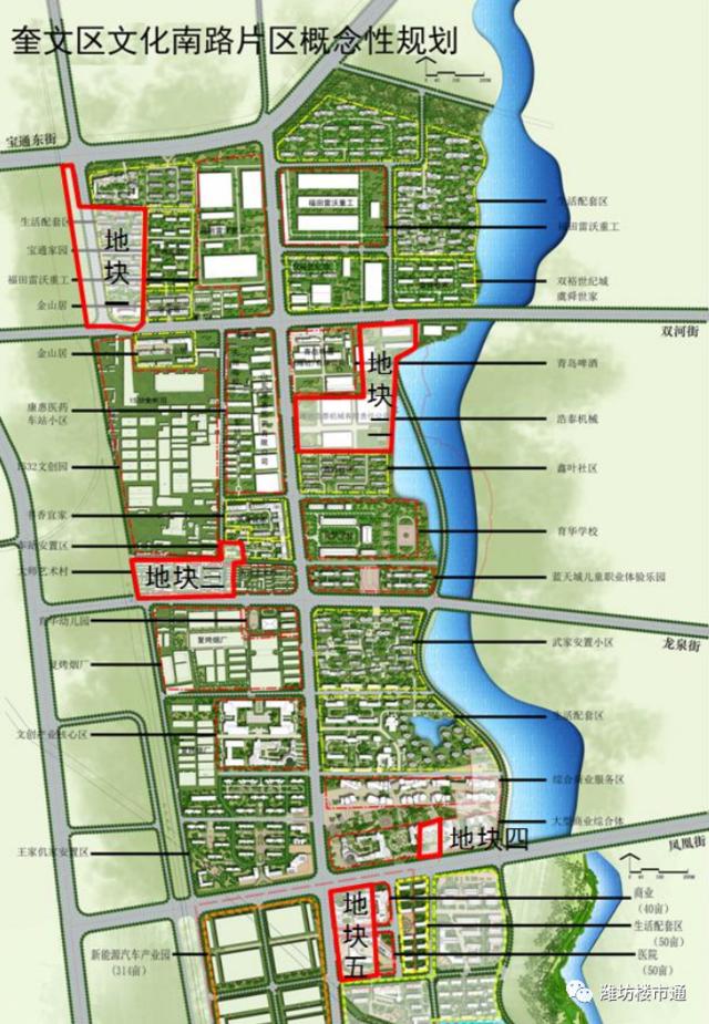
近日,潍坊市中心5块地迎来*迁拆**
奎文区住建局发布招标公告
将对文化南路片区土地进行征迁,土地收储

据悉,本项目为奎文区文化南路片区土地熟化二期项目,对该片区土地及地上附着物进行征迁,土地收储。
本次项目共5个地块,预算金额7.4亿元

项目共包含五个地块,总预算金额约为7.4亿元,资金已落实,土地熟化期限为2020年5月至2021年12月。
五个地块情况公布
地块一
地块位置:
宝通街以南,金宝街以北,胶济铁路坊子货运支线以东,宝通家园、金山居项目以西。
基本情况:
*迁拆**顺通路筑机械厂、山东鑫祥网毯织造有限公司、中国网通潍坊市分公司奎文电话局南环分局等企业房屋面积约22100平方米,收储东王村、南屯集体土地约20亩。
熟化面积:约130亩
费用预估:1.6亿元
地块二
地块位置:
文化南路以东,金宝街以南,虞河以西,鑫叶社区以北。

基本情况:
拆除浩泰机械现状厂房约4.8万平方米。
熟化面积:约150亩
费用预估:4亿元
地块三
地块位置:
奎文区胶济铁路坊子支线以东、车站二街以南、车站东路以西、车站三街以北及车站东路以东、书香宜家以南、育德苑一期及车站旧村以西、车站三街以北。

基本情况:
*迁拆**车站片区公管房、邮储银行、鑫叶医院、二建公司宿舍、铁路局宿舍等老旧建筑约1.2万平方米。
熟化面积:约70亩
费用预估:0.7亿元
地块四
地块位置:
文化南路以东,凤凰街以北,虞河以西。

基本情况:
*迁拆**利坤木业厂房约2500平方米。
熟化面积:约10亩
费用预估:0.1亿元
地块五
地块位置:
奎文区文化南路以东、凤凰街以南、鲁鸿泰华.兰亭序小区以西、龙田街以北。

基本情况:
*迁拆**冠通铁塔、新东方检测线、华诺服饰、长城复兴门窗等企业厂房约1.5万平方米。
熟化面积:约80亩
费用预估:1亿元
来源:天天潍坊、潍坊楼市通