
APP Store 排名第一的家居杂志

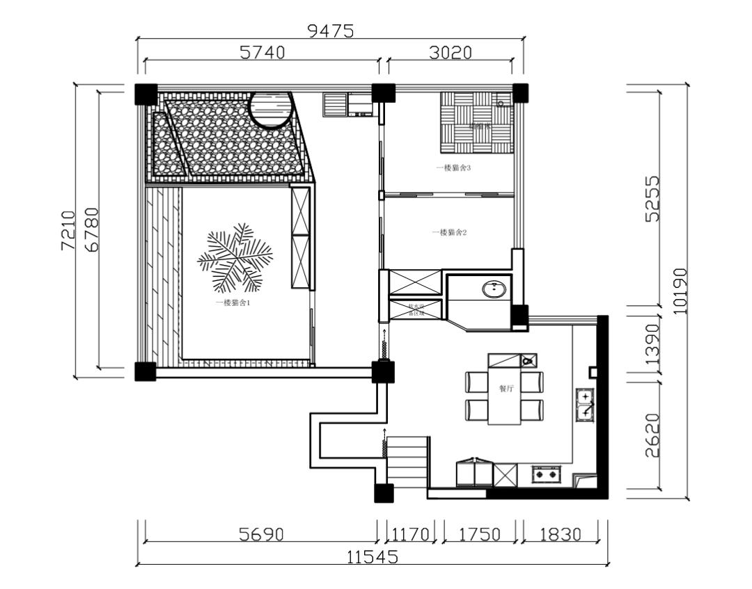
萌宠也是家庭中的重要成员之一,因此在做室内设计时不能轻忽它们对于空间功能的需求。
这间治愈系的日式风格住宅中,协调了人猫两者的居住偏好,在提供舒适宁静的宜居空间的同时,为猫咪预留了大块的活动场域,细节中兼顾猫咪的生活习性。

屋主是标准的“猫奴”,在提出设计需求时,他把猫咪的空间使用感受放在了重要的位置。
另外,屋主本身偏爱日式风格,因此设计师投其所好,利用大面积的原木搭配简约的白色,在空间内塑造温馨的日式生活场景画面。
客厅内的家具尺寸小巧,线条利落简洁,从而释放出更多的“空白”区,让空间看起来宽敞明亮,而中心的几何渐变地毯,又适当的为空间“加料”,形成丰富的视觉层次。

客厅摈弃了传统的客厅三大件,用无装饰白墙代替了电视、电视墙、电视柜,与简约的空间风格更为贴合,同时也可以作为投影墙使用,满足屋主日常的娱乐需求。

客厅角落处的楼梯采用悬空木板设计,保证了楼梯本身的功能性,也给整个空间增加了层次感。

开放的用餐区扮演着隔离厨房与客厅的重要角色,自然的过渡,在强调功能分区的同时,又不会割裂空间。
整个用餐区全部是原木材质,营造出充满统一感的空间画面,以及温馨的用餐氛围。

白色小方砖与原木的搭配,堪称经典,打造清新舒适的日式厨房风格,同时通过超大空间吊柜、超大操作台的设置,使得整个厨房空间通透明快,且便于日常备餐操作。

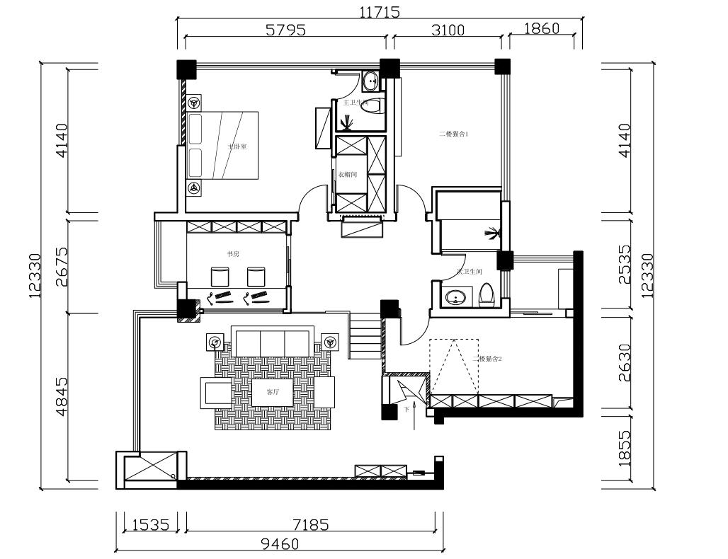
卧室减少了多余的装饰,回归纯粹本真。原木床和床头木柜,设计简约,凸显温馨宁静的空间风格。
窗边的懒人沙发,方便移动灵活性高,且散发出慵懒的气息。

卫浴间是整个住宅内唯一的一处深色空间,大量铺贴的深灰色仿古砖,不仅迎合了卫生间的私密属性,还方便日常清洁。
洗手台一侧的墙面和置物柜改用木纹元素,以此与其他区域保持呼应关系。

书房内设置了一整面的置物柜,里面规整地陈列着屋主的手办收藏,成为空间内的一种装点。
半墙与玻璃隔断的设置,配合大落地窗,将阳光引入室内,制造开阔的视野。
屋主在书房里也不忘设置布偶猫的休息区,看书困倦之余,可随时和自家爱猫互动游戏。

走廊采用日式移门作为隔断,并采用了长搁板,不仅减少了面积的浪费,也增加了使用功能性,既可摆放书籍、摆件,亦可作为布偶猫与屋主的休憩之处。

猫咪活动区摆设了一株供猫攀爬的“樱花树”,满足了猫咪好动的习性,又兼顾了日式风格的造型需求。

成都宏福樘装饰有限公司成立于2013年12月,是一家以设计为主施工为辅的「设计型」家装公司,设计费定价为80-200元/㎡具有极高品价比。
公司聚焦设计呈现、施工辅助落地具有强大的原创设计力200+套原创实拍落地案例为证。提供包括全案/软装设计施工、主材/软装代购在内的室内装修服务,承接成都本地乃至于全国设计服务。
服务对象主要是「对生活品质有要求」看重功能/颜值/认可设计价值的8090后年轻群体。作为口碑型家装公司,我们把「客户体验」放在首位,公开接受所有客户的透明监督网络累积口碑达2000+,连续三年在大众点评渠道做到成都本土排行前三。
主案设计师:康平
设计公司:成都宏福樘空间设计
编辑:Yan
PChouse家居杂志
版权所有 · 盗版必究
欢迎转载 · 注明出处

020-38172888-8123
PChouse家居杂志商务合作
020-38178288-4096