
1中国富春江畔的船屋

本项目是杭州富春开元芳草地乡村酒店的一组特色船屋客房。坐落在建德富春江畔,梅城古镇东约五公里处,而船屋则“漂浮”在酒店30亩湖面西岸。



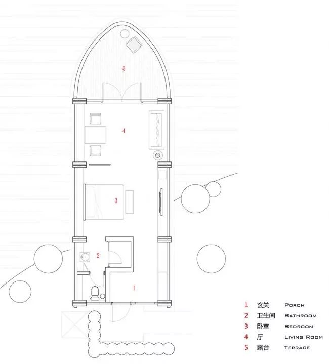
“船屋”的概念和形态,源自当地的古老风俗。明初至清中几百年间生活在这里的水上部落–“九姓渔民”,形成独有的船居文化。五艘船屋横斜在树冠之间,船身三分之二飘在湖面上,轻盈灵动。作为酒店客房,船屋也成为当下一种独特的居住体验,在50平方米的空间内,岸上的船尾作为入口玄关和卫生间。中间顶部设置天窗成为室内的景框,天光树影共徘徊,时而有飞鸟掠过。船头整面落地窗,即使坐在沙发上亦可感受烟波浩瀚,站上延伸至湖面的超大露台靠着麻绳网栏杆,凭栏远眺,野旷天低树,夜幕降临,江清月近人。

船屋结构采用木结构体系,是场地环境的需要,也是对传统蓬船同宗同源的延续。结构构件由工厂预制后再现场组装,船屋主体由插入湖底淤泥中的钢管桩提供支撑。施工现场无湿作业无扬尘,清洁简单高效,是保护生态环境的最佳建造方式。

▼船屋近景


拱形的船身结构,由四组三铰拱木拱梁通过五根圆木连接为整体,每组三铰拱由左右两个对称半拱吊装拼接,而每个半拱又由两道十一公分宽的北美花旗松胶合拱梁组合成,拱顶的小交叉真实反应拱结构的对接特征。采用三铰拱的形式,避免了木材因过度弯曲而产生超限的应力。整个屋面系统保持在拱梁的厚度之中,内部红雪松挂板使用水性清漆保持原木纹理和触感,外部使用了三种尺寸的红雪松木瓦上下微错的铺装方式,质感自然。
▼结构解析


拱空间天生的方向性,引导了结构的序列和节奏,建筑内外清晰可见拱梁和圆木构成的完整结构体系。显而易见的结构逻辑和去装饰化设计,展现建筑的结构美学和空间张力。
▼建筑细节


江南之美,甲于天下。乌龙山泉汇聚而成烟渚湖,湖面如镜倒映船拱,比天空还要宁静,躺在船屋中,望着星空入睡,是何等之美,和着雨声入眠,又是何等之空灵!春水碧于天,画船听雨眠,是尘世中的诗意栖居。
▼内景


▼夜景




▼总平面图

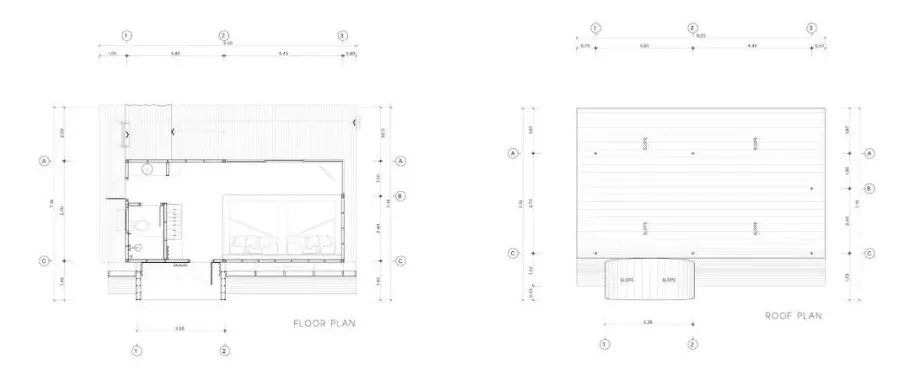
▼平面图

▼墙身详图

▼富春江老照片

▼船屋水彩,金拓绘制

2
泰国筏式酒店

Z9度假酒店位于泰国西部,总建筑面积约3100平方米,该酒店运用可持续发展的设计理念,打造一个自然风格的筏式住宿体验。


整个酒店的设计,以人的自然体验为灵感,围绕东南亚的度假氛围而展开,突出建筑与环境的融合,客房设于水上,让人与水更亲近,体验静谧的水上生活与诗意。


每个建筑的形状和色调与周围的环境完美融合, 大堂的设计基于月球方向,客人可以享受令人惊叹的“日出和日落”景观。
当然,在这里还可以拍摄到壮美的蓝光时刻与星空大片,完美的假期体验,源于自然,忠于纯粹。





Dersyn studio设计的Z9度假村为客人提供了充分享受自然环境的机会,以“3R--再利用,减少和再循环”的概念为宗旨,独特的理念完美融合到整个项目的设计及施工过程中。









首先关于“再利用”方面,设计师通过采购当地废弃木材实现了“再利用”的理念,这些废弃木材通过压缩变成图案丰富的木块,用在天花板上,体现了很好的自然属性。





其次,关于“减少”的理念,设计师为了减少度假村在陆地上的物理痕迹,将结构延伸至水中,这一决定最大限度地减少了被挖掘的土地,从而很好的保护了土壤。
房子都是在轻质钢结构的基础上,进一步减少了与陆地的接触,与其他建筑方法比如混凝土相比,轻钢结构的施工更快,更简洁。






最后关于“再利用”方面,体积庞大的旧木材在经过改造之后被应用于室内家具。
此外,酒店排放的废水将在闭路循环水系统中得到处理,而非排放至湖中,这将使客人们能够惬意地享受水上活动。


设计图纸
▽




(来源:拙觉,仅限于非商业性信息传递之用。如有侵犯您正当权益,请联系我们,我们将在最短时间内删除,并致以歉意。)