时代招商天禧地处佛山市大沥中央生活区,大沥位于广佛都市圈核心区,向东连接广州市荔湾区,向南接壤佛山南海千灯湖。是广州向西第一站,也是千灯湖北延过河第一站,是整个广佛同城发展的“桥头堡”,也正是因为得天独厚的地理区位,
![[大沥时代招商天禧]加推95-115方三四房现认筹即可享受开盘9.6折](http://static.288300.com/origin/pgc-image/a5d9be2a120c47bd9f2fcba46ce7a741.jpg)
佛山市政府对标广州的珠江新城中轴打造了千灯湖中轴线,为大沥规划了南海之眼、南海之门等重大利好配套。让大沥得以同时享有广佛同城和千灯湖北拓未来十年的发展红利,对标国内外先进城市的一流区域,迎来新一轮腾飞。同时经过多年的经济发展,大沥目前的交通和生活配套都已经非常成熟,已有超过65万人在此定居
![[大沥时代招商天禧]加推95-115方三四房现认筹即可享受开盘9.6折](http://static.288300.com/origin/pgc-image/5cfd6e4efb3c4fb8afa58d8dd9edd82c.jpg)
— —✦时代招商天禧✦— —
‼️超低首付25万起‼️
‼️超低首付25万起‼️
区位最核心
✅广州向西第一站,东接荔湾
✅雄踞广佛中轴上,千灯湖旁
项目名称:时代招商天禧
项目地址:佛山南海区大沥镇太平(大沥政府旁)
️总用地面积:4.4万方
️户型:约 95- 129方三到四房(带精装)
️ 在售:10栋、12栋
️ 均价:16000元起
建筑面积:18万㎡
产权年限:70年
项目总户数:1104 套
车位数量:1232 个
物业公司:时代物业管理公司(国家一级资质)
物业管理费:2.7元/㎡
收楼时间:2021年5月18日
容积率:A区3.0,B区2.5
绿化率:A区:≥25%,B区:≥25%
【项目效果图】
![[大沥时代招商天禧]加推95-115方三四房现认筹即可享受开盘9.6折](http://static.288300.com/origin/pgc-image/69cf41f3d6f34a2fb97b7e267cab466c.jpg)
【四大必买理由】
1⃣ 时代中国,招商蛇口,双强联袂,共同打造广佛人居新标杆—时代招商天禧。
![[大沥时代招商天禧]加推95-115方三四房现认筹即可享受开盘9.6折](http://static.288300.com/origin/pgc-image/89913a3935bb4fb69259666a1cd06763.jpg)
2⃣ 区位核心 — 位于佛山各核心区位几何中心,15分钟千灯湖,15分钟佛山西站,20分钟到禅城,30分钟到达广州市中心。
![[大沥时代招商天禧]加推95-115方三四房现认筹即可享受开盘9.6折](http://static.288300.com/origin/pgc-image/038d8d99ca4d4940a8d53a38c1e2a38e.jpg)
3⃣ 价格洼地 — 相比于狮山、沥桂新城、禅城、桂城、金沙洲等片区,大沥主城区价格最笋,距离千灯湖仅15分钟车程,价格仅1/2灯湖价,处于价格洼地。
![[大沥时代招商天禧]加推95-115方三四房现认筹即可享受开盘9.6折](http://static.288300.com/origin/pgc-image/37359f62976c46d9bde157e10104045d.jpg)
4⃣ 首开最笋 — 首开必特价,特价必升值,毛坯价格买精装,抢沥城芯精奢艺术住区。
【项目区域图】
![[大沥时代招商天禧]加推95-115方三四房现认筹即可享受开盘9.6折](http://static.288300.com/origin/pgc-image/3b32bdcb565c48a8a745813ce6723eba.jpg)
【地段优势】地处大沥核心位置,临近大沥政府,周边配套成熟丰富。具体详情见下
■邻近巴黎春天、永旺梦乐城等大型商圈,享百万方商业配套;
■3公里范围内8所优质名校,石门实验中学、许海中学等省级学府旁;
■近享多样化生态/休闲娱乐配套,大沥体育公园、网球场、足球场等;
![[大沥时代招商天禧]加推95-115方三四房现认筹即可享受开盘9.6折](http://static.288300.com/origin/pgc-image/f0e83a7fb3c84f468d251b8bea4edd08.jpg)
【周边配套】
⭐️【商业配套】项目1⃣0⃣分钟范围内涵盖各大商业,包括中盈国贸中心(在建)、鸿得利美食广场、南海新都会购物中心、兴沥雄广场、伟业兴隆广场、巴黎春天步行街、宝盈购物广场、大沥永旺梦乐城,吃喝玩乐一应俱全。
![[大沥时代招商天禧]加推95-115方三四房现认筹即可享受开盘9.6折](http://static.288300.com/origin/pgc-image/d19f9dba00b640f98151f2aaf963067d.jpg)
⭐️【交通配套】
1⃣双地铁:规划中的佛山地铁5号线和8号线将在沥西站交汇。
5号线连接禅城祖庙及广州滘口。8号线连接机场及佛山西站。
2⃣立体交通:
项目拥有“三横三纵”立体交通网络
三横:广三高速、广佛路和广佛新干线。
三纵:佛山一环、佛山大道以及桂和路。
从项目出发15分钟即可到达千灯湖、20分钟到达祖庙,30分钟到达广州中心。
![[大沥时代招商天禧]加推95-115方三四房现认筹即可享受开盘9.6折](http://static.288300.com/origin/pgc-image/53fbe0830d7c418ba7b06884c4b8129b.jpg)
⭐️【教育配套】:项目周边教育配套资源丰富,涵盖太平成远小学,许海中学、石门实验学校等省一级学校。
![[大沥时代招商天禧]加推95-115方三四房现认筹即可享受开盘9.6折](http://static.288300.com/origin/pgc-image/f3c43d981d894f1e9e66becae13b5f79.jpg)
⭐️【医疗配套】:1公里即可到达二级甲等的佛山市南海区第五人民医院(南海大沥医院)
⭐️【小区配套】:小区设有五星级专业泳池、休闲阳光绿地、亲子儿童天地三大区域,不同年龄段的业主都能拥有丰富美好的户外公园
![[大沥时代招商天禧]加推95-115方三四房现认筹即可享受开盘9.6折](http://static.288300.com/origin/pgc-image/3b2eb9358922450e90f113c329340da9.jpg)
![[大沥时代招商天禧]加推95-115方三四房现认筹即可享受开盘9.6折](http://static.288300.com/origin/pgc-image/cb207e5f0ed04b81abe99df46f4295d4.jpg)
【商铺分布图】
![[大沥时代招商天禧]加推95-115方三四房现认筹即可享受开盘9.6折](http://static.288300.com/origin/pgc-image/6072018d4aa84600a63019a4fff160de.jpg)
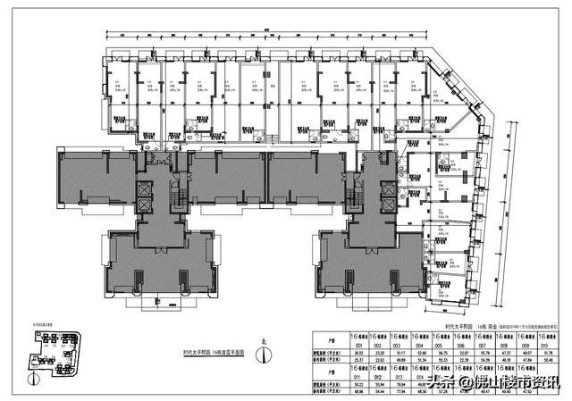
【户型推介】
![[大沥时代招商天禧]加推95-115方三四房现认筹即可享受开盘9.6折](http://static.288300.com/origin/pgc-image/4d62d981283e4b9b8379154836cb9d11.jpg)
![[大沥时代招商天禧]加推95-115方三四房现认筹即可享受开盘9.6折](http://static.288300.com/origin/pgc-image/e70439c0faeb4fcaad522c7074b04049.jpg)
![[大沥时代招商天禧]加推95-115方三四房现认筹即可享受开盘9.6折](http://static.288300.com/origin/pgc-image/d565dd678ff844b0aa2032a370a62cec.jpg)
![[大沥时代招商天禧]加推95-115方三四房现认筹即可享受开盘9.6折](http://static.288300.com/origin/pgc-image/672e908c2d66450e9098cd281015a8df.jpg)
![[大沥时代招商天禧]加推95-115方三四房现认筹即可享受开盘9.6折](http://static.288300.com/origin/pgc-image/a48a74aaaff7453ab946aea9ef416df6.jpg)
![[大沥时代招商天禧]加推95-115方三四房现认筹即可享受开盘9.6折](http://static.288300.com/origin/pgc-image/adbe37920d4043a4ae3cbf799b457421.jpg)
![[大沥时代招商天禧]加推95-115方三四房现认筹即可享受开盘9.6折](http://static.288300.com/origin/pgc-image/424e594f97f74c929d7eea6195995279.jpg)
【样板间】
![[大沥时代招商天禧]加推95-115方三四房现认筹即可享受开盘9.6折](http://static.288300.com/origin/pgc-image/cf5383df5bb0446aa1efc3427c6013a7.jpg)
![[大沥时代招商天禧]加推95-115方三四房现认筹即可享受开盘9.6折](http://static.288300.com/origin/pgc-image/9d785f0b329f48edbc9b400d584989ee.jpg)
![[大沥时代招商天禧]加推95-115方三四房现认筹即可享受开盘9.6折](http://static.288300.com/origin/pgc-image/a10735aa74e34fcca900526eac324890.jpg)
![[大沥时代招商天禧]加推95-115方三四房现认筹即可享受开盘9.6折](http://static.288300.com/origin/pgc-image/608415e9e387488dbe92c26ba72d9a22.jpg)
如果您对此楼盘感兴趣,点击关注我——>@佛山楼市资讯
为你了解更多房产专业知识,房产交易,房产投资,楼市分析。
欢迎私信咨询,了解更多楼盘优惠折扣,让不同人买到合适的房。