
院子的门开着
香片随着心事
向杯底沉落
茶几上
烟灰无非是既白且冷
无非是春去秋来
——洛夫《有鸟飞过》(节选)
日益丰盛的生活中,喧嚣与繁忙交织不停,都市菁英在寻找着安静闲适、放松自我的一个空间。家的本真意义,便是打造成繁忙之外属于自身的一个舒适圈,漫溢着舒缓安宁、平和畅达的气息,是一个完美契合自身生活方式的地方。
“我们希望营造疏朗雅静的氛围,将空间打造成具有认同感的精神领地,成为居住者生活上舒缓精神的主导者,令设计的艺术美融入环境,令体验带动居者享受生活的闲雅与安适”,这是设计师赋予该项目软装设计的格调与定位。



客厅
创时空将对于家的期待转译成设计的语汇,选用素白色的极简法式背景墙、水波纹理石饰面来定义空间的清雅柔和,雅致的雾霾蓝与格纹轻轻地挑起空间的韵律美感,搭配纯白花艺,空间附着着一层恰到好处、不过于浓郁的浪漫情调。阳光透散过微透的纱帘为空间染上一抹暖意,令人们不觉沉溺于韶华中的闲适与安缓。



餐厅
半开放式的厨房设计,自由切换中西厨模式,小型中岛柜补充更多的收纳空间,家人在这里一同料理,加载出更多亲昵的生活场景。餐厅以围合的简式餐桌椅、纯净的水晶灯饰、精致的餐具与花艺,打造温馨喜乐的就餐氛围与生活的仪式感。




茶室
诗意绵长的茶室是家屋里一处可烹茶会友的小天地,其间的闲趣不言而喻。收藏架上摆放着各式福建建盏,散溢着古朴而素雅清冽之感,花果沁香,茶香浓郁,为生活加入了些许清雅况味



主卧
主卧设计选用亚棕色的基调,渲染着雅澹的居室氛围,木质、合金、软包材料的运用增加了质感的丰富性。空间内的美感由饰面上的纹理一层层地延展开来,仿佛协奏着一首古典钢琴乐曲,曼妙而舒缓身心。




书房
一桌一柜,还有一窗连接自然,造型奇特的灯饰与艺术品,点缀空间简雅与时尚的艺术格调。在这样简净风格的书房中放松自我,可以随时拥抱生活的随意与闲适。


长辈房
长辈房的设计选用亚麻色、灰蓝这些相对柔和的色调,契合老人家舒惬享老的生活心态。舒适亲肤的床品、精致的艺术饰件、甘甜芬芳的插花,营造亲和淳朴、安享自身的生活氛围。



儿童房
儿童房是宇宙太空的科幻主题,带有灰调的蓝色在空间中以丰富的层次、不一的功能呈现展演,更为耐看的陈设色调可以经得起小男孩心智的成长变化。随处可见的STARWARS周边、月球造型钟表和灯、太空舱床头柜与发光背景,搭载着小朋友稚嫩而精彩的梦,空间变得美好而富有童趣,是童年最为美好的生活馈赠。

推门走出庭院,蓊郁竹林的绿色,与吊椅的纯白色无间而自然交融了起来,随意地吸收着慵懒的阳光,人在与自然的交叠中舒缓而不疲惫,在平凡而真切的居室中感受着美好,一切都落得闲适静宁。
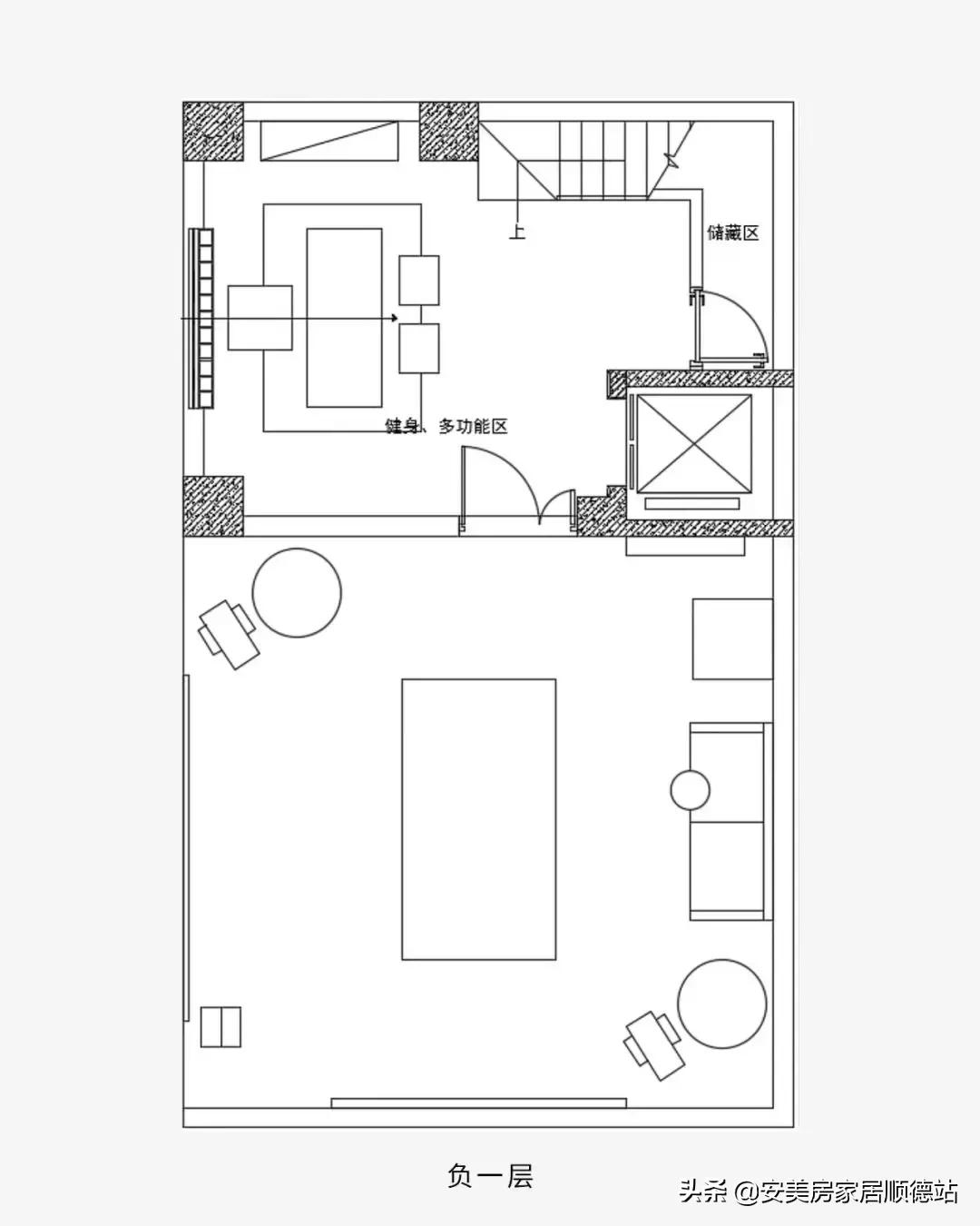
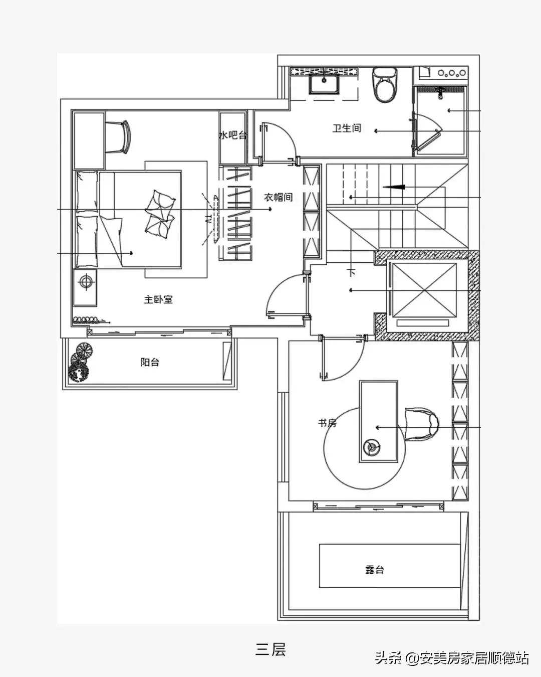
▼ 平面图




更多家居设计相关内容可点击关注小编:AMF-0001