烟台市自然资源与规划局近期公示一批房地产、道路、学校以及工业项目,其中,涉及芝罘区5大房地产项目,福山将建东方剑桥外国语高级中学。
付家B地块东侧规划建6万平米商住楼
芝罘区中心区寸土寸金,本次规划中的5个房地产项目均位于芝罘区南部,沿通世路、机场路以用卧龙区域。
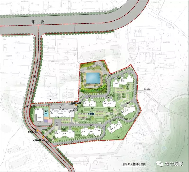
其中,喜乐酒店及其以南、桑园路以东A地块规划建筑设计方案显示,项目的建设单位为烟台海创佳兴地产有限公司,A地块规划地上建筑面积38100平方米,其中住宅35656平方米,公建2444平方米。规划地下建筑面积14550平方米。从平面图上看共4栋11层小高层3栋9-10层小高层1栋5层多层。西南角建设一栋3层的幼儿园。

喜乐酒店

喜乐酒店
烟台明珠山庄置业有限公司《建设工程规划许可证》核发公示显示,明珠山庄4#楼、11#楼位于芝罘区通世路以东、红旗中路以南,建设规模为总建筑面积2790平方米。规划4#楼一栋,地上一层,建筑面积2524平方米;11#楼一栋,地上一层,建筑面积266平方米。

明珠山庄
付家B东侧地块《建设用地规划许可证》核发公示显示,该项目位于芝罘区蓁山路以西、付家B地块东侧,项目的建设单位为烟台市城渝房地产开发有限公司,用地性质,居住兼容商业,共用地面积约36253平方米,新建建筑面积约59730平方米 , 其中地上建筑面积约41267平方米。
荆山路以北、勤河以西B地块《建设用地规划许可证》核发公示内容显示,位于芝罘区机场路以东,荆山路以北,勤河以西,为荆山路以北、勤河以西B地块,建设单位为烟台悦璟房地产开发有限公司,用地性质为居住兼容商业、商务用地共用地面积约17216平方米,规划地上建筑面积61000平方米。

荆山路以北、勤河以西B地块
山水龙城超级大盘配建2600平米养老用房
记者此次报道过的芝罘区的超级大盘山水龙城,5月24日-7月5日对部分区域《建设工程规划许可证》核发公示内容,公示的建设规模是:总建筑面积1906561.5平方米,其中地上1426282.5平方米(包括住宅1236555平方米、公建189727.5平方米),地下车库及设备用房480279平方米。体量相当可观了。
近期,对具体楼盘内容进行了公示。E区1#、2#楼《建设工程规划许可证》核发公示显示,E-1#楼地上17层,裙房1层,地下1层,总建筑面积8363平方米,其中住宅7592平方米,商业482平方米,物业管理用房289平方米。
E-2#楼,地上17层,裙房1层,地下1层,总建筑面积8420平方米,其中住宅7592平方米,商业517平方米,物业管理用房211平方米,居委会100平方米。

E区1#、2#楼
C区5#、6#楼《建设工程规划许可证》核发公示显示,C-5#住宅楼为地上20层,地下1层,建筑面积16104平方米,其中地上住宅15196平方米,地下设备夹层908平方米。C-6#商住楼地上30层,裙房1层,地下1层,建筑面积17538平方米,其中地上住宅14806平方米,商业1654平方米,物业管理用房480平方米,公厕50平方米,地下设备夹层548平方米。

C区5#、6#楼
05区21#楼《建设工程规划许可证》核发公示显示,山水龙城05区21#楼规划总建筑面积5550平方米,其中地上建筑面积5550平方米,包括物业管理用房1500平方米,社区卫生服务中心1400平方米,养老服务用房2600平方米,公厕50平方米。

05区21#楼
青年南路以西将建爱康和园老年中心
随着芝罘区产业布局的发展,记者从规划公示中看到,南部新城也布局了一些涉及科技、医疗健康的产业园区。
爱康和园老年中心《建设用地规划许可证》核发公示内容显示,爱康和园老年中心位于芝罘区青年南路以西,下曲家水库以北,建设单位为烟台爱康和园颐养健康服务有限公司,用地性质为社会福利用地。共用地面积约18030平方米,新建建筑面积:约54302平方米 , 其中地上建筑面积约39930平方米。

爱康和园老年中心
烟台瑞东支付科技产业园《建设用地规划许可证》核发公示内容显示,该产业园位于芝罘区港城西大街以南、通世南路以东、通姜路以北,卧龙园区内,项目的建设单位为烟台瑞东信卓智能科技有限公司,项目的用地性质为工业。项目共用地面积约64432平方米,其中新建建筑面积约124020平方米 , 其中地上建筑面积约114928平方米。
莱山区建550米杜家跨线桥
近年来,随着烟台东部城区的不断发展,交通路网格局越来越密织,记者从公示中的道路设施方案中看到,莱山区将分别建设2.36公里的长安路南延、1.45公里的平顶山路二期两条道路,如此长距离的路网建设,势必带动周边楼市快速发展。
莱山区长安路南延工程《建设用地规划许可证》核发批前公示显示,长安路南延工程位于莱山区,北起轸大路,南至金斗山路。建设单位是莱山区住房和城乡建设局,用地性质为城市道路用地。
规划总用地面积约22.59公顷,其中公共绿地用地面积约10.17公顷。道路全长约2.36公里(含杜家跨线桥项目约0.55公里),道路红线宽度50米(其中杜家跨线桥宽54.5米),道路两侧绿化带12-35米。

莱山区长安路南延工程
莱山区杜家跨线桥规划建筑设计方案批前公示显示,莱山区杜家跨线桥位于莱山经济开发区,杜家村以北,明达东路以南。该项目上跨绕城高速路,下穿青烟威荣城际铁路。跨线桥长约550米(其中主桥部分长约67米),桥宽54.5米,坡度为2.31%,桥下净高5.5米。

莱山区杜家跨线桥规划
莱山区平顶山路二期道路工程《建设项目选址意见书》核发批前公示显示,莱山区平顶山路二期道路工程位于莱山区,北起平顶山路,南至港城东大街。建设单位:烟台市莱山区住房和城乡建设局

平顶山路二期道路工程
道路规划为城市支路,全长约1.45公里,道路红线宽20米。道路横断面设计采用一块板形式,车行道为双向二车道加非机动车道,规划总用地面积约2.9公顷。
逛荡河以南规划建11栋住宅
国泰海韵华府A地块工程《建设工程规划许可证》核发批前公示显示,国泰海韵华府A地块位于莱山区双河东路及逛荡河以南、轸大路以北、学府小区以西、金滩南路以东。建设单位为山东国泰大成房地产开发有限公司,用地性质为住宅、商服、公共管理与公共服务用地
建设规模1-11#楼共11栋,总建筑面积108660平方米,其中地上约77000平方米,地下车库建筑面积约31660平方米。

国泰海韵华府A地块工程
烟台民建科技创新中心规划规划设计方案公示内容显示,该项目位于烟台市总部经济基地,莱山区五卒山北路南侧、山海路西侧。建设单位为烟台民建物业管理有限公司,用地性质为商务设施用地建设规模一栋,规划总建筑面积28950平米。
福山将建东方剑桥外国语高级中学
福山区引人关注的就是惠礼富城,也就是老岚水库回迁安置区项目了。烟台通元投资有限公司《建设项目选址意见书》核发批前公示显示,老岚水库回迁安置区位于福山区回里镇204国道以南、谭家庄村东北侧,建设单位是烟台通元投资有限公司,用地性质:居住用地,用地面积为80316平方米。
教育设施方面,烟台东方剑桥外国语高级中学《建设工程规划许可证》核发批前公示,福山区河滨南路以西、聚福路以东、汽车工程职业学院以南将建烟台东方剑桥外国语高级中学。建设的单位为烟台东方剑桥教育投资有限公司,用地面积为99800平方米,建设规模为60972.39平方米。

烟台东方剑桥外国语高级中学
根据此前媒体报道,东方剑桥择址福山建设新的教育园,涵盖本科教育、职业教育、基础教育、学前教育及健康养老,真正实现“全程教育”。东方剑桥烟台教育园第一期工程包括教学楼、宿舍楼、餐饮中心等共计5个单体建筑,以及足球、排球、篮球等户外运动场地。一期项目预计总投资约4亿元,计划于2021年投入使用,填补了福山区无本科院校的空白。
回里镇规划建山东烟台国家粮食储备库
福山区在近期公示中工业项目密集亮相,其中,物流仓储项目集中。
烟台传化公路港物流有限公司《建设工程规划许可证》核发批前公示显示,福山区林门路以东、丽水东路以南、规划路以西、玉门路以北建传化公路港物流公司的仓库及附属设施,总用地面积118593平方米,本次建设规模52567.69平方米
联东U谷•福山生态科技谷《建设用地规划许可证》核发批前公示显示,联东U谷·福山生态科技谷位于福山区金裕丰路以南、钢厂路以北、规划路以东,建设单位为烟台联东金赢实业有限公司,规划总用地面积73045平方米。
山东烟台国家粮食储备库《建设工程规划许可证》核发批前公示显示,位于福山区回里镇鸿达街以北将建山东烟台国家粮食储备库,总用地面积81615平方米,建设规模12816.2平方米。

国家粮食储备库
山东上汽汽车变速器有限公司《建设工程规划许可证》核发批前公示显示,福山区永达街以北建上汽汽车变速器有限公司厂房及附属设施,总用地面积116423平方米,建设规模:2291平方米。
烟台永弘机械有限公司《建设工程规划许可证》核发批前公示显示,位于福山区双龙路以东,建设单位为烟台永弘机械有限公司,建设厂房及附属设施,总用地面积25102平方米,建设规模:5700.37平方米。
爱灸堂将在牟平建设厂房
高新区及牟平区公示的项目,大多是产业园。记者看到,项目涉及电子、光电等新兴产业。
烟台西安电子科技大学烟台产业园项目《建设工程规划许可证》核发批前公示显示,烟台西安电子科技大学烟台产业园位于火炬大道南,海澜路东,建设单位为烟台西电科大科技园有限公司用地性质工业,建设规模:74304平方米

烟台西安电子科技大学烟台产业园项目
谛源光科总部研发生产基地(一期)项目《建设工程规划许可证》核发批前公示显示,谛源光科总部研发生产基地(一期)项目1#-4#厂房位于高新区创新路南,经三路西,建设单位单位为烟台谛源光科有限公司,规模为85235.04平方米。

谛源光科总部研发生产基地(一期)项目
东仁杰奥生发护发用品及绿色日用清洗剂研发生产基地,1#厂房,2#厂房项目 《建设工程规划许可证》核发批前公示显示,该项目位于高新区经七路7号,建设单位为烟台东仁杰奥生物科技有限公司,用地规模为17695平方米,建筑规模为30778.73平方米。

东仁杰奥生发护发用品及绿色日用清洗剂研发生产基地
山东爱灸堂健康产业股份有限公司3#厂房《建设工程规划许可证》核发批前公示显示,牟平区新城大街以北、垛山路东,由山东爱灸堂健康产业股份有限公司建设3#厂房,用地性质:工业,建设规模:2163.89平方米。

山东爱灸堂健康产业股份有限公司3#厂房