关内还有如此干净的储备用地?
风雨飘摇下,深圳楼市中考放榜。
顶级豪宅与商务公寓是2016深圳楼市上半程的赢家。从区域板块上看,龙岗拿下了成交量的冠军,而福田南山则录得了逼近8万元的成交均价。
个盘方面,万科云城一举拿下上半年的商业项目成交面积与成交套数双料冠军,壹城中心则拿下了住宅类的成交套数冠军。
鸿荣源壹城中心住宅类的冠军很好理解,万科云城商务公寓的王者背后隐藏什么秘密呢?楼兔子近期到访万科云城做了一个暗访,得到的信息比较意思。
关内最后的大块干净储备用地

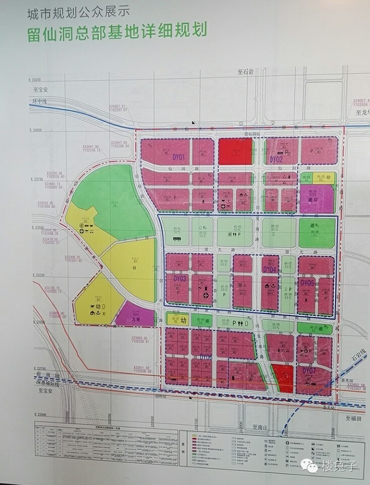
留仙洞总部基地整体规划图
首先谈一下万科云城地块的直接观感。
这是深圳关内极为罕见的大规模储备用地,整个地块非常干净。站在高楼往下看,万科云城去年开售的一期产品和即将推售的三期公寓,可以说是地块上仅有的建成住宅。
大部分土地还是裸露状态、长满野草,或者是少量低矮的临时建筑。
不到现场看,你绝对不能想象到,在与南山科技园和前海中心均在数公里距离内的深圳关内核心区,竟然还有这么一大块政府储备用地。
来自国土局的公开规划资料显示,万科云城所在地块属于西丽留仙洞总部基地。西丽留仙洞总部基地是深圳未来发展高科技自主创新区的主战场核心区,规划用地面积172万平方米,预计总建筑面积683万平方米。
这块储备用地,相比于原来的龙华二线拓展区19.8平方公里,那自然是区区一毛之地不足一晒。但是这种干净与高尺寸的规划,比二线拓展区更牛逼。
干净的大面积地块,给了楼市足够的想象空间。也许,购房者上半年蜂拥而入购买万科云城,以至于让万科云城登顶冠军,也正是看种了这一点。
预计投资110亿打造经济增长极

地块周边将会有4条地铁线环绕
正如上文所说,万科云城在整个西丽留仙洞总部基地目前还属于孤零零的建筑,但每一个到访者都非常有感触,这里的交通配套已经修建到位了。
宽阔的道路上,行车很少。连交通指示牌都非常完善,比如上面标注的打石一路、打石二路横穿留仙洞总部基地,在临近科创路的另外一侧,是已经在修建好了的深圳市第二高级中学。
有消息说,由万科代建的留仙洞学校也已经动工,引进清华大学附中的可能性非常大。
将来,这里的交通会更加方面。
根据规划,西丽留仙洞总部基地将有4条地铁线经过该片区,目前地铁5号线在此片区已经开通了留仙洞站,地铁7号线在此片区设置的茶光站,未来这一片区还将有地铁15号线和17号线经过,远期规划有惠深城际线。此外,旁边紧邻广深高速,南光高速和南坪快速,交通相当便利。
今年3月,政府已经规划投入6.57亿元,彻底打通、扩建科苑路,目的是将科苑路与现在的南山科技园彻底贯通。双向6车道的科苑路将成为南山南北向的一条“深南大道”。
整体来说,深圳政府已经筹备了至少110亿资金,准备砸向这片土地,区域土地的资金沉淀密度堪比福田CBD。政府投钱铺路,未来楼市前景看好。这应该是万科云城登顶冠军的第二个秘密。
关内最后的百万级产城综合体

政府有意让万科来打造首发产品
双料冠军的最终极*器武**,应该是万科倾心打造的百万级产城融合综合体,品牌铸就的信心与魅力。
从留仙洞总部基地总体规划可以看出,万科云城是整个基地的首发项目,也是奠基性质的项目。事关整个项目的成败,因而政府有意让万科来操作。这是一种肯定与信任。
万科云城占地面积占地面积达到39.4万㎡、总建面133.5万㎡,聚集了高端公寓和地标写字楼、星级酒店、时尚购物广场等业态。可以说是一组代表深圳的标杆建筑群,是一个全业态微缩城市。
在万科云城主建筑群的南北两面,由国内外25名顶尖级设计师联合设计的深圳首筑绿色生态体验场总占地19万平方米。地块北边的绿廊,拥有世界级的“万科云城建筑设计公社”,是未来创新产业核心区。南绿廊,是绿色休闲和餐饮以及社区营地等城市谷地。
由万科鼎力筹划的高尺寸、高品质先锋城市规划,注定了产品价值。上半年,万科云城实际销售面积43718平方米、561套,实现销售金额273383万元。应该说,绝大多数人因万科的品牌和万科的规划而掏腰包买单了。
下半年,万科云城三期将重点推售约135平米的4房2厅2卫。此款户型首次采用了万科经典横厅户型,开间尺度大,且户户南北通透,采光和通风也更优秀;与福田南山一手市场在售及即将销售的同面积段、同房型对比,本项目在尺度上优势明显。
在前期高配置的基础上,万科云城三期135平米4房进一步提升了精装部品的等级、品牌、覆盖率,全屋配置基本上是国际知名品牌。
项目预期售价单套800万至1000万间。会否延续上半年的销售神奇呢?

深圳第一个绿色生态体验场效果图