三、规则
关注:羽毛球发球新规要求发球时击球点的高度将不能超过1.15米。和以往发球不能过腰的规定相比,这个规定更加精准。以后文中所有“过腰”处改为“过高”(1.15米)。
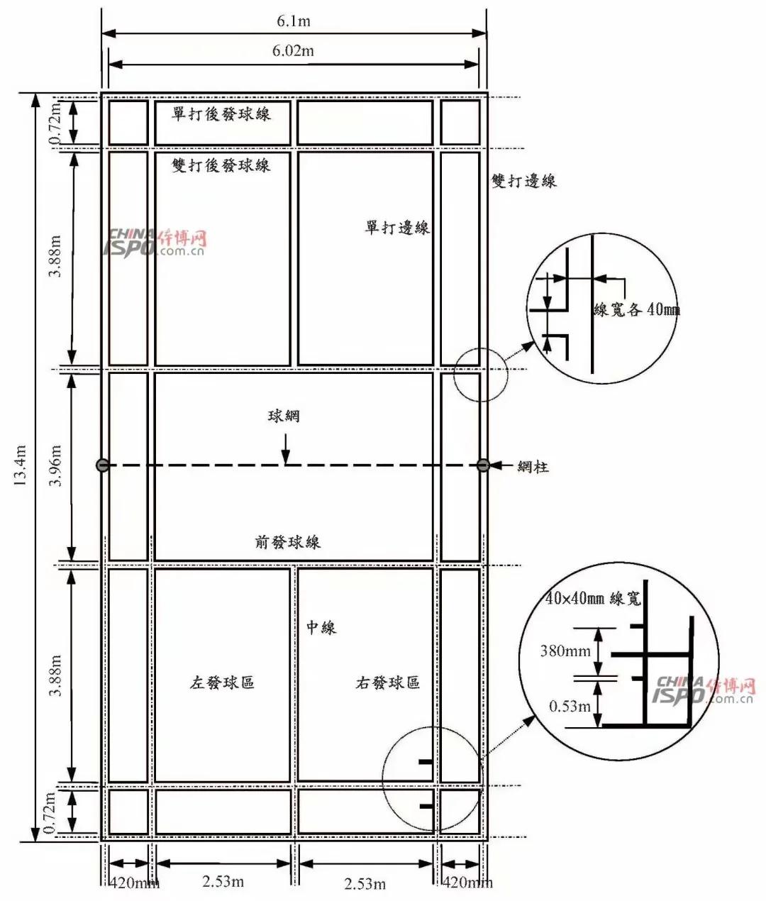
1、羽毛球场地 (1)搞清3条线:单双打的边界线、发球线、发球区线(包括球落区)。有些人不关注发球站位区,往往出区或踩线,这就违规。 (2)羽毛球网高,中间1.52m,两边1.55m。 (3)球落在边界线上任何部位都称“压线”,算“界内”。 (4)不管什么情况,球员的身体被打来球触及,都属失误丢分; (5)即使球出界或错区,只要碰到你的球拍,就视为击球; 观羽毛球比赛时,常见队员比划手势,那是指球发往的场区。羽毛球场地的分区划分: 1、2区前场 ,3、4区半场,5、6区后场 ,奇数内角, 双数外角。

为叙述方便,约定几个定义:
后边区——双打后发球线与端线之间位置称为“后边区”;
左右边区——单打左右边线与双打边线之间位置称为“左右边区”;
腰部——左右边区中间及稍里一点的位置称为“腰部”,是前后场队员都够不着的地方;
中路——两人的结合部称为“中路”,在左右站位时,中线附近为中路;
到位——把球发到或打到后发球线附近或后边区但又不出界,叫“到位”;
过顶——打平高球或高远球时,让对方举拍够不着不能拦截的高度,叫“过顶”;
小方块——场地四端有四个小长方块,称为“小方块”,那是控后场的最佳落球点。 分球——在对打中,突然将球打到远离对手的另一个方向,叫“分球”,是控后场的有效方法。
2、基本规则
(1)21分制,任何一方只要将球打“死”在对方的有效位置,或者因为对方出现违例或失误,均可得分。
(2)技术暂停,除非特殊情况(比如地板湿了,球打坏了),球员不可再提出中断比赛的要求。但是,每局一方以11分领先时,比赛进行1分钟的技术暂停,休息;两局比赛之间的休息时间为2分钟; (3)平分后的加分赛,每局双方打到20平后,一方领先2分即算该局获胜;若双方打成29平后,一方领先1分,即算该局取胜;
(4)单发球权,得分方有发球权,连续得分连续发球。有发球权的一方叫发球方,对方叫接发球方。获胜一方在接下来的一局比赛中率先发球;
(5)三局两胜制;每局结束,交换场区,第三局中或只进行一局的比赛中,当领先的一方得分为11分时交换场区。
3、发球与发球区
得分方有发球权,得单数分,由左发球区发球;得双数分,由右发球区发球。
开球为0分,在右发球区发球。
发球方得分后由原发球人继续发球并随分数奇偶调换发球场区。失分后交由得分方按此规则发球。 接发球方场区站位不变,也不得站错,接发球队员不能替代。
双打比赛,发球员或接发球员的同伴站位不限,但不得阻挡对方接发球员的视线,也就是说,发球员不能站在使接发球员看不到你发球姿势、动作的位置。
4、 合法发球:
①. 一旦接发球方站好位置,不允许延误发球。发球时,当发球员及接发球员站好位置以后,双方皆不得以任何理由延误发球。发球员的球拍拍头做完后摆之后,任何迟滞,都是延误发球。
②. 发球员应站在斜对角的发球区内,脚不得触及发球区的界线,即 不能踩线,不能出区。
③. 从发球开始,直到球发出之前,发球员的两脚必须与地面接触,不得移动、离地。但发球时脚跟提起,只要脚尖不动,不算违例。
④. 发球员的球拍应击中球托发球,不能击中球毛,即不能将球侧躺着发球。
⑤. 在发球员的球拍击中球瞬间,整个球拍应低于1.15m,拍杆应指向下方,拍头明显低于发球员的握拍手。即拍框的高点不能过高过手。网前或反手发平快球,多有违例。反手发后场球也要特别关注过高过手的问题。关键是:反手发球时要把胳膊肘抬起来,肘部与肩同高或略低于肩高,肘部耷拉下去了,就容易违例;正手发球时(击球时)要把手臂与拍子垂下去,拍杆一平或垂度不够,就容易违例。在发球时,肘部没有提起,击球点离身体较远,有横扫的动作,就容易发生“过高过手”违例。
⑥. 发球开始后,发球员必须连续向前挥拍,直至将球发出。(不得来回移动球、虚晃球拍、中途停顿或变换拍形等“两次动作”,也不得故意拖延时间。)
⑦. 发出的球,应向上飞行过网,如果未被拦截,球应落在规定的接发球区内。
⑧. 发球开始后,发球员的球拍击中球或者未能击中球均视为球已发出。
5、重发球:
① 遇到意外情况,应重发球,比如有异物落入场地,或者有其他人非比赛人员闯入场地等。裁判员认为比赛被干扰或教练干扰了对方运动员的比赛,应重发球。羽毛球比赛中,教练员不能在比赛中对运动员进行喊叫和指导以影响和干扰运动员比赛。
② 发球时,发球员和接发球员同时违例,应重发球。
③ 发球员在接发球员未做好准备时发球,应重发球。
④ 司线员未看清球的落点,裁判员也不能做出决定时,应重发球。
⑤ 发球顺序错误、发球区、接发球区错误,应重发球;只有一方错误并输了这一回合,则错误不予纠正;如果错误在下一次发球击出前未被发现,则错误不予纠正;
⑥ 除发球外,球过网后挂在网上或停在网顶;
⑦ 发球员的同伴站位阻挡了对方接发球员的视线,应重发球。
6、得分
得分有2种情况:打出死球;对方违例/失误。球触及地面称为死球。
7、违例:
发球不合法,违例;
发球者踩线;发球员及接发球员应站立于斜相对的发球区内,并不得踩到发球区界线。发球员及接发球员的双足必须 部份 与地面接触,不得移动位置,从开始 发球直到发球动作完成。 发球时球停在网顶或过网后挂网,违例,判对方得分;
球落在边线外,出界;
球不过网,球从网孔或从网下穿过,球未从网上方越过,球未过网而挂在网上,属于击球方违例,要判对方得分;
两次击球,同一方两次击中球;
球碰屋顶、天花板或四周墙壁及场地外其他物体或人;
球碰到运动员的身体或衣服;
过网击球,即击球点不在击球者网的这一方(但击球后,球拍可以随球过网);
触网,运动员球拍、身体或衣服触及网或网的支持物;
运动员的球拍或身体,以任何程度侵入对方场区;
拖带,即击球时球夹在或停滞在拍上紧接着又被拖带出去(此时往往能听到拖带声或2次击球声)。
妨碍对方,阻挡对方紧靠球网的击球,例如放网后在网前高举球拍阻碍对方挑起高球。运动员故意分散对方关注力的任何举动(如怪声喊叫、故作姿态等)。 过网击球

过网击球
8 、裁判手势图例: 发球裁判手势

延迟发球违例

发球员双脚离地或采线犯规

发球未击中羽球基座

发球过腰高

发球过手犯规。
司线手势:

界外,需喊出

界内,不需宣告

未看清羽球落于界内或界外