宅地稀缺的广州南站板块,终于要迎来全新住宅项目!
9月1日,广州市规划和自然资源局发布番禺区谢村BA0401009、BA0401017、BA0401011地块项目建筑工程设计方案审查及调整批后公示。

实际上,该项目正是越秀地产在今年首次集中供地中以总价97175万元(+23亿元建设成本),折合楼面价21819元/㎡收入囊中的广州南站地块。
短短4个月过去,项目规划已然获批,效率惊人!一起来看看详情吧。
13栋住宅+18班幼儿园
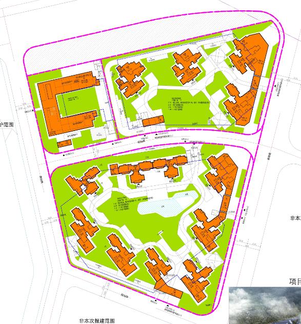
地块位于番禺区广州南站立交东侧,汉溪大道中以南,靠近谢村地铁站。

根据规划,地块主要分成三个部分。其中,BA0401009地块为住宅区,共有4栋住宅,1#和2#均为25层,3#30层,4#29层。地块容积率3.0,绿地率35%,总建筑面积81443.93㎡,计容建筑面积56790㎡。
BA0401017地块也是住宅区,共有9栋住宅,包含5栋26层住宅,4栋17层住宅,整体呈环状布局。地块容积率3.0,绿地率35%,总建筑面积138535.87㎡,计容建筑面积93161㎡。

BA0401011地块是教育用地,规划了一所3层高的18班幼儿园,并带有一个2班的托二班。
车位方面,两块住宅区均规划有一个地下2层停车场,共计地下机动车位1724泊,非机动车位1499泊,另有地上机动车位98泊。

优缺点明显,周边新房“4”字头
广州南站是华南地区最大的高铁客运站,因此南站板块向来不缺人流量和关注度,唯独住宅项目尤为稀缺。此次项目的获批,可谓“久旱逢甘霖”。
根据乐居君此前对地块的实地探访,发现地块优点和不足都很明显:毗邻在建的恒大足球场无疑是体育爱好者的加分项,地铁自驾出行也都十分便利;不过,周边配套和产业发展尚不完善、居住氛围较差等问题也比较突出,另外,靠近主干道所带来的噪音也值得关注。

目前南站板块在售的住宅类项目仅有臻尚苑和品秀·星瀚,其中,臻尚苑在售建面约96-118㎡三房,均价约4-4.7万元/㎡;品秀·星瀚在售建面约85-115㎡两至四房,均价4-4.2万元/㎡。
其他在售的新盘则多为商业类项目,如广州恒大冠珺之光(均价约2.4万元/㎡)、万科世博汇(均价约2.3万元/㎡)、敏捷御峰国际(均价约1.6万元/㎡)。
二手房方面,项目周边可供选择小区不多,并且也多是公寓产品,均价在1.8万元/㎡到3.8万元/㎡不等。

按照目前的进度,项目估计最快明年就能面世,你会期待吗?
【购房资讯轻松享,快来关注乐居网】
文章来源:乐居买房
优质内容推荐
- 二手房价被锤的第一天,广州究竟发生了什么?
- 二手房指导价出炉时,我正在和业主签约
- 宅地增加+新建9班幼儿园!番禺储备地块规划调整