
惠阳雅居乐珑禧花园
惠阳雅居乐珑禧花园项目简介
项目总占地面积约3.5万㎡,建筑面积约18.5万㎡,由6栋Artdeco风格的高层组成,总户数1231户,另外项目配备约1.2万㎡风情商业街。
备案名:珑禧花园
推广名:雅居乐珑禧花园
楼盘地址:淡水新桥工业区珑禧花园
开发商:惠州市惠阳雅居乐房地产开发有限公司
物业公司:雅居乐雅生活服务股份有限公司惠阳分公司
绿地率:30.1%
容积率:4.12
产权年限:70年
项目总户数:1231户
项目总占地:34610平方米
项目总建面:18万方
楼层:1幢1单元32层;1幢2单元33层、2幢33层、3幢33层、4幢33层、5幢32层、6幢32层
室内层高:3米
二、项目卖点
【临深重磅利好,共享先行示范区机遇】
一路联通坪山大道,白云五路支路旁,离深圳坪山仅25公里

惠阳雅居乐珑禧花园
【多维度交通汇聚,湾区轨道枢纽】
1、距离惠州南站仅8公里,更有社区公交直达惠州南,惠阳淡水市中心,深圳龙岗!
公交站实景

惠阳雅居乐珑禧花园
1、惠州南——深圳坪山:约10分钟,票价7元,全天约13个班次
1、惠州南——深圳北:约25分钟,票价约20元左右,全天约52个班次
2、惠州南——福田中心:约49分钟
3、惠州南——香港西九龙:约1小时左右,真正享受惠深港1小时生活圈

惠阳雅居乐珑禧花园
2、三条高速无缝对接深圳,深惠往来自如
1、惠大高速:项目门口惠大高速接驳深汕、沿海高速。其中高速新桥出口以及淡水东出口,距离本项目仅3km,非常方便。
2、深汕高速:从深圳光明区宝安区、福田、南山、龙华区→本项目:可以通过机荷高速转深汕高速,直转惠大高速,在淡水东出口或者新桥出口下高速,沿惠澳大道到达我们项目,全程约50-60分钟。
3、从深圳罗湖区、盐田区、大鹏区→本项目:可以通过沿海高速转惠大高速,在新桥出口下高速,沿惠澳大道到达项目,全程仅约30-40分钟,而这条沿海高速堪称中国最美的高速公路,一路行走,尽享沿途的美景。

惠阳雅居乐珑禧花园
【粤港澳大湾区的黄金时代,坐享首波红利】
国家战略性发展区域,深圳东进桥头堡,价格洼地明星区
粤港澳大湾区辐射地,坐享湾区首波红利

惠阳雅居乐珑禧花园
【南站新城新机遇,打造惠阳“绿色明珠”】
项目所处的南站新城新桥东部片区,南站新城ppp项目,将南站新城片区打造成产业人融合,宜居宜业的生态新城。

惠阳雅居乐珑禧花园
【新桥东部新规划,再创新城新机遇】
惠阳新桥地区计划建成惠阳新中心区,依托毗邻深圳、大亚湾经济技术开发区的区位优势,将本片区发展成服务于惠阳区、大亚湾经济技术开发区以及深圳东部的惠阳新中心区。

惠阳雅居乐珑禧花园
【家门口的优质教育,12年教育无缝衔接】
500米范围内规划了3所幼儿园,1所9年义务学校,1所12年公办学校(惠阳区第五中学及附属小学,已于2019年9月正式开学)。
学校效果图:

惠阳雅居乐珑禧花园
校景实拍

惠阳雅居乐珑禧花园
【成熟商业配套,购物休闲一步到位】
车行10到15分钟可以到达天虹、沃尔玛、家乐福、吉之岛等购物商场

惠阳雅居乐珑禧花园
【公园人居,绿氧大境】
南接原生态自然山体,未来将规划成惠阳新桥东部片区山体公园,与惠阳重点民心工程“亚公顶森林公园”接壤,打造惠湾独有的微循环富氧生态圈,素有“大气维生素”美誉的负氧离子含量高达5000个/cm以上,能促进新陈代谢、增强人体抗病能力。

惠阳雅居乐珑禧花园
【大开发商】雅居乐集团,全国百强品牌开发商,香港上市名企(HK3383),项目遍布全球,品牌值得信赖,以人为本,一生乐活。
【优势物业】金牌一级物业,舒心雅管家服务
【在售户型】
1、约85㎡三房两厅一卫

惠阳雅居乐珑禧花园
三开间设计,朝南户型;朝北户型,视野开阔
2、约86㎡三房两厅一卫

惠阳雅居乐珑禧花园
方正实用,明卫明厨设计,山景飘窗,延景入室
3、约105㎡三房两厅两卫

惠阳雅居乐珑禧花园
作为85㎡的升级版,主卧增设一个卫生间,私密感更强
4、约106㎡三房两厅两卫

惠阳雅居乐珑禧花园
南北通透,采光好,餐厅、厨房独立一体
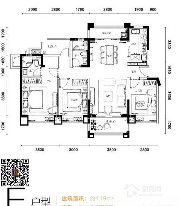
5、约119㎡四房两厅两卫

惠阳雅居乐珑禧花园
南北对流双向阳台,入户左侧的次卧设计非常贴心,如果设计成客房,确保了主客分明;如果设计成老人房,充分考虑到老人与年轻人的生活作息不同。
样板房实景

惠阳雅居乐珑禧花园
景观升级:
1)项目南面原生态山体公园,涵盖足球场、篮球场、羽毛球场、环形跑道、康体健身场地等;
2)园区规划采用中心式园林布局,与南向原生态山脉连成一体;
3)小区的主入口处,利用以瀑布为设计灵感打造了一组叠水景观带,使整体层次更丰富。
配套升级:
1)项目自有1.2万㎡社区商业,沿街商铺均可做餐饮;
2)2栋的首层商铺带有2部垂直电梯,从一层商铺搭乘电梯可直达中心花园;
3)园区规划体育活动场地,涵盖乒乓球场、羽毛球场、健身活动场地等。
装修升级:1)电梯(三菱品牌);2)送入户玄关柜;3)卧室配送强化木地板;4)卫生间配送洗手盆、挂镜、沐浴格、花洒(含水龙头)、马桶及排气扇;5)厨房配送橱柜(含抽油烟机、燃气灶、洗菜盆);6)小区设有闭路监控系统,IC一卡通智能化管理,每户配可视对讲系统。