万物勃发*光春**好,
复工复产正当时。
一颗匠心守初心,
同创国际封金顶!

疫情席卷全国,各个城市仿佛按下暂停键,但随着复工复产的节奏逐步推进。春暖花开,指日可待。

日照CAZ高教片区大学城配套公寓迎来火爆场面!(品鉴热线:0633-8091111 8092222)

自2019年4月份开始动工,历时约一年,这栋大学城教育配套公寓拔地而起。预计2021年7月份交房。
同创国际大厦作为日照大学城教育配套项目可谓是占尽天时、地利、人和。“城市+大学”,近期,市委书记张惠提出全力为驻日照大学营造良好办学环境!同创国际大厦为在校大学生搭建创新、创业、文明、舒适的大环境出了一份力!
位置优越
同创国际大厦是由日照同兴置业投资有限公司建设的教育配套服务公益项目,位于日照中央活力区,大学城交通要道学苑路与学海路交会处。近海3000米,大厦建筑高度近100米,畅享城市美景。
周边道路畅达,出行便捷。7、11、16、18、32、38、39等7条公交线路贯穿城区,可直达市区各大场所。附近大型超市、农贸市场、休闲娱乐等配套完善,便利生活触手可及。
紧邻青岛路城市新中心,城市标志性项目汇聚成群,日照海洋公园、海洋科普馆、科技馆、规划展览馆、网球中心、足球公园、太阳广场、游泳馆、植物园、奥林匹克水上公园、万达广场、银座梦时代购物中心、文创园、东华软件园、东夷小镇等激发城市活力。

CAZ区域
同创国际大厦雄踞日照中央活力区高教片区,该区域功能定位为科技创新、金融商务示范区。随着城市的规划发展,市中心北移,项目周边大量高端物业即将拔地而起,城市资源的不断优化聚合,使得生活圈层不断升级,未来区域发展空间充满期待。同创国际大厦旨在打造城市时尚新地标,为城市经济发展、创新创业打造新格局,注入新活力。
文脉福祉 科技繁荣
名校萦绕,教育资源丰富。毗邻曲阜师范大学、山东外国语职业技术大学、济宁医学院、山东水利职业学院、日照职业技术学院、山东体育学院、日照海事学院等七所高等学府以及曲阜师范大学附属学校、东港实验学校、北京师范大学附属学校,文化教育氛围浓厚。
坐享科技文化产业资源,日照科技文化中心、日照文创园、百度电子商务产业园、高新聪颖谷、东华软件园等环绕周边。企业云集,人才聚集,开放、多元、包容的创业环境,孕育着城市创新的活力基因,学苑路区域将成为未来日照的“中关村”。
匠心出品 以人为本
同创国际大厦采用新现代主义的建筑风格,地暖入户、智能门锁,并有机融入互联网+公寓的发展方向,着力打造舒适的智能体验。
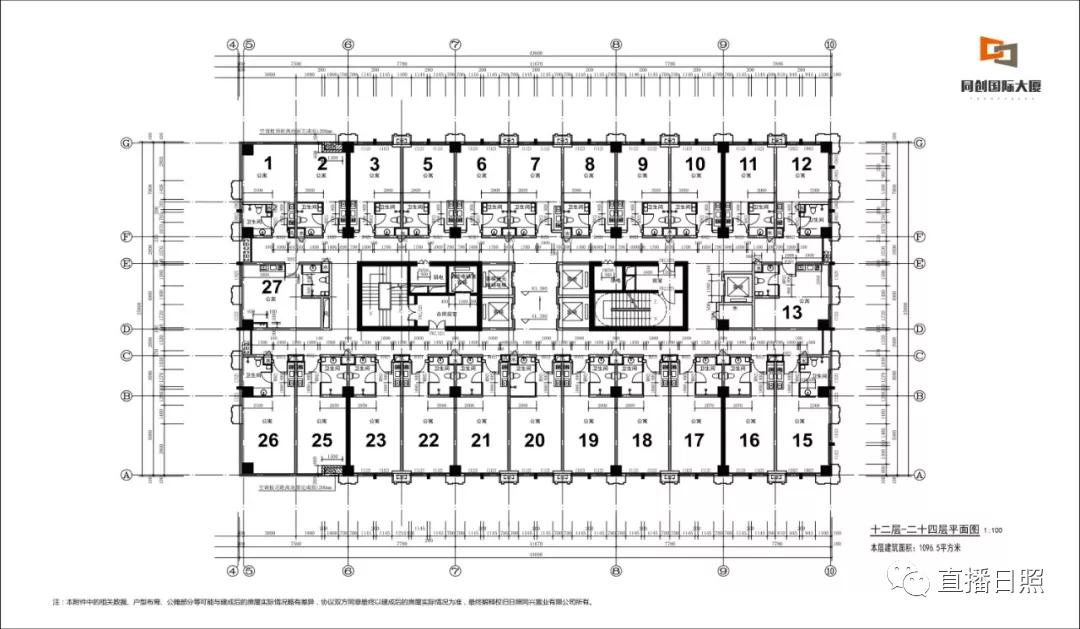
该教育配套项目1-3层为沿街商业用房,4-11层为创业办公用房,12-27层精品服务公寓。3.5米的优越层高,灵活打造跃层、小复式loft,集办公、休闲于一体,一屋多能。建面约40-51平米的小户型公寓,空间布局合理。整层商务办公1096平米,自由分割灵活组合,充分满足业主的个性化需求。

同兴置业
以严苛的细节标准
优异的品质追求
体贴入微的真诚服务
打造优质的大学城教育配套项目
在这里
见证城市未来发展
领略城市别样魅力
感受城市风雅温度
享受生活的悠闲和惬意
让幸福恰到好处
-8091111 8092222