每一座建筑,都是时间的印记,它被分割成了一个个神秘的空间,向我们诉说着属于它的故事。

【丽水匠品】
Lishui craftsmen

改造前
该项目位于浙江丽水市莲都区丽青路一片老式民房区,建筑坐落于丽水市市中心,是对市区原有老建筑改造。原有建筑包含一栋三层建筑,其中一层为停车库,周遭都是老建筑群和年代已久的店铺。

改造前
建筑改造核心区域是地下停车场部分,在以前用作仓库储存;本案整体思路是将建筑外墙全部拆除,只保留原建筑体的承重,进行建筑的再构造和区域划分。

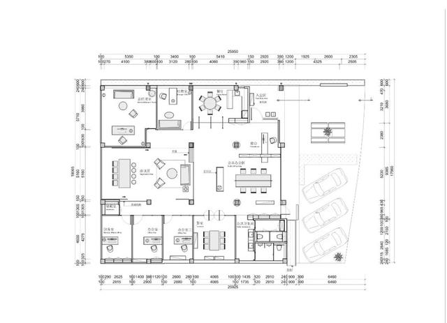
平面图
本案将一楼车库部分镂空,只留立柱,扩大视野,更为通透,根据人办工空间的功能需求,经过人流动线分析,设计师将其进行改造,赋予全新的功能分区。

外立面 | Facade
内墙体整体推进,原有二层楼板就为该场所提供了"屋檐",雨天、太阳天可为过路行人提供临时庇护场所,也使改造建筑变得更为含蓄。
外立面经改造后,建筑以流畅的直线型线条为主采用了大量的钢化玻璃,通体建筑采用黑白对比,线条硬朗,现代感十足,与周围环境形成鲜明的对比。
敞开式玻璃窗内是洗手间区域,窗户外设置鱼池,可避免过路行人意外窥探到内部隐私。

外立面 | 员工入口
功能区域上建筑将员工入口和主入口分开,员工入口进门可直接抵达办公区域,另外开辟的主入口也可防止进出客户影响工作。
建筑前的露天桌椅,将硬朗的黑色设计从外立面剥落至地面。质感镂空的造型以简约的方式打造更为年轻与轻盈的休闲体验,边上的绿色小草皮中和了满目黑白的清冷之感,更添建筑空间腔调。

外立面 | Facade
利落干净的线条延伸视觉空间,大面积的钢化玻式是的建筑更通透,通体现代简约的黑白风格,奠定了这个偌大空间的现代风格。
缓缓走过,眼前的黑白仿佛电影中的慢镜头一帧一帧地定格,好似自己变成了镜头中那个脚步轻盈的都市白领。

外立面 | 主入口
"小夫之知,不离苞苴竿牘,敝精神乎蹇浅,而欲兼济导物。大敞开式入口、整扇落地木门,为建筑增添别样的趣味,建筑气质与匠品开放、大气的企业精神相得益彰。
在现代简约黑白风格为基础的主色调上,融入了质朴、自然的水泥元素,营造出整体符合现代快节奏写字楼,且静谧、舒适的空间氛围。

咨询处 | Consulting office
咨询处作为进入空间的第一眼视觉空间,在设计和规划上更关注场景营造和纵深感,赋予工作室更大的想象空间。以整齐的装点线条、质朴原始的原木色调打造空间基底,利用色彩上的深浅对照勾勒空间层次,水泥浇筑的墙体流露着朴实的质感,从而将现代、自然、舒适的理念更为直观地体现了出来。

前台 | Reception
"谁能刻镂此,公输与鲁班",前台整体造型灵感来源于鲁班木工刨,表达匠品企业敬业、精益、专注、创新工匠精神的基本内涵。木纹直线型桌子,映衬着灰色的水泥墙,以静谧的方式诉说超强的现代空间感。自然绿植的融入缓解办公人群的视觉劳累,成为融合在车水马龙喧嚣的城市中的一抹自然。

公共办公区 | Public office area
每个人都能在自由的空间里,欣赏最美的风景,讨论最酷的问题,激发最不同反响的创意和灵感。
该项目采光最舒适的区域用作办公区,共办公区以更为通透明亮的方式呈现,大面积的落地窗设计使空间具有极佳的视野条件,充分利用层高,在原木色为主色的基调上保证了视觉上的通透感,以室内自然之色呼应室外的美景。

员工入口 | Staff entrance
员工入口整体以纯净的白搭配木色作为主色调,靠墙的白色柜子可供员工存放快递等零碎物品,以灯带装饰,更添一抹温暖。

洽谈区 | Negotiation area
洽谈区,采用半开放的设计手法,创造了一个半独立而有个性的空间,平时作为接待之用,亦可当做休闲阅读之所。整个洽谈区作为整栋建筑的中心,两侧都采用了可移动的落地木门,同时以纱帘搭配落地玻璃为背景,使一侧的光源能够更顺利地进入,移门的设计使得整个空间更为灵动与灵活。
有温度的材质,会呼吸会运动,为这个现代办公空间注入温暖人心的力量。布艺沙发与藤制椅子的搭配,风格古朴有自然气质,在北欧现代风的落地灯照耀下,软软细语间仿佛又是一个时代的故事。

一侧的置物柜中尽是琳琅满目的奖杯,因着企业合作伙伴们对运动的热爱,赞助了一所足球俱乐部。工作之余在绿荫场上挥洒汗水,奖杯之后是明媚的笑靥。

商务办公室 | Business office
商务办公室空间由原一层停车场改造。纯净、沉寂而细腻的色调基底,去芜存菁,摒弃不必要的多余装饰,更易专注于工作。
在温馨的氛围中,加入现代感十足的壁画作为装点,于严谨的秩序与效率间巧妙注入舒适、轻松与明快的优雅气韵,让工作者在其中可放松身心、可高效工作、亦可缓解压力,赋予办公新乐趣。

步至走廊,迎面而来的便是无限空间的通透感。整面的钢化玻璃以黑色窄框黑钢为支撑,映照出走廊浅浅木纹的墙与整片接待区空间。

总经理办公室 | General Manager's Office
走廊外墙深色的木纹更添一丝沉稳。沙发与座椅皮质的柔软感结合原木的自然感,搭配纯白垂感的窗帘,加入自然光给办公人群营造柔和舒缓的办公氛围。
音响与绿植的搭配,仿佛在自然之中奏响现代的和鸣,创意在脑海之中飞旋着,与音律一同不断迸射。

过道 | Aisle
因建筑光源集中在一侧,故整个设计中多采用旋转玻璃门、落地玻璃以及百叶窗搭配,使建筑另一侧空间也能够有充足的光源通过,提升整个空间的透亮度。

餐厅| Dinng room
餐厅通过简练理性的美学方式,以灵动开放的功能布局,巧妙的空间设计和动线连接人与空间的互动对话,展示企业对员工细致的关怀,增强企业归属感。

闲闲午后,四五人围坐一圈,沐浴百叶窗中漏进的阳光。一杯清茶亦或是一杯香醇的咖啡,抚平一日浮躁的心绪。任窗外如何车水马龙,此处便是静谧。
千千世界,人流浮动,快节奏的生活下,来往匆匆的白领们都希望觅得那一抹宁静,那矗立于钢筋水泥之间的一抹自然。
现代与自然的世界,正等你缓缓踏入·······
项目简介
项目名称 :丽水匠品工程管理有限公司
项目地址 :莲都区丽青路191-1号(海潮花园)
项目面积 :378平方
施工单位 :丽水匠品工程管理有限公司
设计公司 :温州大墨空间设计
主案设计 :宋毅
执行设计 :林渊泽 董秋兰
设计时间 :2019.8
完工时间 :2019.12
项目摄影 :宋毅
主要材料 :乳胶漆饰面,橡木地板,金属饰面,青石板
设计公司介绍

从创始之初,大墨空间设计就确立对内核心价值观:"正直、诚实、责任、上进"。
我们开诚布公,设身处地为客户着想,确保客户的诉求是我们所有设计展开的基石。
为了实现最贴近客户需求的设计成果,大墨构建日趋完善的设计团队共同协作体系。随着客户的要求日益提高,也要求我们在团队及有创造力的设计思维与实践之上更加严格要求自己。
大墨设计采用团队协作的工作方式,让每个人从事自己最擅长的领域,通过草图、原型、模型、渲染草图和广泛且详细的设计探索,协助客户作出取舍,保证工程的高执行和完成度。
我们的员工对工作满怀热情,不断追求进步,潜心于项目的实践。是一支经验丰富,有高级审美的设计团队,通过梳理客户实际需求,为客户提供完整且直接有效的专业室内设计服务和软装解决方案。
大墨设计的作品多次获得过国内顶级奖项、被国际知名杂志、书籍和网络媒体报道,于行业内外受到广泛关注。