1、室内普通地面石材施工示意图

2、室内防水地面石材施工示意图

3、阳台地面石材(砖)施工示意图

4、地面地漏安装示意图

5、卫生间地漏施工示意图

6、卫生间地漏施工示意图

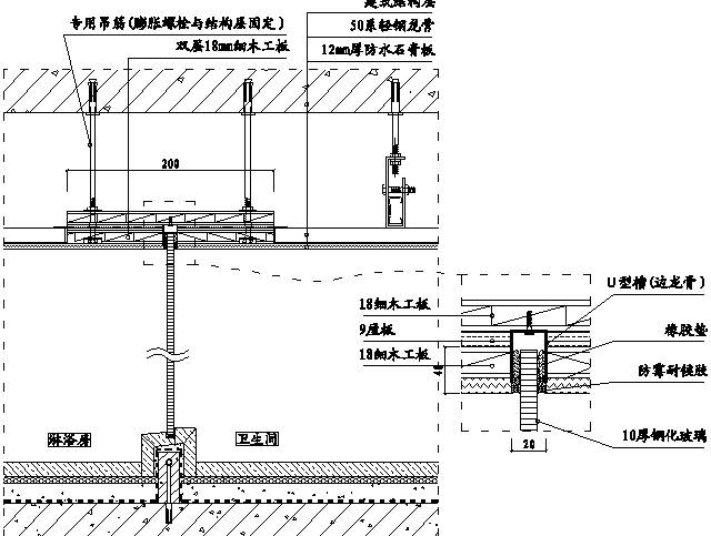
7、开门淋浴房石材施工示意图

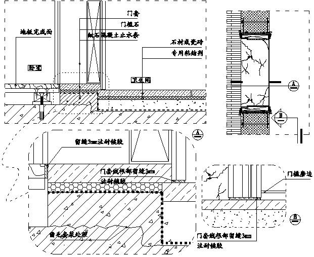
8、厨卫门套根部防水施工示意图

9、厨卫门套、门槛石安装示意图1

10、厨卫门套、门槛石安装示意图2

11、楼梯地面石材饰面示意图

12、石材加厚边施工示意图

13、地毯与踢脚线收口节点

14、地面地毯与石材拼铺界面节点(不锈钢条分缝拼铺方式)

15、实木地板铺装示意图01

16、实木地板铺装示意图02

17、实木地板铺装示意图03

18、实木地板与踢脚线收口节点

19、楼梯地面木地板饰面示意图

20、地面木地板与石材拼铺节点(硬碰拼铺方式)

21、地面木地板与门槛石界面收口节点

22、石材灌浆施工示意图

23、石材干挂法施工示意图01

24、石材干挂法施工示意图02

25、胶粘剂粘贴施工示意图(木基层)

26、墙面石材U型凹槽排版示意图

27、墙面石材阳角收口示意图

28、墙面石材阳角收口示意图

29、石材检修门示意图

30、钢架台盆安装示意图

31、台下柜台盆安装示意图

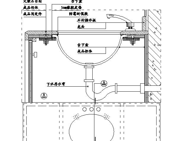
32、卫生间玻璃隔断与大理石墙面交接施工节点

33、淋浴房门预埋件安装示意图

34、卫生间壁龛施工示意图

35、浴缸石材收口施工示意图01

36、浴缸石材收口施工示意图02

37、浴缸石材收口施工示意图03

38、全窗台橱柜台面翻边施工示意图

39、高窗台橱柜台面翻边施工示意图

40、低窗台橱柜台面翻边施工示意图

41、墙面直板木饰面安装示意图

42、成品门套施工示意图01

43、成品门套施工示意图02

44、成品暗门套施工示意图

45、移门示意图01

46、移门示意图02

47、黏土砖墙面壁纸施工示意图

48、轻质砖墙面壁纸施工示意图

49、轻钢龙骨隔墙壁纸施工示意图

50、不同材质隔墙涂料施工示意图

51、墙面瓷砖阴阳角收口示意图

52、镜子玻璃安装示意图

53、墙面石材玻璃木饰面交接示意图

54、墙面石材与石膏板涂料天花收口节点

55、门梁部位墙纸收口示意图




56、地面隔墙施工示意图

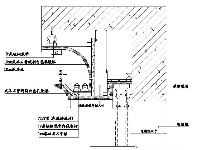
57、叠级吊顶防开裂示意图

58、窗帘盒木基层接口制作示意图

59、窗帘盒制作示意图

60、阴角槽施工示意图

61、弧形暗光槽施工示意图

62、叠级吊顶暗光槽施工示意图

63、吊顶检修口(不上人)示意图01

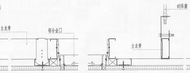
64、吊顶检修口(不上人)示意图02








65、吊灯安装示意图1

66、吊灯安装示意图2

67、吊灯安装示意图3

68、空调风口安装示意图(侧出底回)

69、空调风口安装示意图(底出底回)

70、吊顶伸缩缝施工节点

71、淋浴房玻璃隔断吊顶施工示意图
