近日,有网友爆料称,路过天河区棠东村时,看见路边悬挂有“富力改造现决心,棠东建设显实力”之类的宣传道旗。棠东村也要“好风凭借力”,搭乘金融城建设的快车,将旧改提上日程了?
01
与金融城北区一路之隔 位置优越
去年末,广州国际金融城北区、东区城市设计及控制性详细规划同时进行公示,该控规涉及的区域包括车陂村、棠下村、前进村等旧村更新改造,也意味着广州国际金融城核心区建设正逐步向北、向东拓展。

根据规划,金融城北区将重点打造为商务办公、创意办公等功能为主的综合办公配套区,规划新建十余座百米高楼,并新增2条预留新型交通线和4个站点,居住人口规模约3.8万人。
目前,广州国际金融城建设得如火如荼。广州国际金融城有多重要,话不多说,详情请戳:广州之心:未来国际金融城太牛了(国际金融中心+全国最大地下城…都在这)
棠东村虽并未纳入规划改造范围,但却与金融城北区仅以中山大道西路相隔,同时东临被纳入金融城改造范围的棠下村。

商业繁华 配套完善
未来双地铁加持

前去棠东村,交通还算比较便利。虽暂无已建成、直达村子的地铁站,但距离科韵路及车陂地铁站还算比较近;同时,BRT棠东站有多路公交畅达。
而当前,广州地铁13号线二期以及21号线,正分别沿棠东村南、北的中山大道西路、棠德南路加紧建设。待通行之时,棠东村交通线网将进一步升级!

| 广州地铁21号线施工现场 ↑

| 广州地铁13号线二期施工现场 ↑
棠东村腹地商业繁华,不论是村子外围的主干道(比如中山大道西路、棠德南路等),还是村内道路(比如棠东东南路、丰乐路、官育路等)。店铺鳞次栉比,经营类型多种多样,招租小广告更是随处可见。
可以想象,夜幕降临之时,村子会是怎样的一番热闹场景!

村内及周边另外拥有沃尔玛、骏景购物广场、骏景中学、棠东小学、棠东幼儿园、金太阳幼儿园、同仁实验学校等资源配套,足够满足片区人们的生活及教育需求。

创意科贸园集聚 活跃度有待提升
而在棠东毓南路及棠东东路上,则聚集有不同于一般经营档口的高端酒店(广州凯尔卡顿大酒店)、豪车销售中心(广州保时捷中心)、聪颖港企业孵化基地、远洋互联网+创意园、御富科贸园、本地聪颖创新社区等。

例如远洋创意园,根据宣传展示,一批新三板企业已经进驻,而目前招商仍在持续;而在御富科贸园,有一些创业型公司正在营业;再如创新社区,亦有独栋商业正在招租。

从村民处得知,这些创意园的规划和建设始于2015年,最初缘于对村内高污染旧厂的改造,而此种改造方式还曾被官方媒体点赞。不过,乐居君觉得,总体而言,这些园区人气都较为冷清,单元空置率比较高,整体氛围并不算活跃。

外来者安居握手楼 村民不知“旧改”进度
污染治理使得棠东村的环境有了很大提升。祠堂前的水塘,水草密布,不时有乌龟、鱼儿游到近岸处。

走访村内,乐居君见到多处宗族祠堂,包括钟公祠、梁公祠及苏公祠。而除了祠堂、水塘处较为开阔外,村内多握手楼,楼与楼之间的巷道漆黑一片。

从村民处获悉,棠东村分为丰乐、东南及龙门三大社区,户籍人口五六千人,倘若将外来人口计算在内,或可达到两万余人。
目前,村民多以房租、档口出租及股权分红为主要经济来源,每个持股人每年可得万元左右分红。
在村内,乐居君并未见到有关旧改的丝毫标志,受访村民均称不了解旧改相关进程;棠东村经济合作社及社区工作人员也拒绝回答乐居君的任何改造相关咨询。而提到富力在村内的一些标语,则有村民认为“我们村子改不了的,得看房企的具体实力情况再定”。
暂无新盘 二手在售均价3.3万元/㎡起
目前,棠东村周边暂无新盘;二手房数量众多,包括*安泰**花园、春江花园、阳光假日园、富力天朗明居、骏景花园等,在售均价3.3~4.6万元/㎡不等。

(点击查看大图 ⬆️)
02
乐居君不禁发问,本文开篇中网友所见的宣传道旗及“建设”字眼,又指向什么呢?
棠东村留用地项目?
乐居君在实踩前曾获知,2018年7月31日,富力地产集团棠东村留用地项目奠基仪式在广州市天河区棠东村隆重举行。
本次开工建设的棠东村留用地项目,由富力地产集团与广州市棠东经济有限公司合作开发,成为了天河区辖内首个通过合作建设方式盘活村集体留用地并进行至开发建设阶段的项目。
作为广州的本土企业,这是富力地产集团致力于打造广州美好城市家园的又一写照。
富力地产将与各级部门、棠东村村委及广大村民共同携手,发挥富力地产集团在房地产设计、开发建设等方面的优势,发扬工匠精神,倾力打造精品工程、品质社区。
所谓“建设”,是指向富力地产集团棠东村留用地?
乐居君从村民处获悉,富力确实想拿下归属于龙门社区和东南社区的两块地,但是否谈成合作,他们并不知晓。一位村民介绍:“那几块地周边都是工厂,土地、水源备受污染,既没办法耕种,也没办法居住,不如被富力拿去搞开发。”
棠东村留用地,并不位于棠东村腹地,而是位于棠东村及广园快速路以北的车陂西路、棠东广棠路、横岭路及天坤三路附近。从棠东村东南社区北门前去,经棠德东路,从地下穿过铁路隧道进而左行,才能抵达。

沿途多地块围挡及工业厂房
铁路隧道口处的建筑挂有“1980文化创意港”的logo,而沿车陂西路向西行走,乐居君关注到车陂西路两边多竖起围挡及简易的棚房。
车陂西路与广棠路十字路口东北角,白色围挡矗立,目前为一驾校练习场地。
广棠路以东,仍是白色围挡;以西,则分布有小档口、招租公寓及印刷、照明电器、服饰、物流、门窗、油墨厂等工业厂房。

天力建筑施工 建设商业、办公楼
在广棠路北段尽头,乐居君看见广州天力建筑工程有限公司正在施工。据工地宣传标语及工程概况牌获悉,该工地为富力的商业、办公楼工程(自编A1、A2、A3、A4栋),建筑面积57245㎡,建筑高度58m,包括地下2层及地上20层,建设单位为广州市天河棠东经济发展有限公司。

另外,根据工程概况牌,该项目于2018年9月27日开工,计划2020年9月12日竣工。目前,该工程正在进行地下二层的建设,按照目前工程进度,竣工时日或有延迟。
宣传标语打出“旧改”字眼
在工程项目周边,乐居君看到了宣传道旗,亦看到了富力集团的宣传标语“树立棠东旧改典范,打造宜居美好家园”。

03
2017年底拿地 横岭路地块规划为长租公寓
乐居君在广州市天河区农村集体资产交易中心查到了相关交易公告。2017年11月21日,建设项目以现场举牌竞价的方式展开招投标,最终由广州富力地产有限公司竞得,包括广棠路2号、24-26号地以及横岭留用地。

根据中标金额要求,项目用地及建成后全部物业的所有权全部归甲方,即棠东经济发展有限公司所有,物业经营收益权以甲方享有可经营面积40%分成为基数进行递增。

据此前相关报道,“所拿横岭路地块为富力地产与村委合作项目,将打造为富力首个长租公寓项目,计划2018年4月面世;而综合考虑建筑周期等因素,预计项目销售中心将于2018年9月建成”。

图片来源:广州房产 ⬆️
据了解,富力拿地之时,租购同权政策正不断推进,租赁住房发展配套政策也逐渐落地,包括广州在内的11个城市已被纳入全国首批开展利用集体建设用地建设租赁住房试点城市。
其中城市村镇集体经济组织试点自行开发运营,通过联营、入股等方式建设运营集体租赁住房成为重要方向。而不只是富力地产,敏捷以及万科等知名房企彼时也纷纷抢滩布局,利用村集体物业支持租赁物业的发展。
用地为商业兼容商务属性
1、3、6号地块首批建设
根据交易公告附件——广州市住房建筑设计院《天河区·棠东村总体规划设计》,整个项目分为6个小地块,全部为商业兼容商务用地,总用地面积72174㎡,计容建筑面积246575㎡。首批建设地块为1、3、6号地块。

棠东村持1、3、6地块总用地面积的40%
概念规划设计对于1、3、6号地的综合技术经济指标及各方持有份额,进行了规定。
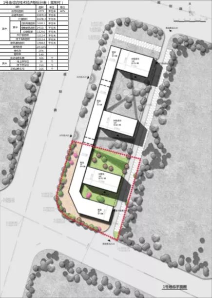
【1号地】

1号地建筑规划示意图
1号地总用地面积11933㎡,总建筑面积49678㎡。其中,棠东村持有下图红色框线部分,总用地面积4773㎡,总建筑面积19870.8㎡。此框线范围内规划有创意办公及沿街商业。

【3号地】

3号地建筑规划示意图
3号地总用地面积19638㎡,总建筑面积109175㎡。其中,棠东村持有下图红色框线部分,总用地面积7855.2㎡,总建筑面积43670㎡。此框线范围内规划有沿街商业及高层商业。

【6号地】

6号地建筑规划示意图
6号地总用地面积7526㎡,总建筑面积22792㎡。其中,棠东村持有下图红色框线部分,总用地面积3010.4㎡,总建筑面积9116.8㎡。此框线范围内规划有沿街商业。

1号地块在建地下2层
乐居君实踩到的正在施工的地块,即为1号地块,目前正在在建地下2层。
依照棠东村概念规划设计,棠东村这几个地块将被打造成为:
集生活、商业、办公、文化于一体的综合性现代社区;
立足于产业、金融、互联网、创新,实现产城融合和园区活力提升;
打造创新生态链,打造新都市生活;
形成一个人才聚集、充满活力的商业社区,既有充满活力与氛围的沿街商铺,亦有惬意舒适的庭院空间。

地块周边二手房均价最高达6.3万元/㎡
珠江天境新房在售均价8万元/㎡
目前,整个1~6号地块内部,盛天科贸园、横岭工业园、博雅学校、广棠社区居委会均在规划范围内。
而在地块周边,北有大片绿地,以南为广园快速路、铁路、棠德花苑等成熟小区,以西为广棠工业科技园,以东则有规划中的奥林匹克中学、若干成熟小区及广州环城高速。

其中,天健上城、阳光国花苑二手在售均价4.1万元/㎡;广氮花苑南区二手在售均价4.4万元/㎡;中海康城花园二手在售均价4.3万元/㎡;棠德花苑二手在售均价3.2万元/㎡。距离地块较远的珠江东境,二手在售均价则为6.3万元/㎡。
而新房方面,珠江天境花园在售均价8万元/㎡。

(点击查看大图 ⬆️)
* 赵盼盼对此文亦有贡献,特此感谢!
新闻加点料
▶9年不卖宅地+住宅新盘0供应!金沙洲稀缺宅地实踩报告奉上!
▶18岁卖楼花、25岁香港买房、30岁跑路!70后房叔离婚也要买房
▶厮杀38轮!楼面价破3.5万元/㎡ 龙湖豪夺白云黄石西路宅地
广州乐居
微信号: guangzhouhouse
楼市新闻|点击“阅读原文”
楼盘信息搜索|发楼盘名称查询详情