2016年6月,上海市体育局对“上海浦东足球场项目概念方案”进行国际征集,一石激起千层浪,引起了上海球迷的极大关注。
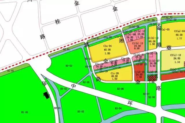
2017年1月11日,浦东新区对张家浜楔形绿地规划进行调整,浦东足球场被确定在C1a-02地块,而该地块原先2007年的规划是二类住宅。地块北贴锦绣东路,东临金湘路,南靠是金葵路,西邻金滇路。东北角与正在修建的地铁14号线金港路站西出口相邻。周边规划绿色部分是公共绿地,C1c-01是商业与服务设施,暗红色三块是商务办公,橘黄色两块是商住两用,黄色部分是二类住宅。

2017年规划调整方案

2007年原规划方案为二类住宅
C1a-02地块将规划为足球场,用地性质是C4体育用地,地块面积10万平方米,也就是边长约为300的正方形地块。

据最新消息,2017年1月22日,上海浦东土地控股(集团)有限公司开始对浦东足球场及周边区域进行概念方案征集,项目前期准备工作正在稳步推进。

那么目前该地块的现状如何呢?小编在春节前对该地块进行了实地探访。

在中环线上远眺项目地块,一片树林背后就是足球场项目地块。

这个围墙后面就是足球场项目地块的西北角。

从地块北面向西南眺望中环线,右边是已经修建完成的金滇路。

站在地块中间向北看是奥迪展示厅。

在地块中间向南眺望,树林背后是中环线。
据当地人员介绍,该地块早在2015年就已经基本完成*迁拆**工作,可能是由于规划调整的原因一直没有进行土地平整,也没有动工建设,此处应该是要建成足球场。
随后,小编来到球场东北角的金港路地铁站西口,施工铭牌标明预计2018年底本标段竣工。

在工地内可以看到金港路车站正在进行紧张的土建工程。

未来的金港路站将成为地铁14号线和21号线的换乘站,球迷将很容易从浦西或浦东抵达球场。

地铁14号线西起嘉定封浜站,东达浦东桂桥路站,穿越上海市区,与大部分既有地铁线路可以换乘。其使用高运量8节编组的A型车,是1号线、2号线之后第三条使用该车型的线路。

目前地铁14号线已经进入全面施工阶段,2016年11月首座车站金粤路站已经结构封顶。预计2019年浦东一段和浦西一段通车,2020年全线贯通。

地铁21号线又称迪斯尼线、新20号线,规划北抵凌桥地区,南达川沙路站,全程在浦东地区运行。目前还在规划编制阶段,预计在2020年前开工建设,2025年前完工。

上海浦东足球场可以容纳5万名球迷,将成为上海规模最大、最先进的专业足球场。目前申鑫入驻金山、绿地蜗居虹口,新建成的专业球场极有可能成为上海上港队的新主场。
本公众号(news524)将持续关注上海浦东足球场及其周边设施的建设进度,请大家即时通过本公众号了解进一步的资讯。