号外!号外!你们心心念念的福利来了~
本期福利 :室内CAD施工图入门实战教教程+全网最全CAD图库素材(图库使用教程)全网最全CAD字体库(及替换方法)
更多室内设计学习文章,资料,教程,软件,插件,方案,施工工艺材料等可以关注小编,不懂的地方,欢迎大家留意沟通
一:室内CAD施工图入门实战教教程及标准
CAD施工图掌握:软件的基本操作---布局,图层及标注的使用方法---打印出图---现场量房--返图-平立面施工图绘制(原始结构图,结构拆改图)平面布置图,地面布置图,顶面布置图,灯位布局图,面积图等等)---立面施工图绘制(节点图,大样图,剖面图,细节图)---整套施工图的绘制

CAD施工图视频教程

原始结构图:

平面布置图:

新建墙体图:

开关布置图

天花布置图

电视背景墙立面图

插座布置图

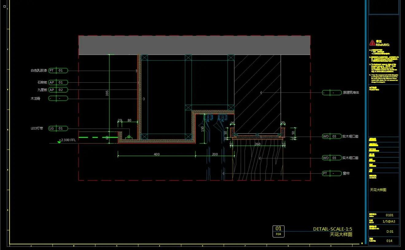
天花大样图

地面材质图

电视背景节点图:


二:全网最全CAD图库素材+使用教程
素材为CAD工装家装室内设计所需的各种图块图库,素材包含多个CAD室内设计常用图块图库,囊括了CAD室内设计所需内含:平面椅子、卫生间洁具、平面床、立面床、平立面衣柜、工艺品、电器、厨房用品、立面洁具、装饰画、龙头把手、灯具、立面桌椅和窗帘、平面桌、平面沙发、立面沙发、罗马柱、健身娱乐、门、植物、地拼、钢琴、车等。
这里给大家介绍三种使用方法:1、带基点复制&粘贴为块;2、外部块;3、 工具选选版。
第一种方法:带基点复制&粘贴为块
1、点击编辑菜单下的带基点复制(快捷键:ctrl+shift+c),如图:

2、以一个床的素材为例,第一步ctrl+shift+c后提示指定基点,按住ctrl+鼠标右键后松开后单击中点,指定床的左侧中点为插入点,如图:



3、提示选择对象,框选整个床后回车,如图;


4、打开需要插入素材的图纸,点击编辑菜单下的粘贴为块(快捷键:ctrl+shift+v),如图;

5、指定插入点插入;

小结:该方法操作简单(ctrl+shift+c&ctrl+shift+v),但插入时没有旋转、缩放等操作选择,需要后续调整。
第二种方法:利用外部块制作自己的cad图块素材库
首先在电脑某个盘中新建一个文件夹:我的图库,如:C:我的图库
1、输入外部块快捷键w,回车,如图:

2、弹出写块窗口

源:勾选对象;
基点:拾取电视左侧中点;
对象:框选整个电视并勾选转换为块(c);
文件名和路径:路径为刚刚新建的C:我的图库,文件名【电视】;
确定。
3、打开需要插入素材的图纸,输入插入块快捷键i,回车,如图:

4、浏览刚刚保存的电视块,确定。

5、指定插入点,如图:

完成。
小结:同样方法,大家可以在刚刚新建的C:我的图库文件夹里通过外部块命令创建自己常用的图库,需要用时直接通过插入块命令i插入即可。
第三种方法:利用工具选项板创建自己的素材库
和第二种方法类似,先把图库素材创建成外部块,这里不再赘述,需要的请看第二种方法。
创建好块后,按ctrl+3快捷键打开工具选项版,工具选项版任意位置处鼠标右击选择【新建选项版】,命名为我的图库,如图。

ctrl+2快捷键打开设计中心,将创建好的图块素材拖到工具选项版我的图库中,如图:

需要调用时ctrl+3快捷键打开工具选项版,单击我的图库中素材即可插入,插入方式:基点、比例、旋转可自行选择,如图:

完,三种插入图块素材的方法都介绍完了。







三:全网最全CAD字体库
打开CAD总是出现乱码或者问号怎么办?,那我就简单说明一下*载下**字体的原因:
每天,我都要面对这个对话框数十次

还有这个对话框

一般来说缺少的字体需要换成它们:
【gbcbig.shx】国标gb汉字chinese*b大**ig字体
【gbenor.shx】国标gb英文english普通normal字体
可怜的我光是替换字体就要花费漫长的 0.5 分钟
并伴随着看到此对话框的不舒适感
如果我选择轻忽并继续
那么接下来要面对的可能就是一堆乱码

看到这些乱码,吓得我赶紧关掉CAD
em... 舒适多了
解决方法:
1
缺少字体最常见的情况应该是缺少HZTXT.SHX字体,最粗暴的方法就是*载下**它,然后放在CAD安装文件夹地址的【Fonts】文件夹内。

去哪里*载下**?温柔贤惠的我已经给你准备好了,关注文章末尾领取方式~~~
2
当然你缺的也有可能不是HZTXT.SHX字体,有时会有图纸包含百年不遇的字体,我这里还有一 坨 套字体大礼包,比较大,经常用到特殊符号的小可爱建议*载下**。
cad字体存放位置:Fonts 天正字体存放位置:sys
2500种超级全字体:

可商用字体库:

天正字体库:

可爱卡通字体库:

3.打开CAD文件字体显示问号(?)
鼠标选中它可以知道它是哪一种字体。单击“文字”右边的箭头符号,出现“文字样式”选项框。关注字体名那里有个感叹号,说明这个字体有问题。现在直接把“字体名”改成电脑里有的字体就可以
1、替换成电脑操作系统的字体
如果只是普通的汉字,没有特殊的符号,例如钢筋符号等,那么可以采用CAD多行文字类似的替换策略,取消使用大字体,直接将字体设置成电脑操作系统字体,如宋体,黑体。

2、替换成通用的CAD字体
如果需要用CAD专用的单线字体(*.shx),则可以采用下面的策略,小字体可以替换成simplex.shx,大字体可以替换成hztxt.shx。

4
如果你什么都不想*载下**,也可以通过【字体映射】来设置,不过这仅限解决缺少hztxt字体或其它单一字体的问题。这样操作:
输入命令OP,打开选项对话框,找到【字体映射文件】,然后把这个地址选中,在用鼠标左键单击一下,复制它。

随便打开一个文件夹或者浏览器,把地址粘贴到地址栏:


回车打开它,然后在最后面增加一行字符:hztxt;gbcbig.shx0意义是把hztxt映射为gbcbig,可以解决每次要替换的繁琐操作。保存,然后重启CAD即可。
技巧适用于AutoCAD 。
今天的技巧就到这里,关注我,下次继续扯~~~(练习题及解答详情;设计大师常用插件及使用教程,cad节点大样,快捷键技巧,cad填充图案等)
